Pronájem ubytovacího zařízení 626 m, ulice Přátelství, Praha - Uhříněves.
Pronájem ubytovacího zařízení 626 m, ul. Přátelství, Praha 22 Uhříněves.
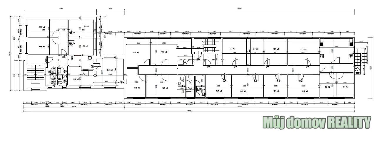
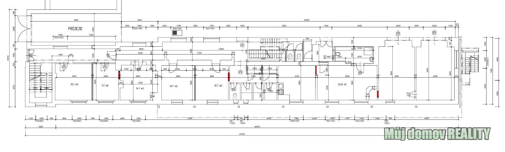
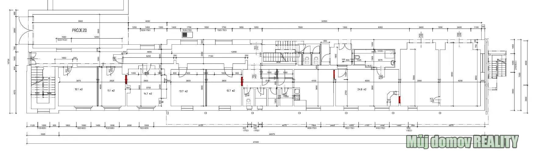
Nabízíme k pronájmu samostatnou dvoupatrovou budovu o celkové užitné ploše 626 m v Praze 22 Uhříněves, ulice Přátelství. Objekt je vhodný zejména jako ubytovna pro zaměstnance, sídlo společnosti, administrativní budova, coworkingové centrum nebo kombinace kancelářských prostor a ubytování. Díky své dispozici umožňuje ubytování a poskytuje dostatek prostoru pro provoz firmy i zázemí zaměstnanců.
Budova disponuje celkem 26 pokoji a praktickým dispozičním řešením.
V přízemí se nachází 5 pokojů, kuchyň, 4 sprchy a 4 toalety. Součástí objektu je také sklepní část se 3 místnostmi, které lze využít jako skladové prostory, technické zázemí nebo další provozní místnosti. U objektu jsou k dispozici 3 venkovní parkovací místa.
V prvním patře se nachází další část budovy s 6 pokoji, kuchyní a sociálním zázemím, které tvoří 2 toalety se sprchou.
Z druhé strany budovy je samostatná část s vlastní dispozicí kuchyň, 15 pokojů, 4 toalety a 3 sprchy. Tato část umožňuje oddělený provoz, například pro jinou skupinu zaměstnanců, kanceláře nebo další ubytovací kapacitu.
Celková dispozice budovy umožňuje velmi flexibilní využití. Objekt lze rozdělit na několik provozních celků, kombinovat kanceláře s ubytováním zaměstnanců nebo vytvořit administrativní centrum společnosti s vlastním zázemím.
Nemovitost je ve smíšené konstrukci, v dobrém technickém stavu a připravena k okamžitému užívání. Objekt je pronajímán bez vybavení, nábytek a zařízení si nájemce zajišťuje dle vlastních potřeb. Energetická náročnost budovy je třídy G mimořádně nehospodárná.
Velkou výhodou je výborná dopravní dostupnost. Zastávka MHD se nachází přibližně 2 minuty chůze od budovy a zajišťuje rychlé spojení do centra Prahy i dalších městských částí. Lokalita nabízí kompletní občanskou vybavenost. V docházkové vzdálenosti se nachází supermarket Lidl, další obchody, restaurace, kavárny, služby i další komerční provozovny. V blízkosti jsou také zdravotnická zařízení, sportoviště, školy, pošta a další služby pro každodenní potřeby zaměstnanců či klientů.
Užitná plocha objektu činí 626 m. Budova je patrová a k dispozici ihned.
Kontakt
Realitní kancelář: Můj domov REALITY
Makléř: Lidiya Savynets
Viber / WhatsApp / Telegram: @LidiyaSyvynets
Pro více informací nebo sjednání osobní prohlídky mě neváhejte kontaktovat. Ráda vám tuto nemovitost osobně představím. Tento objekt může být stabilním a praktickým zázemím pro vaše podnikání v Praze.
Uživatel serveru RealityMIX.cz (dále jen „Server“) dostupného na internetové adrese (URL) https://www.realitymix.cz, který provozuje společnost DALTEN media s.r.o., se sídlem Na Harfě 916/9a, Praha 9, 190 00, IČO: 271 35 306 (dále jen „Správce“) jako provozovateli tohoto Serveru uděluje svůj výslovný souhlas v souladu s ustanovením § 5 zákona č. 101/2000 Sb. O ochraně osobních údajů a o změně některých zákonů, v platném znění (dále jen „zákon o ochraně osobních údajů“), se zpracováním uživatelem poskytnutých osobních údajů a dalších dat.
Uživatel poskytuje Správci osobní údaje v rozsahu: jméno, příjmení, e-mailová adresa, telefonický kontakt a další data, a to z důvodu projeveného zájmu o nemovitost, kde prostřednictvím služby Serveru Správce osloví Uživatel inzerenta uvedeného v detailu
nemovitosti - Můj Domov Reality s.r.o. (IČ 08487316) se zájmem o jeho služby.
Uživatel tyto osobní údaje poskytuje dobrovolně a bere na vědomí, že součástí služeb Správce, které Správce Uživateli poskytuje, je vyhledání všech Uživateli vyhovujících (dle parametrů - cena, typ nemovitosti, lokalita atd.) nemovitostí. Správce za tímto účelem provozuje aplikace Hlídací pes a newsletter. Tyto služby je možné z každého zaslaného emailu odhlásit. Souhlas se zpracováním osobních údajů Uživatel poskytuje Správci na dobu neurčitou s tím, že svůj udělený souhlas může Uživatel kdykoliv na drese správce info@realitymix.cz odvolat. Správce garantuje Uživateli i další práva uvedené v ustanovení §11 a §21 zákoba č. 101/200 Sb. Ve znění pozdějších předpisů.
Více informací o zpracování údajů získáte zde (realitymix.cz/zasady-ochrany-osobnich-udaju)