Pronájem zavedené restaurace 108 m² + předzahrádka 69 m²
Restaurace v přízemí bytového domu v Čakovicích, pár kroků od čakovického zámku, parku a rybníka. Plně vybavený gastro provoz s vlastní předzahrádkou o ploše 69 m², která je v osobním vlastnictví a je součástí nájmu. Prostor je kolaudovaný jako restaurace s kuchyní a připravený k rychlému převzetí.
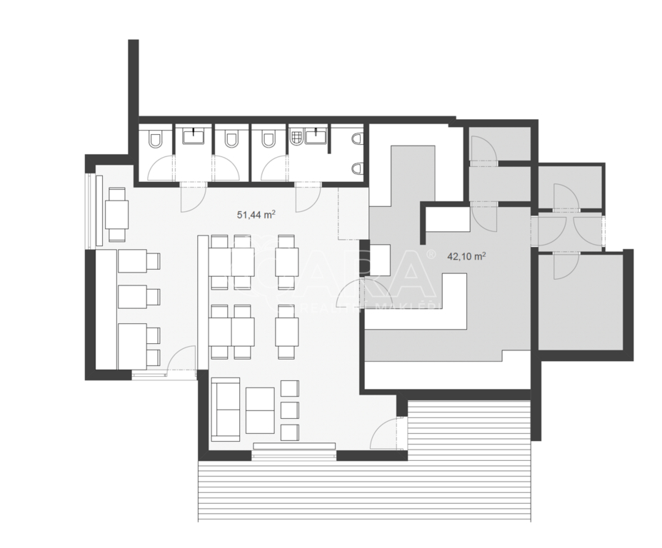
Hlavní prostor restaurace má 108,3 m², doplněný o dvojici skladů (5,6 a 4 m²). Vstup i interiér jsou bezbariérové, k dispozici je také místo pro parkování jízdních kol a garážové stání pro jedno auto.
Restaurace je kompletně vybavená – technologie, nábytek i zázemí. Provoz lze převzít v aktuální podobě, případně doplnit o pokladní systém, který je možné dodat. Instalovaný je také zabezpečovací systém Jablotron.
Prostory jsou ideální pro stabilní gastro provoz – denní menu, večerní restauraci, kavárnu nebo rodinný podnik. Lokalita je obytná, sousedství tiché a stabilně frekventované díky poblíž umístěnému zámku a parku.
Dispozice a plochy
* Hlavní provozní plocha: 108,3 m²
* Sklad 1: 5,6 m²
* Sklad 2: 4 m²
* Předzahrádka: 69 m²
* Garážové stání pro 1 auto
Finanční podmínky
* Nájemné: 48 600 Kč / měsíc
* Vratná kauce: 90 000 Kč
* Odstupné za vybavení: 600 000 Kč
* Provize realitní kanceláři: 48 600 Kč.
* Poplatky dle skutečné spotřeby:
* zálohy SVJ (topení, voda, úklid společných prostor atd.)
* elektřina
* pojištění
* odvoz odpadu
* volitelné služby: TV, OSA, internet, rozhlas, zabezpečení
Prostor je volný ihned.
Pro více informací mě neváhejte kontaktovat.
Lukáš Petr
Cena:
48 600 Kč / (za měsíc)
Datum k nastěhování:
21.11.2025
Číslo zakázky:
REALITYMIX-18035
Podrobné informace
Zastavěná plocha:187 m²
Užitná plocha:187 m²
Počet podlaží objektu:11
Druh objektu:smíšená
Stav objektu:velmi dobrý
Typ zařízení:Restaurace
Ostatní:Bezbarierový přístup, Výtah
Doprava:silnice, MHD
Komunikace:asfaltová
Elektřina:Elektro - 400 V
Voda:Voda - dálkový vodovod
Telekomunikace:Internet
Odpad:Kanalizace
Energetická náročnost budovy:C - Úsporná
Energetický ukazatel podle vyhlášky:č. 264/2020 Sb.
Uživatel serveru RealityMIX.cz (dále jen „Server“) dostupného na internetové adrese (URL) https://www.realitymix.cz, který provozuje společnost DALTEN media s.r.o., se sídlem Na Harfě 916/9a, Praha 9, 190 00, IČO: 271 35 306 (dále jen „Správce“) jako provozovateli tohoto Serveru uděluje svůj výslovný souhlas v souladu s ustanovením § 5 zákona č. 101/2000 Sb. O ochraně osobních údajů a o změně některých zákonů, v platném znění (dále jen „zákon o ochraně osobních údajů“), se zpracováním uživatelem poskytnutých osobních údajů a dalších dat.
Uživatel poskytuje Správci osobní údaje v rozsahu: jméno, příjmení, e-mailová adresa, telefonický kontakt a další data, a to z důvodu projeveného zájmu o nemovitost, kde prostřednictvím služby Serveru Správce osloví Uživatel inzerenta uvedeného v detailu
nemovitosti - QARA s.r.o. (IČ 01740113) se zájmem o jeho služby. Tato společnost je součástí seskupení/sítě/franšízového modelu realitních kanceláří, jejich seznam můžete zobrazit kliknutím na tento odkaz.
QARA s.r.o. Ostrava (IČ 01740113) , QARA s.r.o. Brno (IČ 01740113) , QARA s.r.o. (IČ 01740113)
Uživatel tyto osobní údaje poskytuje dobrovolně a bere na vědomí, že součástí služeb Správce, které Správce Uživateli poskytuje, je vyhledání všech Uživateli vyhovujících (dle parametrů - cena, typ nemovitosti, lokalita atd.) nemovitostí. Správce za tímto účelem provozuje aplikace Hlídací pes a newsletter. Tyto služby je možné z každého zaslaného emailu odhlásit. Souhlas se zpracováním osobních údajů Uživatel poskytuje Správci na dobu neurčitou s tím, že svůj udělený souhlas může Uživatel kdykoliv na drese správce info@realitymix.cz odvolat. Správce garantuje Uživateli i další práva uvedené v ustanovení §11 a §21 zákoba č. 101/200 Sb. Ve znění pozdějších předpisů.
Více informací o zpracování údajů získáte zde (realitymix.cz/zasady-ochrany-osobnich-udaju)