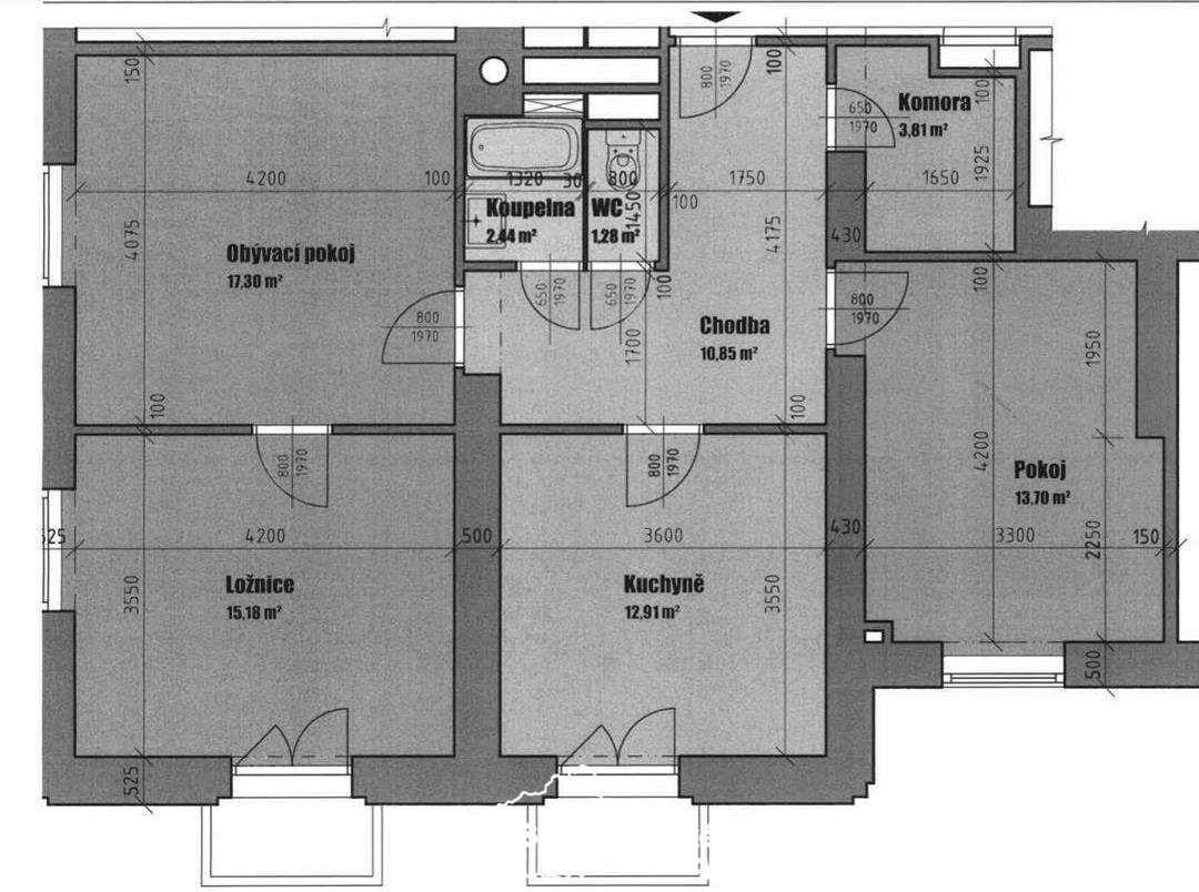
Nabízíme pronájem prostorného, světlého bytu 3+1 o velikosti 81 m2 ve třetím patře s výtahem v udržovaném cihlovém činžovním domě na Praze 10 Vršovice v Bělocerkevské ulici.
K příslušenství patří dva balkony (v kuchyni a ložnici), velká komora v bytě, která může sloužit jako sklep, nebo jako pracovna. Dva pokoje ze tří jsou neprůchozí a nabízí možnost spolubydlení. V průchozím obývacím pokoji je zánovní sedací souprava, která je součástí pronájmu. Orientace je na jihozápad - celý den sluníčko.
Byt je čerstvě po instalaci nové kuchyňské linky z IKEA s myčkou, elektrickou troubou, plynovou čtyřplotýnkou a novou lednicí s mrazákem. Také je nově vymalováno a došlo k repasi parketových podlah. V koupelně je vana a pračka, wc je samostatné s umyvadlem. Možnost vysokorychlostního internetu. Poplatky jsou uvedené na tři osoby a zahrnují veškeré platby včetně topení a vody + převod elektřiny (cca 1000,-Kč/měs) + plyn (cca 300,-Kč/měs).
Za domem je parková úprava s možností posezení, před domem zastávka autobusu s dojezdem na metro A Želivského do pěti minut. Byt je určen k dlouhodobému pronájmu, nastěhování možné ihned.
Uživatel serveru RealityMIX.cz (dále jen „Server“) dostupného na internetové adrese (URL) https://www.realitymix.cz, který provozuje společnost DALTEN media s.r.o., se sídlem Na Harfě 916/9a, Praha 9, 190 00, IČO: 271 35 306 (dále jen „Správce“) jako provozovateli tohoto Serveru uděluje svůj výslovný souhlas v souladu s ustanovením § 5 zákona č. 101/2000 Sb. O ochraně osobních údajů a o změně některých zákonů, v platném znění (dále jen „zákon o ochraně osobních údajů“), se zpracováním uživatelem poskytnutých osobních údajů a dalších dat.
Uživatel poskytuje Správci osobní údaje v rozsahu: jméno, příjmení, e-mailová adresa, telefonický kontakt a další data, a to z důvodu projeveného zájmu o nemovitost, kde prostřednictvím služby Serveru Správce osloví Uživatel inzerenta uvedeného v detailu
nemovitosti - Středočeské reality, spol. s r.o. (IČ 27450767) se zájmem o jeho služby.
Uživatel tyto osobní údaje poskytuje dobrovolně a bere na vědomí, že součástí služeb Správce, které Správce Uživateli poskytuje, je vyhledání všech Uživateli vyhovujících (dle parametrů - cena, typ nemovitosti, lokalita atd.) nemovitostí. Správce za tímto účelem provozuje aplikace Hlídací pes a newsletter. Tyto služby je možné z každého zaslaného emailu odhlásit. Souhlas se zpracováním osobních údajů Uživatel poskytuje Správci na dobu neurčitou s tím, že svůj udělený souhlas může Uživatel kdykoliv na drese správce info@realitymix.cz odvolat. Správce garantuje Uživateli i další práva uvedené v ustanovení §11 a §21 zákoba č. 101/200 Sb. Ve znění pozdějších předpisů.
Více informací o zpracování údajů získáte zde (realitymix.cz/zasady-ochrany-osobnich-udaju)