Prostorný 4+1 s lodžií a sklepem v klidné části Chodova
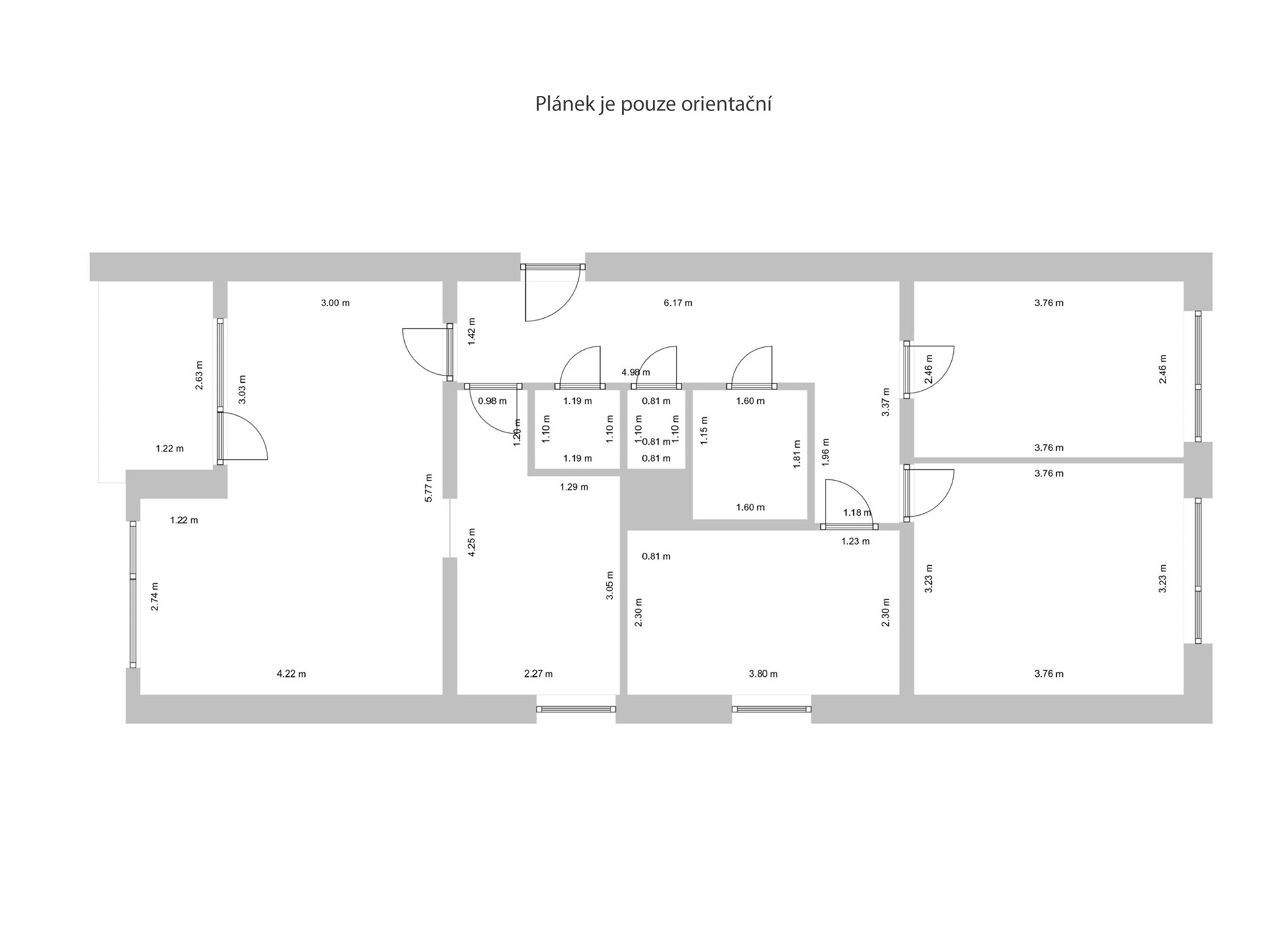
Hledáte prostorné bydlení v klidné části Prahy s možností úprav dle vlastních představ? Nabízíme ke koupi byt o dispozici 4+1, který se nachází ve vyvýšeném přízemí panelového domu v tiché Radimovické ulici na Chodově, Praha 11. Součástí bytu je také lodžie o velikosti 4,3 m² a sklep, ideální pro uskladnění sezónních věcí.
Byt je v původním stavu a připraven k rekonstrukci, což budoucímu majiteli otevírá možnost vytvořit si bydlení přesně na míru. Umístění ve vyvýšeném přízemí zajišťuje nejen pohodlný přístup, ale také dostatek soukromí. Výhodou je orientace oken do tří světových stran – na sever, východ a jih – což zajišťuje výbornou světlost bytu po celý den.
Pro lepší představu, jak může byt vypadat po rekonstrukci, jsou v galerii k inzerátu připraveny vizualizace navrženého interiéru. Ty mohou sloužit jako inspirace pro vlastní návrh i odhad potřebných investic.
Lokalita nabízí kompletní občanskou vybavenost – v docházkové vzdálenosti se nachází školy, školky, obchody, lékárny a další služby. Kromě městské infrastruktury je v okolí také dostatek zeleně. Pouhých pár minut chůze od domu leží Miličovský les a rybník, které vybízejí k procházkám, sportovním aktivitám i odpočinku v přírodě. Výborné je rovněž dopravní spojení do centra Prahy – nedaleko se nachází stanice metra a zastávky MHD, což zajišťuje pohodlné každodenní dojíždění.
Kupní cena činí 8.990.000 Kč a zahrnuje právní servis. Byt je možné financovat hypotečním úvěrem, s jehož vyřízením vám rádi pomůžeme.
Pokud hledáte klidné bydlení s možností úprav podle vlastních představ v dobře dostupné části Prahy, neváhejte nás kontaktovat pro více informací nebo domluvení prohlídky.
Cena:
Rezervováno
Dispozice/podlahová plocha:
4+1/76 m²
Číslo zakázky:
REALITYMIX-B964641
Podrobné informace
Dispozice bytu:4+1
Číslo podlaží v domě:1
Počet podlaží objektu:4
Celková podlahová plocha:76 m²
Druh objektu:panelová
Stav objektu:před rekonstrukcí
Vlastnictví:osobní
Lodžie:4 m²
Sklep:ano
Vybaveno:ano
Elektřina:Elektro - 230 V
Voda:Zdroj pro celý objekt, Voda - dálkový vodovod
Uživatel serveru RealityMIX.cz (dále jen „Server“) dostupného na internetové adrese (URL) https://www.realitymix.cz, který provozuje společnost DALTEN media s.r.o., se sídlem Na Harfě 916/9a, Praha 9, 190 00, IČO: 271 35 306 (dále jen „Správce“) jako provozovateli tohoto Serveru uděluje svůj výslovný souhlas v souladu s ustanovením § 5 zákona č. 101/2000 Sb. O ochraně osobních údajů a o změně některých zákonů, v platném znění (dále jen „zákon o ochraně osobních údajů“), se zpracováním uživatelem poskytnutých osobních údajů a dalších dat.
Uživatel poskytuje Správci osobní údaje v rozsahu: jméno, příjmení, e-mailová adresa, telefonický kontakt a další data, a to z důvodu projeveného zájmu o nemovitost, kde prostřednictvím služby Serveru Správce osloví Uživatel inzerenta uvedeného v detailu
nemovitosti - CENTURY 21 4fin Reality Praha, Opletalova (IČ 06542107) se zájmem o jeho služby. Tato společnost je součástí seskupení/sítě/franšízového modelu realitních kanceláří, jejich seznam můžete zobrazit kliknutím na tento odkaz.
CENTURY 21 4fin Reality Praha, Opletalova (IČ 06542107) , CENTURY 21 4fin Reality Ústí nad Orlicí (IČ 06542107) , CENTURY 21 4fin Reality Olomouc (IČ 06542107) , CENTURY 21 4fin Reality Ústí nad Labem (IČ 06542107) , CENTURY 21 4fin Reality Tábor (IČ 06542107) , CENTURY 21 4fin Reality Better together (IČ 06542107) , CENTURY 21 4fin Reality - pobočka Most (IČ 06542107) , 4fin Reality neinzerující Centrála (podřízena Century 21) (IČ 06542107)
Uživatel tyto osobní údaje poskytuje dobrovolně a bere na vědomí, že součástí služeb Správce, které Správce Uživateli poskytuje, je vyhledání všech Uživateli vyhovujících (dle parametrů - cena, typ nemovitosti, lokalita atd.) nemovitostí. Správce za tímto účelem provozuje aplikace Hlídací pes a newsletter. Tyto služby je možné z každého zaslaného emailu odhlásit. Souhlas se zpracováním osobních údajů Uživatel poskytuje Správci na dobu neurčitou s tím, že svůj udělený souhlas může Uživatel kdykoliv na drese správce info@realitymix.cz odvolat. Správce garantuje Uživateli i další práva uvedené v ustanovení §11 a §21 zákoba č. 101/200 Sb. Ve znění pozdějších předpisů.
Více informací o zpracování údajů získáte zde (realitymix.cz/zasady-ochrany-osobnich-udaju)