Jsou místa, kde otevřete okno a místo městského hluku vidíte zeleň.
Kde jste za dvě minuty v lese, ale zároveň zůstáváte plnohodnotně v Praze.
V bytě na ulici Na Křtině v pražském Újezdu u Průhonic získáte přesně tuto rovnováhu – moderní bydlení s výhledem do přírody, výbornou dostupností a nadstandardním prostorem oproti běžným 3+kk.
Ráno vás probudí světlo proudící velkými okny, dopoledne můžete vyrazit do Milíčovského háje a večer jste během chvíle na metru nebo v obchodním centru.
Tady se spojuje město a klid lesa.
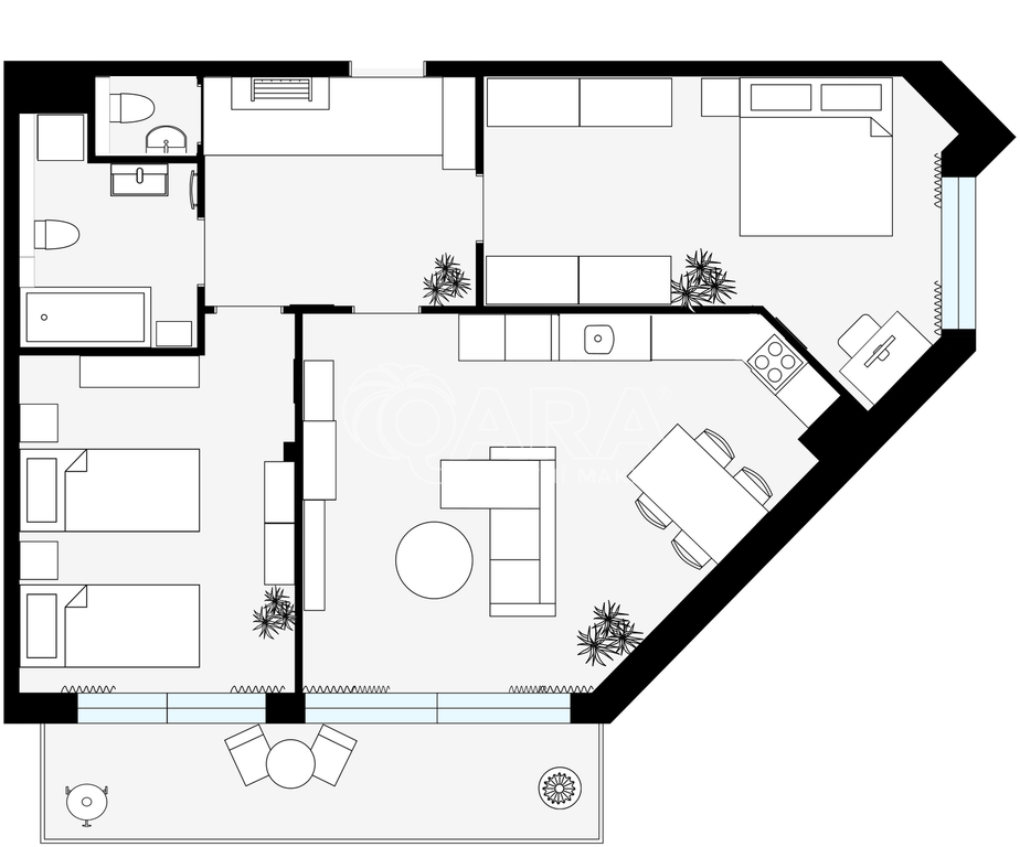
Prostor, který dává víc než běžné 3+kk
Byt o dispozici 3+kk a ploše 86,1 m² se nachází ve 3. nadzemním podlaží moderního domu z roku 2019.
To, co ho odlišuje, je velkorysost prostoru:
√ mimořádně prostorná vstupní chodba
√ velká ložnice s možností pracovního koutku
√ dva samostatné záchody
√ balkon přirozeně propojený s obývacím pokojem
√ vlastní sklep
√ garážové stání (zakladač)
Celková užitná plocha včetně příslušenství činí 107,79 m².
Díky bezbariérovému přístupu a výtahu z garáže i z ulice je byt ideální i pro rodiny s malými dětmi.
Světlo, výhled a atmosféra
Obývací pokoj a dětský pokoj jsou orientovány na východ, ložnice na sever.
Nejvíce slunce proudí do bytu dopoledne, ale díky velkým oknům zůstává interiér světlý po celý den.
Výhled do zeleně Milíčovského lesa vytváří pocit klidu a harmonie.
Dřevěné podlahy v dekoru dubu tento dojem ještě posilují – interiér působí teple a nadčasově.
V létě se balkon díky francouzským oknům mění v prodloužený obývací prostor.
Je zde dostatek místa pro posezení i dětské letní radosti.
Nadstandardní vybavení bez dalších investic
Součástí bytu je kuchyňská linka na míru značky Hanák a vestavěné skříně stejné značky v ložnici.
Interiér doplňují:
√ dřevěné podlahy (dub, oxidovaný, kartáčovaný, olejovaný)
√ bezfalcové dveře v dýze dub
√ koupelnové prvky značek Kolo a Kludi
√ chytré osvětlení Philips Hue v obytných místnostech (včetně bridge a ovladačů)
√ podlahový konvektor s ventilátorem v obývacím pokoji
Byt je vytápěn centrálně a ohřev vody zajišťuje společný plynový kotel v domě.
Lokalita, která má dlouhodobou hodnotu
Hlavní výhodou je bezprostřední blízkost Milíčovského háje – les začíná prakticky před domem.
V okolí najdete:
√ dětská hřiště
√ basketbalové hřiště a venkovní posilovnu
√ Zoopark Milíčov
√ rybníky a přírodní stezky
√ školy a školky
√ OC Opatovská
√ Westfield Chodov
Dopravní dostupnost je výborná:
√ autobusová zastávka Kateřinky cca 2 minuty
√ pěšky na metro Háje cca 15 minut
√ rychlé napojení na dálnici a pražský okruh
Bydlíte v klidné části s rodinnými domy a bez nutnosti „prodírat se“ městem.
Kupujete prověřenou nemovitost
Tento byt je prověřen nezávislou technickou inspekcí od firmy Nemoinspekt.
Rád vám osobně ukážu místo, kde může začít nový rodinný příběh – ten váš.
Napište mi ještě dnes a domluvme si osobní prohlídku.
Pomocí naší hypoteční kalkulačky si můžete udělat orientační představu o výši měsíčních splátek hypotéky. O vše ostatní se pak postaráme my ve spolupráci s našimi obchodními partnery.
54 536 Kč
* Odhadovaná měsíční splátka vychází z výše úvěru Kč s pevnou úrokovou sazbou % po celou dobu trvání úvěru.
Prodáváte nemovitost a potřebujete zjistit její reálnou hodnotu?
Uživatel serveru RealityMIX.cz (dále jen „Server“) dostupného na internetové adrese (URL) https://www.realitymix.cz, který provozuje společnost DALTEN media s.r.o., se sídlem Na Harfě 916/9a, Praha 9, 190 00, IČO: 271 35 306 (dále jen „Správce“) jako provozovateli tohoto Serveru uděluje svůj výslovný souhlas v souladu s ustanovením § 5 zákona č. 101/2000 Sb. O ochraně osobních údajů a o změně některých zákonů, v platném znění (dále jen „zákon o ochraně osobních údajů“), se zpracováním uživatelem poskytnutých osobních údajů a dalších dat.
Uživatel poskytuje Správci osobní údaje v rozsahu: jméno, příjmení, e-mailová adresa, telefonický kontakt a další data, a to z důvodu projeveného zájmu o nemovitost, kde prostřednictvím služby Serveru Správce osloví Uživatel inzerenta uvedeného v detailu
nemovitosti - QARA s.r.o. (IČ 01740113) se zájmem o jeho služby. Tato společnost je součástí seskupení/sítě/franšízového modelu realitních kanceláří, jejich seznam můžete zobrazit kliknutím na tento odkaz.
QARA s.r.o. Ostrava (IČ 01740113) , QARA s.r.o. Brno (IČ 01740113) , QARA s.r.o. (IČ 01740113)
Uživatel tyto osobní údaje poskytuje dobrovolně a bere na vědomí, že součástí služeb Správce, které Správce Uživateli poskytuje, je vyhledání všech Uživateli vyhovujících (dle parametrů - cena, typ nemovitosti, lokalita atd.) nemovitostí. Správce za tímto účelem provozuje aplikace Hlídací pes a newsletter. Tyto služby je možné z každého zaslaného emailu odhlásit. Souhlas se zpracováním osobních údajů Uživatel poskytuje Správci na dobu neurčitou s tím, že svůj udělený souhlas může Uživatel kdykoliv na drese správce info@realitymix.cz odvolat. Správce garantuje Uživateli i další práva uvedené v ustanovení §11 a §21 zákoba č. 101/200 Sb. Ve znění pozdějších předpisů.
Více informací o zpracování údajů získáte zde (realitymix.cz/zasady-ochrany-osobnich-udaju)