Zrekonstrovaný ateliér 76 m, Praha 1 - Martinská ul.
Nabízím k pronájmu ateliér ve zrekonstruovaném secesním domě v centru Prahy.
Dům se nachází na strategickém místě v Martinské ul., v docházkové vzdálenosti na stanici metra A (Můstek), B (Můstek a Národní třída) a na tramvajovou zastávku Národní třída. Je to ideální volba, kdo potřebuje reprezentativní prostory s výbornou dostupností.
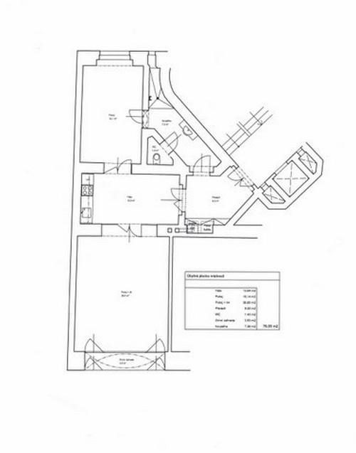
Prostory se nachází v 1.patře s výtahem. Celková plocha činí 76 m2 a sestává ze předsíně, haly s kuch. koutem, 2 místností (větší disponuje navíc zimní zahradou), koupelny a WC. Na podlaze je teraco.
Domovní poplatky jsou 900 Kč/os/měs (paušál), záloha na vodu je 350 Kč/os/měs. Energie se přehlašují na nájemce. Majitelé požadují jistinu ve výši 2 čistých nájmů.
K dispozici od 1.2.2026, prohlídky jsou možné po dohodě předem.
Cena:
42 000 Kč / (za měsíc)
Poznámka:
+ domovní poplatky 1.250 Kč/os/měs, el. a plyn se přehlašuje na nájemce, provize 1 nájem
Uživatel serveru RealityMIX.cz (dále jen „Server“) dostupného na internetové adrese (URL) https://www.realitymix.cz, který provozuje společnost DALTEN media s.r.o., se sídlem Na Harfě 916/9a, Praha 9, 190 00, IČO: 271 35 306 (dále jen „Správce“) jako provozovateli tohoto Serveru uděluje svůj výslovný souhlas v souladu s ustanovením § 5 zákona č. 101/2000 Sb. O ochraně osobních údajů a o změně některých zákonů, v platném znění (dále jen „zákon o ochraně osobních údajů“), se zpracováním uživatelem poskytnutých osobních údajů a dalších dat.
Uživatel poskytuje Správci osobní údaje v rozsahu: jméno, příjmení, e-mailová adresa, telefonický kontakt a další data, a to z důvodu projeveného zájmu o nemovitost, kde prostřednictvím služby Serveru Správce osloví Uživatel inzerenta uvedeného v detailu
nemovitosti - Realitní agentura Starlet (IČ 27170934) se zájmem o jeho služby.
Uživatel tyto osobní údaje poskytuje dobrovolně a bere na vědomí, že součástí služeb Správce, které Správce Uživateli poskytuje, je vyhledání všech Uživateli vyhovujících (dle parametrů - cena, typ nemovitosti, lokalita atd.) nemovitostí. Správce za tímto účelem provozuje aplikace Hlídací pes a newsletter. Tyto služby je možné z každého zaslaného emailu odhlásit. Souhlas se zpracováním osobních údajů Uživatel poskytuje Správci na dobu neurčitou s tím, že svůj udělený souhlas může Uživatel kdykoliv na drese správce info@realitymix.cz odvolat. Správce garantuje Uživateli i další práva uvedené v ustanovení §11 a §21 zákoba č. 101/200 Sb. Ve znění pozdějších předpisů.
Více informací o zpracování údajů získáte zde (realitymix.cz/zasady-ochrany-osobnich-udaju)