Zrekonstruovaný mezonetový byt s terasou s výhledem na město v exkluzivní lokalitě Vinohrad
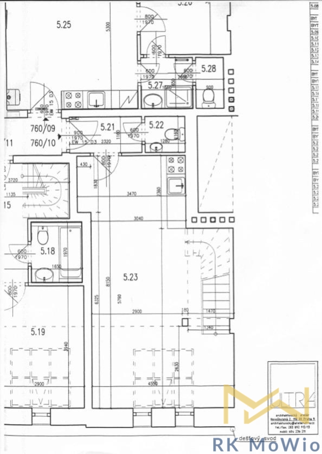
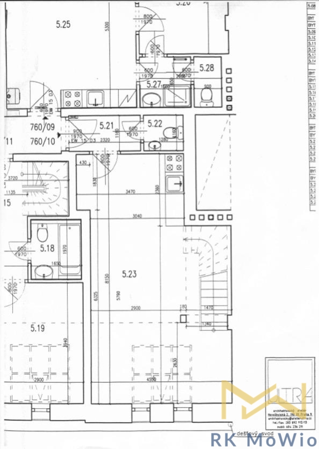
Na prodej nabízíme jedinečný, mezonetový byt o dispozici 2+kk o výměře 74,4 m2 a terasou o rozloze 10,7 m2. Tento exkluzivní byt se nachází na 5. a 6. patře (6. a 7. nadzemní podlaží) budovy s výtahem v prestižní lokalitě Prahy 2 - Královské Vinohrady v ulici Záhřebská.
V přízemí bytu Vás při vstupu uvítá vstupní chodba, odkud můžete přejít do světlého obývacího pokoje s vysokými stropy a šikmou střechou s velkoformátovým střešním oknem. Kuchyňský kout je vybaven moderními spotřebiči a barovým stolkem s vysokými židlemi a jídelním koutem, samostatná toaleta a schodiště. V prvním patře bytu naleznete útulnou, ale vzdušnou ložnici s manželskou postelí, vestavěnými skříněmi a vstupem na terasu. Dále zde najdete koupelnu (s rohovou vanou, umyvadlem a toaletou) a samostatný prostor pro pračku a úklidové prostředky. Byt je vybaven kuchyňskou linkou včetně lednice s mrazákem, plynovou varnou deskou, digestoří, elektrickou a mikrovlnnou troubou. K dispozici je také pračka, plynový kotel a připojení k vysokorychlostnímu internetu. Obytné prostory jsou vybaveny dřevěnými podlahami a v koupelně je dlažba.
Vinohrady patří mezi nejprestižnější a nejvyhledávanější rezidenční oblasti v Praze. Poloha této nemovitosti je skutečně výjimečná, protože veškeré potřebné služby jsou dostupné do 10 minut chůze (kavárny, restaurace, lokální obchody i obchody s potravinami, divadla, kina, polikliniku). Tramvajová zastávka Jana Masaryka je vzdálena pouze 2 minuty chůze, na stanici metra A - Náměstí Míru je to buďto 1 zastávku tramvají nebo 6 minut chůze. Václavské náměstí je veřejnou dopravou vzdáleno 5 minut.
Královské Vinohrady jsou dlouhodobě považovány za jednu z nejatraktivnějších pražských čtvrtí díky kombinaci reprezentativní architektury, zeleně a bohatého společenského života. V bezprostředním okolí se nachází široká nabídka vyhlášených restaurací, kaváren a bister, které vytvářejí jedinečnou atmosféru této čtvrti.
V docházkové vzdálenosti jsou také oblíbené parky Riegrovy sady a Havlíčkovy sady (Grébovka), které nabízejí prostor pro sport, odpočinek i společenská setkání. Lokalita zároveň poskytuje kompletní občanskou vybavenost – kvalitní školy, školky, zdravotnická zařízení, kulturní instituce i menší lokální obchody. Díky výborné dopravní dostupnosti je centrum města snadno dosažitelné během několika minut, což z této adresy činí ideální místo pro komfortní městské bydlení s atmosférou tradiční pražské rezidenční čtvrti.
Pomocí naší hypoteční kalkulačky si můžete udělat orientační představu o výši měsíčních splátek hypotéky. O vše ostatní se pak postaráme my ve spolupráci s našimi obchodními partnery.
54 658 Kč
* Odhadovaná měsíční splátka vychází z výše úvěru Kč s pevnou úrokovou sazbou % po celou dobu trvání úvěru.
Prodáváte nemovitost a potřebujete zjistit její reálnou hodnotu?
Uživatel serveru RealityMIX.cz (dále jen „Server“) dostupného na internetové adrese (URL) https://www.realitymix.cz, který provozuje společnost DALTEN media s.r.o., se sídlem Na Harfě 916/9a, Praha 9, 190 00, IČO: 271 35 306 (dále jen „Správce“) jako provozovateli tohoto Serveru uděluje svůj výslovný souhlas v souladu s ustanovením § 5 zákona č. 101/2000 Sb. O ochraně osobních údajů a o změně některých zákonů, v platném znění (dále jen „zákon o ochraně osobních údajů“), se zpracováním uživatelem poskytnutých osobních údajů a dalších dat.
Uživatel poskytuje Správci osobní údaje v rozsahu: jméno, příjmení, e-mailová adresa, telefonický kontakt a další data, a to z důvodu projeveného zájmu o nemovitost, kde prostřednictvím služby Serveru Správce osloví Uživatel inzerenta uvedeného v detailu
nemovitosti - RK MoWio s.r.o. (IČ 11880856) se zájmem o jeho služby.
Uživatel tyto osobní údaje poskytuje dobrovolně a bere na vědomí, že součástí služeb Správce, které Správce Uživateli poskytuje, je vyhledání všech Uživateli vyhovujících (dle parametrů - cena, typ nemovitosti, lokalita atd.) nemovitostí. Správce za tímto účelem provozuje aplikace Hlídací pes a newsletter. Tyto služby je možné z každého zaslaného emailu odhlásit. Souhlas se zpracováním osobních údajů Uživatel poskytuje Správci na dobu neurčitou s tím, že svůj udělený souhlas může Uživatel kdykoliv na drese správce info@realitymix.cz odvolat. Správce garantuje Uživateli i další práva uvedené v ustanovení §11 a §21 zákoba č. 101/200 Sb. Ve znění pozdějších předpisů.
Více informací o zpracování údajů získáte zde (realitymix.cz/zasady-ochrany-osobnich-udaju)