Nabízíme k prodeji řadový rodinný dům o dispozici 4+1, situovaný na adrese Gagarinova Č. p. 1213, Přelouč, okres Pardubice. Tento dvoupodlažní dům má zastavěnou plochu 89 m² a užitnou plochu 161 m², což poskytuje dostatek prostoru pro rodinné bydlení. Celková plocha parcely činí 333 m², zahrada má pak výměru 218 m².
Vytápění objektu je zajištěno plynovým kotlem a kotlem na tuhá paliva, přičemž topení je rozvedeno do radiátorů. Odpad je napojen na kanalizaci a přívod vody zajišťuje vodovod.
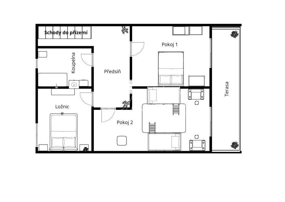
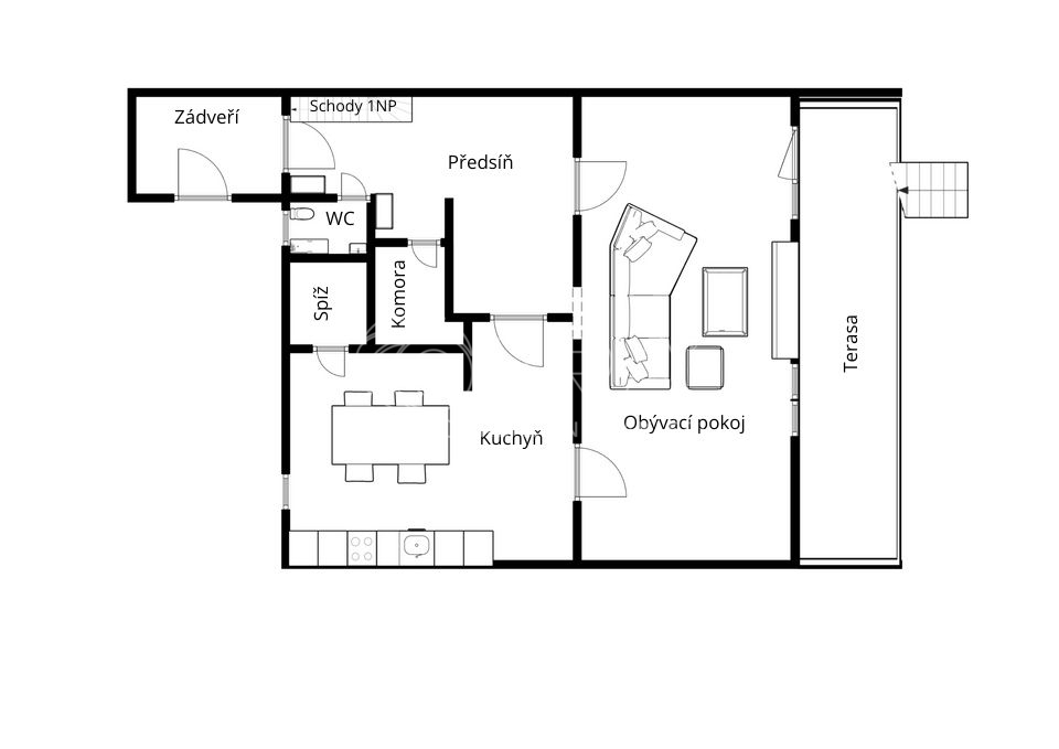
Nemovitost je kompletně podsklepena, s plochou sklepa 66 m², což poskytuje dostatek úložného prostoru. Součástí domu je také garáž o výměře 23 m², ideální pro bezpečné parkování.
Ve druhém patře se nachází tři prostorné pokoje, z nichž dva jsou propojené balkonem, což poskytuje příjemné výhledy a možnost relaxace na čerstvém vzduchu. Obývací pokoj je propojen s terasou o výměře 21 m², ze které se dostanete přímo na zahradu. Tato zahrada je vynikajícím místem pro rodinné oslavy či odpočinek a nabízí prostor pro pěstování rostlin nebo zahradničení.
Dům je připraven na rekonstrukci, což umožňuje novému majiteli přizpůsobit si interiér podle vlastních představ a potřeb. Konečná úprava domu může být skvělou příležitostí pro realizaci vlastního stylu bydlení.
Dům se nachází v klidné lokalitě, která nabízí pohodlné spojení s okolní infrastrukturou, a to včetně vlakového a autobusového spojení.
V případě zájmu o prohlídku nás neváhejte kontaktovat.
Pomocí naší hypoteční kalkulačky si můžete udělat orientační představu o výši měsíčních splátek hypotéky. O vše ostatní se pak postaráme my ve spolupráci s našimi obchodními partnery.
30 365 Kč
* Odhadovaná měsíční splátka vychází z výše úvěru Kč s pevnou úrokovou sazbou % po celou dobu trvání úvěru.
Uživatel serveru RealityMIX.cz (dále jen „Server“) dostupného na internetové adrese (URL) https://www.realitymix.cz, který provozuje společnost DALTEN media s.r.o., se sídlem Na Harfě 916/9a, Praha 9, 190 00, IČO: 271 35 306 (dále jen „Správce“) jako provozovateli tohoto Serveru uděluje svůj výslovný souhlas v souladu s ustanovením § 5 zákona č. 101/2000 Sb. O ochraně osobních údajů a o změně některých zákonů, v platném znění (dále jen „zákon o ochraně osobních údajů“), se zpracováním uživatelem poskytnutých osobních údajů a dalších dat.
Uživatel poskytuje Správci osobní údaje v rozsahu: jméno, příjmení, e-mailová adresa, telefonický kontakt a další data, a to z důvodu projeveného zájmu o nemovitost, kde prostřednictvím služby Serveru Správce osloví Uživatel inzerenta uvedeného v detailu
nemovitosti - QARA s.r.o. (IČ 01740113) se zájmem o jeho služby. Tato společnost je součástí seskupení/sítě/franšízového modelu realitních kanceláří, jejich seznam můžete zobrazit kliknutím na tento odkaz.
QARA s.r.o. Ostrava (IČ 01740113) , QARA s.r.o. Brno (IČ 01740113) , QARA s.r.o. (IČ 01740113)
Uživatel tyto osobní údaje poskytuje dobrovolně a bere na vědomí, že součástí služeb Správce, které Správce Uživateli poskytuje, je vyhledání všech Uživateli vyhovujících (dle parametrů - cena, typ nemovitosti, lokalita atd.) nemovitostí. Správce za tímto účelem provozuje aplikace Hlídací pes a newsletter. Tyto služby je možné z každého zaslaného emailu odhlásit. Souhlas se zpracováním osobních údajů Uživatel poskytuje Správci na dobu neurčitou s tím, že svůj udělený souhlas může Uživatel kdykoliv na drese správce info@realitymix.cz odvolat. Správce garantuje Uživateli i další práva uvedené v ustanovení §11 a §21 zákoba č. 101/200 Sb. Ve znění pozdějších předpisů.
Více informací o zpracování údajů získáte zde (realitymix.cz/zasady-ochrany-osobnich-udaju)