Vítejte na cestě k Vašemu novému domovu! ????
Představujeme Vám výjimečnou příležitost: prostorný a slunný byt 4+1 v žádané lokalitě Příbram - Pod Haldou. Nejedná se jen o bydlení, ale o místo, kde se snoubí klid, zeleň a nádherné výhledy.
________________________________________
Klíčové vlastnosti a Benefity
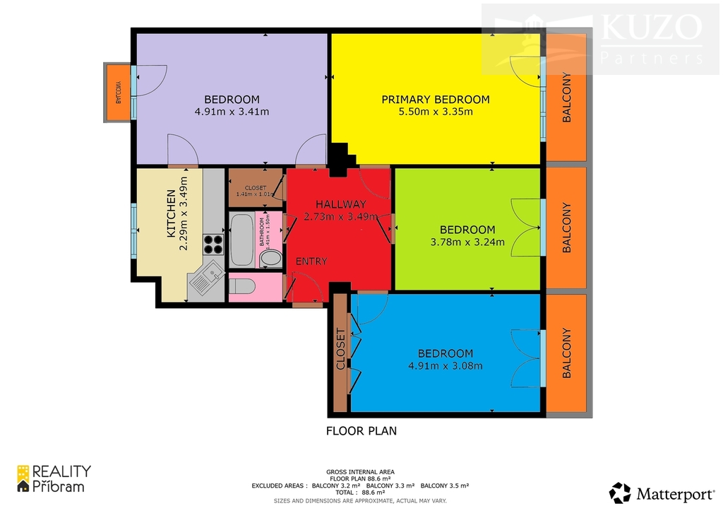
• Dispozice a Prostor: Praktický a velmi žádaný byt 4+1 (3 ložnice, obývací pokoj a samostatná kuchyně). Výměra dle katastru činí 85,5 m². Všechny prostory si můžete detailně prohlédnout v moderní 3D vizualizaci (Matterport, který uvadí plochu 88,6m2).
• Venkovní Relaxace: K bytu náleží hned 3 lodžie a 1 balkon, které poskytují dostatek venkovního prostoru pro relaxaci.
• Architektura a Podlaží: Byt se nachází ve 3. patře cihlového domu bez výtahu.
• Stav a Renovace: Byt prošel částečnou rekonstrukcí. Má předělanou elektroinstalaci, plyn a rozvody vody jsou v plastu. Samostatný ohřev vody, takže se bytu netýkají výluky teplé vody. Velkým plusem jsou poctivé dubové parkety v pokojích.
• Komfort: K bytu patří samostatná toaleta, koupelna s vanou a malá praktická komora.
________________________________________
Lokalita, Kterou si Zamilujete
Pod Hladou je jednou z nejoblíbenějších lokalit pro rodinné bydlení v Příbrami.
• Výhled a Zeleň: Zapomeňte na pohled do oken sousedů! Zde si užijete výhledy do zeleného parku a krásné panorama města. Lokalita je velmi klidná a obklopená zelení.
• Parkování: K dispozici je dostatek parkovacích míst přímo před domem i pod ním.
• Oblíbenost: Tato lokalita je vysoce ceněná pro svůj klid a výbornou dostupnost.
________________________________________
Neztrácejte čas a domluvte si prohlídku!
Tento byt nabízí nadstandardní bydlení v cihle v kombinaci s jedinečnou lokalitou.
Podrobnosti k bytu: 4+1, Cihla, 4. patro (bez výtahu), Podlahy: Dubové parkety, Rekonstrukce elektřiny a vody.
Využijte šance a udělejte si z této adresy svůj Nový Domov!
Upozornění: Fotografie označené hvězdičkou (*) v pravém dolním rohu jsou vizualizovány nábytkem pomocí umělé inteligence a slouží pouze pro ilustraci možného budoucího stavu.
Pomocí naší hypoteční kalkulačky si můžete udělat orientační představu o výši měsíčních splátek hypotéky. O vše ostatní se pak postaráme my ve spolupráci s našimi obchodními partnery.
25 062 Kč
* Odhadovaná měsíční splátka vychází z výše úvěru Kč s pevnou úrokovou sazbou % po celou dobu trvání úvěru.
Prodáváte nemovitost a potřebujete zjistit její reálnou hodnotu?
Uživatel serveru RealityMIX.cz (dále jen „Server“) dostupného na internetové adrese (URL) https://www.realitymix.cz, který provozuje společnost DALTEN media s.r.o., se sídlem Na Harfě 916/9a, Praha 9, 190 00, IČO: 271 35 306 (dále jen „Správce“) jako provozovateli tohoto Serveru uděluje svůj výslovný souhlas v souladu s ustanovením § 5 zákona č. 101/2000 Sb. O ochraně osobních údajů a o změně některých zákonů, v platném znění (dále jen „zákon o ochraně osobních údajů“), se zpracováním uživatelem poskytnutých osobních údajů a dalších dat.
Uživatel poskytuje Správci osobní údaje v rozsahu: jméno, příjmení, e-mailová adresa, telefonický kontakt a další data, a to z důvodu projeveného zájmu o nemovitost, kde prostřednictvím služby Serveru Správce osloví Uživatel inzerenta uvedeného v detailu
nemovitosti - KUZO Partners s.r.o. (IČ 27602974) se zájmem o jeho služby.
Uživatel tyto osobní údaje poskytuje dobrovolně a bere na vědomí, že součástí služeb Správce, které Správce Uživateli poskytuje, je vyhledání všech Uživateli vyhovujících (dle parametrů - cena, typ nemovitosti, lokalita atd.) nemovitostí. Správce za tímto účelem provozuje aplikace Hlídací pes a newsletter. Tyto služby je možné z každého zaslaného emailu odhlásit. Souhlas se zpracováním osobních údajů Uživatel poskytuje Správci na dobu neurčitou s tím, že svůj udělený souhlas může Uživatel kdykoliv na drese správce info@realitymix.cz odvolat. Správce garantuje Uživateli i další práva uvedené v ustanovení §11 a §21 zákoba č. 101/200 Sb. Ve znění pozdějších předpisů.
Více informací o zpracování údajů získáte zde (realitymix.cz/zasady-ochrany-osobnich-udaju)