RealityMIX.cz

Kraj

Hl. m. Praha

Jihočeský

Jihomoravský

Karlovarský

Královéhradecký

Liberecký

Moravskoslezský

Olomoucký

Pardubický

Plzeňský

Středočeský

Ústecký

Vysočina

Zlínský

Příbram

Cena

Plocha

Podlaží

   

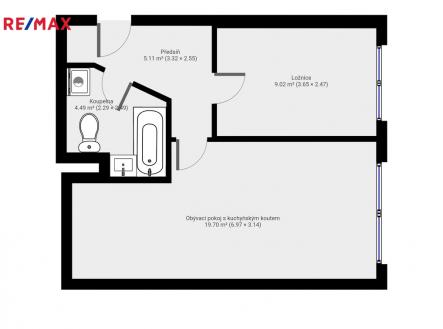
Pronájem bytů - byty k pronájmu - Příbram

Vyhledávání nemovitostí v kategorii Pronájem bytů - byty k pronájmu - Příbram. Vyberte si z naší nabídky nemovitostí, případně si upravte filtr vyhledávání.

reklama
reklama