Skladové prostory 193 m2 v areálu vedle Turnova u dálnice D10
K pronájmu nabízíme prostory o celkové ploše 193 m2.
Prostory jsou temperované (temperace je v ceně nájmu, vytápění na vyšší teplotu je možné za úhradu).
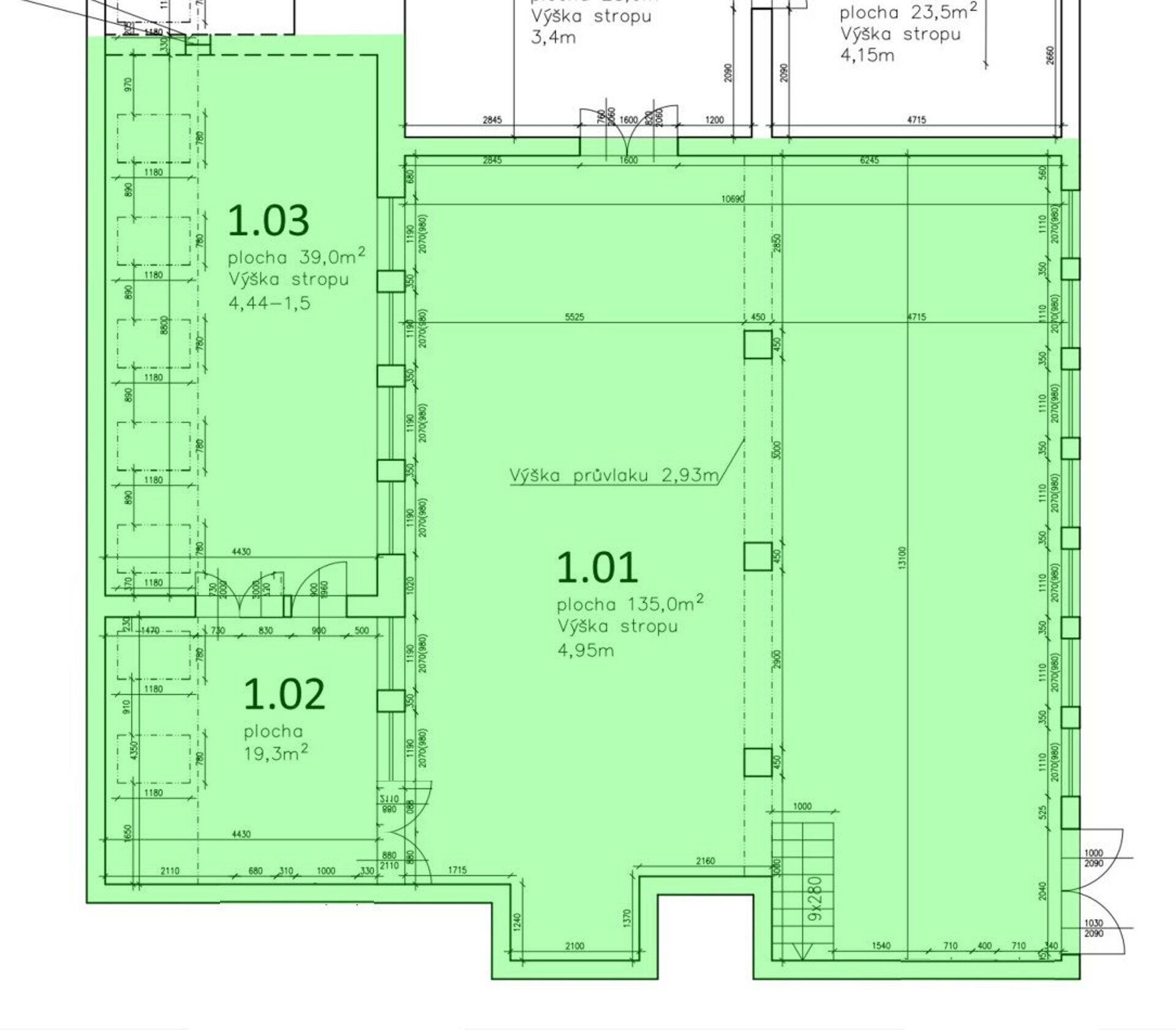
Jedná se o tři prostory propojené vraty / velkými dveřmi:
- prostor 135 m², výška stropu 4,95 m
- prostor 39 m², výška stropu až 4,4 m (částečně šikmá střecha se světlíky)
- prostor 19 m², výška stropu až 4,4 m (částečně šikmá střecha se světlíky).
Objekt je:
- přízemní se ŽB konstrukcí, s obezděním
- bez podsklepení
- střecha se světlíky
- betonové podlahy
- okna s dvojitým zasklením
- vstup vraty ze dvora
- elektrické instalace – zásuvky a osvětlení
- v jedné místnosti instalováno umyvadlo
- budova je celkově v dobrém stavu.
Dvůr je vyasfaltován. Před areálem je k dispozici vlastní parkoviště pro až 40 osobních automobilů (zpevněno zatravňovací dlažbou a betonovými panely).
Pronajímané prostory nemají přístup k WC (v případě dlouhodobého pronájmu lze uvažovat o vybudování samostatného WC).
V případě zájmu lze prostory nejenom temperovat, ale za úhradu i vytápět na běžnou teplotu.
Uživatel serveru RealityMIX.cz (dále jen „Server“) dostupného na internetové adrese (URL) https://www.realitymix.cz, který provozuje společnost DALTEN media s.r.o., se sídlem Na Harfě 916/9a, Praha 9, 190 00, IČO: 271 35 306 (dále jen „Správce“) jako provozovateli tohoto Serveru uděluje svůj výslovný souhlas v souladu s ustanovením § 5 zákona č. 101/2000 Sb. O ochraně osobních údajů a o změně některých zákonů, v platném znění (dále jen „zákon o ochraně osobních údajů“), se zpracováním uživatelem poskytnutých osobních údajů a dalších dat.
Uživatel poskytuje Správci osobní údaje v rozsahu: jméno, příjmení, e-mailová adresa, telefonický kontakt a další data, a to z důvodu projeveného zájmu o nemovitost, kde prostřednictvím služby Serveru Správce osloví Uživatel inzerenta uvedeného v detailu
nemovitosti - GENERA s.r.o. (IČ 47541075) se zájmem o jeho služby.
Uživatel tyto osobní údaje poskytuje dobrovolně a bere na vědomí, že součástí služeb Správce, které Správce Uživateli poskytuje, je vyhledání všech Uživateli vyhovujících (dle parametrů - cena, typ nemovitosti, lokalita atd.) nemovitostí. Správce za tímto účelem provozuje aplikace Hlídací pes a newsletter. Tyto služby je možné z každého zaslaného emailu odhlásit. Souhlas se zpracováním osobních údajů Uživatel poskytuje Správci na dobu neurčitou s tím, že svůj udělený souhlas může Uživatel kdykoliv na drese správce info@realitymix.cz odvolat. Správce garantuje Uživateli i další práva uvedené v ustanovení §11 a §21 zákoba č. 101/200 Sb. Ve znění pozdějších předpisů.
Více informací o zpracování údajů získáte zde (realitymix.cz/zasady-ochrany-osobnich-udaju)