Prodej komerčního objektu v centru města u parkoviště a pěší zóny
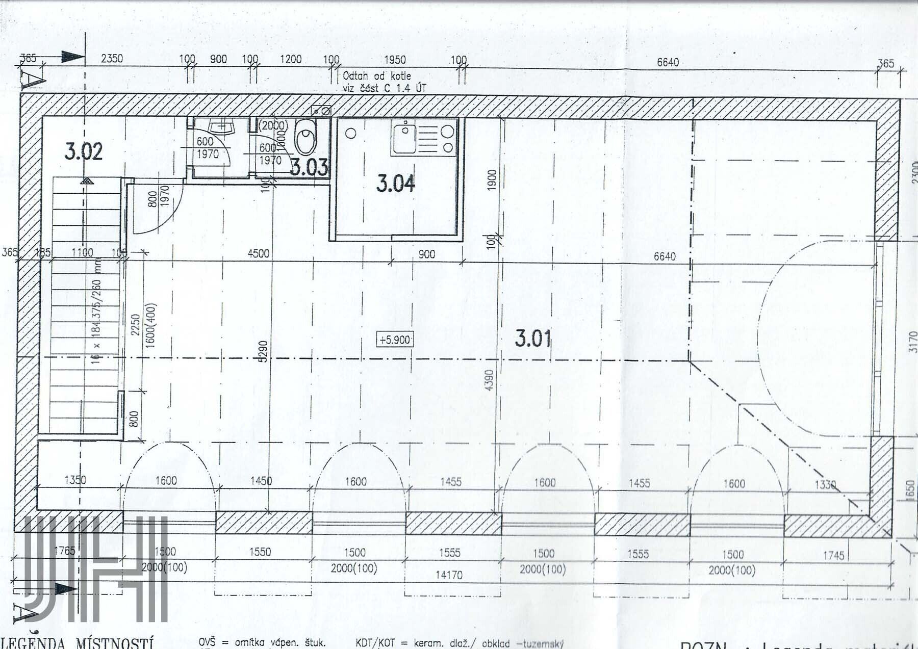
Nabízíme k prodeji komerční objekt nacházející se na velmi atraktivním místě centra Prostějova na okraji pěší zóny centra a centrálního parkoviště. Dům byl postaven v roce 1997, má tři podlaží, v přízemí se nachází prodejna se skladem, sociálním zařízením a kanceláří o rozměrech 13 x 7 m, 91 m2, z boční strany budovy je samostatný vstup do 1. a 2. patra objektu, 1. patro tvoří galerie částečně otevřená do prostoru v přízemí a 2. patro v současné době slouží jako 2x kancelář, kuchyně, koupelna s WC a archiv. Prostor v 2. patře byl původně plánován jako byt 3+kk. Dům je napojen na veškeré inženýrské sítě, plynové ústřední vytápění i ohřev teplé vody. Podlaha v přízemí je krytá dlažbou, v dalších podlažích laminátové podlahy, okna i výkladce dřevěné s dvojskly. Dům je v dobrém technickém stavu, jedna z mála novostaveb v historickém centru města, navíc u parkoviště a uličky spojující parkoviště s hlavním náměstím v Prostějově. Celý objekt je dlouhodobě pronajímán jednomu nájemci. PENB – G, aktuální PENB bude vypracován k prodeji. Podlahová plocha 210 m2, plocha pozemku: 101 m2.
Pomocí naší hypoteční kalkulačky si můžete udělat orientační představu o výši měsíčních splátek hypotéky. O vše ostatní se pak postaráme my ve spolupráci s našimi obchodními partnery.
54 253 Kč
* Odhadovaná měsíční splátka vychází z výše úvěru Kč s pevnou úrokovou sazbou % po celou dobu trvání úvěru.
Uživatel serveru RealityMIX.cz (dále jen „Server“) dostupného na internetové adrese (URL) https://www.realitymix.cz, který provozuje společnost DALTEN media s.r.o., se sídlem Na Harfě 916/9a, Praha 9, 190 00, IČO: 271 35 306 (dále jen „Správce“) jako provozovateli tohoto Serveru uděluje svůj výslovný souhlas v souladu s ustanovením § 5 zákona č. 101/2000 Sb. O ochraně osobních údajů a o změně některých zákonů, v platném znění (dále jen „zákon o ochraně osobních údajů“), se zpracováním uživatelem poskytnutých osobních údajů a dalších dat.
Uživatel poskytuje Správci osobní údaje v rozsahu: jméno, příjmení, e-mailová adresa, telefonický kontakt a další data, a to z důvodu projeveného zájmu o nemovitost, kde prostřednictvím služby Serveru Správce osloví Uživatel inzerenta uvedeného v detailu
nemovitosti - JH REALITY (IČ 45443769) se zájmem o jeho služby.
Uživatel tyto osobní údaje poskytuje dobrovolně a bere na vědomí, že součástí služeb Správce, které Správce Uživateli poskytuje, je vyhledání všech Uživateli vyhovujících (dle parametrů - cena, typ nemovitosti, lokalita atd.) nemovitostí. Správce za tímto účelem provozuje aplikace Hlídací pes a newsletter. Tyto služby je možné z každého zaslaného emailu odhlásit. Souhlas se zpracováním osobních údajů Uživatel poskytuje Správci na dobu neurčitou s tím, že svůj udělený souhlas může Uživatel kdykoliv na drese správce info@realitymix.cz odvolat. Správce garantuje Uživateli i další práva uvedené v ustanovení §11 a §21 zákoba č. 101/200 Sb. Ve znění pozdějších předpisů.
Více informací o zpracování údajů získáte zde (realitymix.cz/zasady-ochrany-osobnich-udaju)