Prodej komerčního pozemku s vydaným stavebním povolením
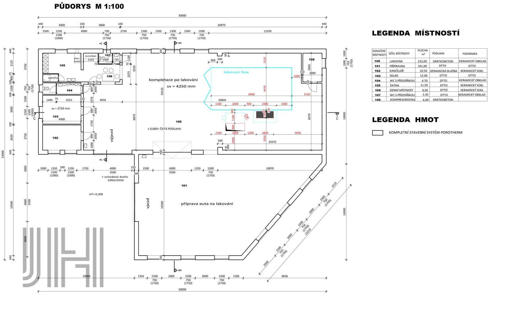
Nabízíme k prodeji komerční pozemek o výměře 2.851 m2 s projektovou dokumetací na stavbu haly se zázemím pro zřízení provozu lakovny. Pozemek o velikosti 62 m šířky podél komunikace a 60 m délky, má 2x zřízenou přípojku elektřiny, obecní voda a plyn na hranici pozemku, lze napojit, kanalizace není, navržený objekt má kanalizaci do jímky, vytápění plynem. Pozemek je částečně oplocen s posuvnou vjezdovou bránou. Hala se zázemím navržena na pozemku je vel. 30 x 22 m postavena pro provoz lakovny se zázemím. Zaplacen odvoz zeminy. Pozemek je dle územního plánu plocha smíšená výrobní se zastavitelností až 40 % a max. výškou stavby 10 m. Možnost využití pro showroom, stavebniny, sídlo speditérské firmy, autobazar, zahradnictví, obchod i služby. Velmi frekventovaná lokalita s výbornou viditelností u křižovatky obchvatu města. Celková plocha pozemku: 2.851 m2.
Pomocí naší hypoteční kalkulačky si můžete udělat orientační představu o výši měsíčních splátek hypotéky. O vše ostatní se pak postaráme my ve spolupráci s našimi obchodními partnery.
48 585 Kč
* Odhadovaná měsíční splátka vychází z výše úvěru Kč s pevnou úrokovou sazbou % po celou dobu trvání úvěru.
Uživatel serveru RealityMIX.cz (dále jen „Server“) dostupného na internetové adrese (URL) https://www.realitymix.cz, který provozuje společnost DALTEN media s.r.o., se sídlem Na Harfě 916/9a, Praha 9, 190 00, IČO: 271 35 306 (dále jen „Správce“) jako provozovateli tohoto Serveru uděluje svůj výslovný souhlas v souladu s ustanovením § 5 zákona č. 101/2000 Sb. O ochraně osobních údajů a o změně některých zákonů, v platném znění (dále jen „zákon o ochraně osobních údajů“), se zpracováním uživatelem poskytnutých osobních údajů a dalších dat.
Uživatel poskytuje Správci osobní údaje v rozsahu: jméno, příjmení, e-mailová adresa, telefonický kontakt a další data, a to z důvodu projeveného zájmu o nemovitost, kde prostřednictvím služby Serveru Správce osloví Uživatel inzerenta uvedeného v detailu
nemovitosti - JH REALITY (IČ 45443769) se zájmem o jeho služby.
Uživatel tyto osobní údaje poskytuje dobrovolně a bere na vědomí, že součástí služeb Správce, které Správce Uživateli poskytuje, je vyhledání všech Uživateli vyhovujících (dle parametrů - cena, typ nemovitosti, lokalita atd.) nemovitostí. Správce za tímto účelem provozuje aplikace Hlídací pes a newsletter. Tyto služby je možné z každého zaslaného emailu odhlásit. Souhlas se zpracováním osobních údajů Uživatel poskytuje Správci na dobu neurčitou s tím, že svůj udělený souhlas může Uživatel kdykoliv na drese správce info@realitymix.cz odvolat. Správce garantuje Uživateli i další práva uvedené v ustanovení §11 a §21 zákoba č. 101/200 Sb. Ve znění pozdějších předpisů.
Více informací o zpracování údajů získáte zde (realitymix.cz/zasady-ochrany-osobnich-udaju)