Prodej, rodinný dům 4+kk, 88 m2, Prostějov-Čechůvky
Nabízíme k prodeji rodinný dům v Prostějově, část Čechůvky, jen 5 minut od centra města. Dům disponuje dvěmi nadzemními podlažími o celkové užitné ploše cca 88,6 m² (1. NP 50,7 m², 2. NP 37,9 m²) a zastavěné ploše 87 m². Dům byl kolaudován kolem roku 1945 a je postaven ze smíšeného zdiva – kámen, cihly a tvárnice.
Nemovitost je napojena na obecní vodovod i kanalizaci. Střecha je krytá pálenou taškou a zateplená vatou. O vytápění se starají plynové přímotopy / karma. V domě jsou střešní okna Velux (dřevěná), ostatní okna Vekra (plastová) a plastové vchodové dveře. Elektroinstalace je v původním stavu. K dispozici je také zásuvka na 380 V.
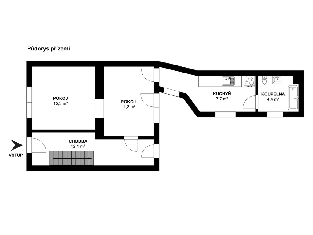
Dispozice domu je zajímavá a má své osobité kouzlo – pokoje mají nepravidelné tvary, což vychází ze šikmého usazení domu na pozemku. Koupelna s kuchyní byla řešena formou přístavby.
Součástí zázemí je také dvorek, na kterém se nachází kůlna, kurník a sklep na brambory, což ocení zejména zájemci hledající praktické hospodářské využití.
Nemovitost je vhodná pro ty, kteří hledají dům s charakterem, možností úprav podle vlastních představ a zázemím pro bydlení i drobné hospodaření.
U této nabídky zajišťujeme kupujícím financování skrze partnera SMS finance za nejvýhodnějších podmínek na trhu.
Pomocí naší hypoteční kalkulačky si můžete udělat orientační představu o výši měsíčních splátek hypotéky. O vše ostatní se pak postaráme my ve spolupráci s našimi obchodními partnery.
13 361 Kč
* Odhadovaná měsíční splátka vychází z výše úvěru Kč s pevnou úrokovou sazbou % po celou dobu trvání úvěru.
Uživatel serveru RealityMIX.cz (dále jen „Server“) dostupného na internetové adrese (URL) https://www.realitymix.cz, který provozuje společnost DALTEN media s.r.o., se sídlem Na Harfě 916/9a, Praha 9, 190 00, IČO: 271 35 306 (dále jen „Správce“) jako provozovateli tohoto Serveru uděluje svůj výslovný souhlas v souladu s ustanovením § 5 zákona č. 101/2000 Sb. O ochraně osobních údajů a o změně některých zákonů, v platném znění (dále jen „zákon o ochraně osobních údajů“), se zpracováním uživatelem poskytnutých osobních údajů a dalších dat.
Uživatel poskytuje Správci osobní údaje v rozsahu: jméno, příjmení, e-mailová adresa, telefonický kontakt a další data, a to z důvodu projeveného zájmu o nemovitost, kde prostřednictvím služby Serveru Správce osloví Uživatel inzerenta uvedeného v detailu
nemovitosti - SMS reality s.r.o. (IČ 04095421) se zájmem o jeho služby.
Uživatel tyto osobní údaje poskytuje dobrovolně a bere na vědomí, že součástí služeb Správce, které Správce Uživateli poskytuje, je vyhledání všech Uživateli vyhovujících (dle parametrů - cena, typ nemovitosti, lokalita atd.) nemovitostí. Správce za tímto účelem provozuje aplikace Hlídací pes a newsletter. Tyto služby je možné z každého zaslaného emailu odhlásit. Souhlas se zpracováním osobních údajů Uživatel poskytuje Správci na dobu neurčitou s tím, že svůj udělený souhlas může Uživatel kdykoliv na drese správce info@realitymix.cz odvolat. Správce garantuje Uživateli i další práva uvedené v ustanovení §11 a §21 zákoba č. 101/200 Sb. Ve znění pozdějších předpisů.
Více informací o zpracování údajů získáte zde (realitymix.cz/zasady-ochrany-osobnich-udaju)