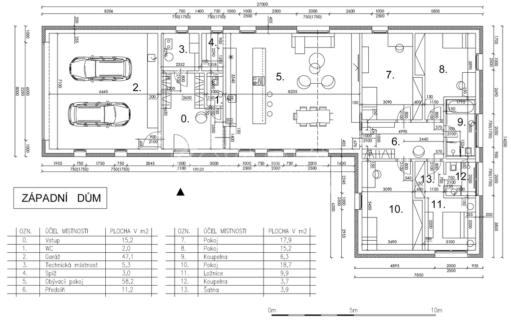
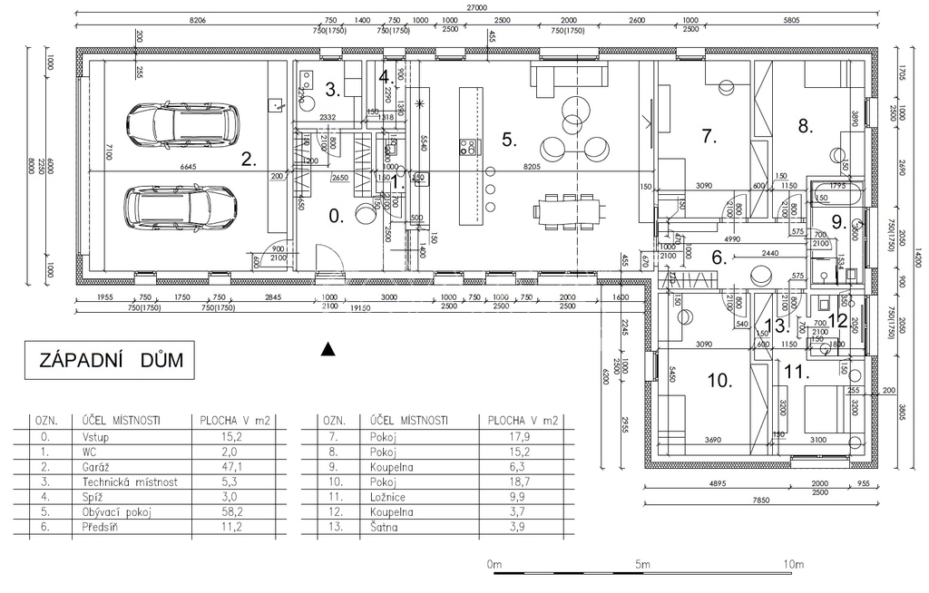
Novostavba pasivního domu, 5+kk, garáž, 218m2, pozemek 1003m2, Olešky, Praha - Východ
Zbývá poslední dům!
Vítejte v Oleškách, kde vznikla dvojice domů, které si na nic nehrají. Čistý design. Promyšlený prostor.
Klid. Technologie, které slouží – neobtěžují. Domy, které dýchají – stejně jako vy.
✔️ 218 m² promyšleného prostoru pro život, tvoření i odpočinek.
✔️ 1 003 m² půdy – země, která vám dá kořeny i svobodu.
Domy jsou navrženy v energetickém standardu (PENB A) – úsporné, zdravé a dlouhodobě udržitelné.
Každý detail zde podporuje principy minimalismu, zdraví a ekologie:
✔️ Rekuperace Zehnder pro čerstvý vzduch a zdravý spánek
✔️ Fotovoltaika Solax s bateriemi a wallboxem pro vlastní energii
✔️ Vytápění a ohřev vody Tepelné čerpadlo Stiebel Eltron
✔️ Chlazení tepelným čerpadlem Stiebel Eltron
✔️ Předokenní žaluzie pro komfort i úsporu
Dispozice, která nabízí prostor pro vaši kreativitu
A také praktická jistota, že vše potřebné máte k dispozici:
✔️ Vodovod i vlastní vrtaná studna – voda, která proudí i patří vám
✔️ Veřejná kanalizace – čistota a jednoduchost bez starostí
✔️ Plyn v pilíři – energie pro další možnosti
✔️ Optický internet – spojení se světem, i když žijete v klidu
Tohle není jen dům.
Je to prostor v rovnováze – technologie a ticho, čistota a teplo domova.
Pomocí naší hypoteční kalkulačky si můžete udělat orientační představu o výši měsíčních splátek hypotéky. O vše ostatní se pak postaráme my ve spolupráci s našimi obchodními partnery.
80 570 Kč
* Odhadovaná měsíční splátka vychází z výše úvěru Kč s pevnou úrokovou sazbou % po celou dobu trvání úvěru.
Uživatel serveru RealityMIX.cz (dále jen „Server“) dostupného na internetové adrese (URL) https://www.realitymix.cz, který provozuje společnost DALTEN media s.r.o., se sídlem Na Harfě 916/9a, Praha 9, 190 00, IČO: 271 35 306 (dále jen „Správce“) jako provozovateli tohoto Serveru uděluje svůj výslovný souhlas v souladu s ustanovením § 5 zákona č. 101/2000 Sb. O ochraně osobních údajů a o změně některých zákonů, v platném znění (dále jen „zákon o ochraně osobních údajů“), se zpracováním uživatelem poskytnutých osobních údajů a dalších dat.
Uživatel poskytuje Správci osobní údaje v rozsahu: jméno, příjmení, e-mailová adresa, telefonický kontakt a další data, a to z důvodu projeveného zájmu o nemovitost, kde prostřednictvím služby Serveru Správce osloví Uživatel inzerenta uvedeného v detailu
nemovitosti - QARA s.r.o. (IČ 01740113) se zájmem o jeho služby. Tato společnost je součástí seskupení/sítě/franšízového modelu realitních kanceláří, jejich seznam můžete zobrazit kliknutím na tento odkaz.
QARA s.r.o. Ostrava (IČ 01740113) , QARA s.r.o. Brno (IČ 01740113) , QARA s.r.o. (IČ 01740113)
Uživatel tyto osobní údaje poskytuje dobrovolně a bere na vědomí, že součástí služeb Správce, které Správce Uživateli poskytuje, je vyhledání všech Uživateli vyhovujících (dle parametrů - cena, typ nemovitosti, lokalita atd.) nemovitostí. Správce za tímto účelem provozuje aplikace Hlídací pes a newsletter. Tyto služby je možné z každého zaslaného emailu odhlásit. Souhlas se zpracováním osobních údajů Uživatel poskytuje Správci na dobu neurčitou s tím, že svůj udělený souhlas může Uživatel kdykoliv na drese správce info@realitymix.cz odvolat. Správce garantuje Uživateli i další práva uvedené v ustanovení §11 a §21 zákoba č. 101/200 Sb. Ve znění pozdějších předpisů.
Více informací o zpracování údajů získáte zde (realitymix.cz/zasady-ochrany-osobnich-udaju)