Investiční příležitost v centru Radnic – měšťanský dům 377 m² s možností více využití | Radnice
V historickém jádru města Radnice, přímo na náměstí Kašpara Šternberka, nabízíme výjimečný měšťanský dům s kombinací komerčního a rezidenčního potenciálu.
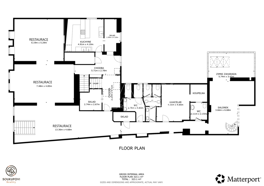
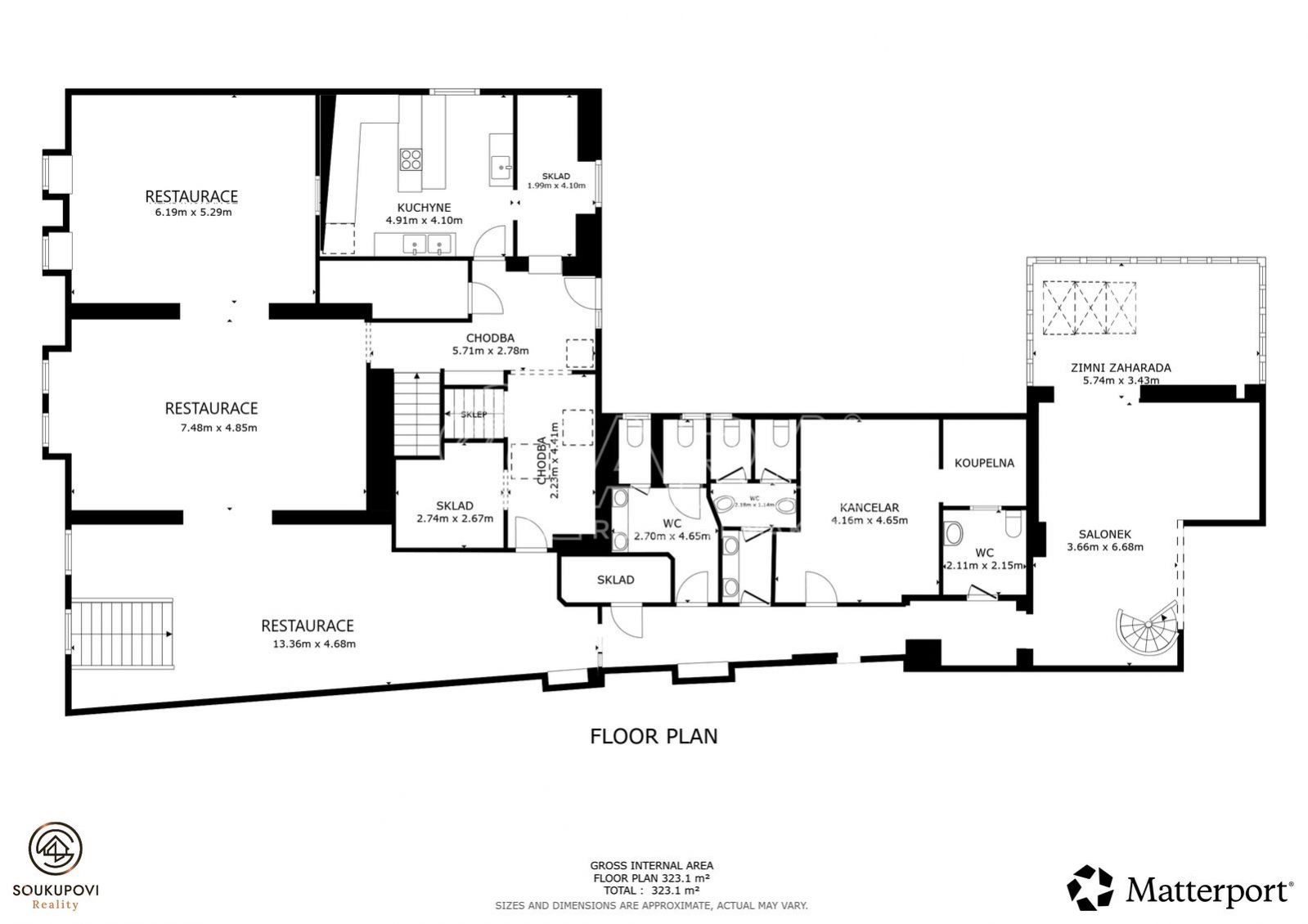
Celková užitná plocha: cca 377 m²
1.NP 290 m² + podkrovní byt 87 m² a další půdní prostor
K dispozici je dále sklep, garáž a zahrádka.
Objekt není památkově chráněn – umožňuje flexibilní úpravy dle investičního záměru.
Možné budoucí využití nemovitosti:
- Úprava na jiný typ komerčního provozu – kanceláře, ateliér, showroom, obchod.
- Rodinné bydlení či investice až se třemi samostatnými bytovými jednotkami v rodinném domě
- Více jednotek v bytovém domě
- Kombinace podnikání a soukromého bydlení
- Pokračování v provozu stylové restaurace s kavárnou
Proč je tato nemovitost zajímavá pro investora?
Kombinace komerční a rezidenční funkce
Možnost rozdělení na více jednotek
Historická budova bez památkové ochrany
Atraktivní poloha na náměstí
Hotové technické zázemí
Nízká konkurence podobných objektů v lokalitě
Co objekt nabízí v současné podobě?
- Přízemí - celková užitná plocha 1.NP se zázemím a zimní zahradou: 290 m²
- Podkroví - prostorná bytová jednotka 3+kk k finálnímu dokončení (užitná plocha 87 m²)
- Stylovou restauraci s kavárenským prostorem a salonkem
- Kapacitu až 80 míst, plně vybavenou kuchyni, technické zázemí
- Kompletní rekonstrukce objektu pro účely restaurace byla kolaudována v roce 2010.
- Členitý a prostorný sklep
- Součástí je také garáž a zahrádka
Nemovitost je bez nájemců a bez právního zatížení, což umožňuje okamžité zahájení úprav či změny využití dle investičního záměru.
Dům č. 64 je usazený v historickém jádru města, původ domu sahá do 1.poloviny 19.století – a každý jeho kout dýchá atmosférou literárních večerů, koncertů i výtvarných výstav. Z exteriéru se otevírá krásný výhled na náměstí, který láká k posezení nebo ranní kávě.
Parkování je možné přímo před objektem, na prostorném veřejném parkovišti a dále ve vlastní garáži a před ní.
V roce 2012 získal projekt rekonstrukce restaurace La Boema Mimořádnou cenu veřejnosti v soutěži "Stavba roku Plzeňského kraje". Majitel při rekonstrukci nešetřil a použil nejkvalitnější materiály a zakomponoval nádherné prvky jako např. vitráž nad vstupem, kamenné schody do objektu, krásná kachlová kamna, repliky špaletových oken a další.
Vytápění přízemí zajišťuje plynový kondenzační kotel a dominantní kachlová kamna, v salonku je navíc podlahové vytápění. V patře je druhý plynový kotel.
Dům je napojen na elektřinu, plyn, vodovod a obecní kanalizaci.
Lokalita:
Radnice jsou klidné město v Plzeňském kraji s přibližně 1 800 obyvateli a výbornou dostupností do Rokycan, Plzně i Prahy (dálnice D5). Veškerá občanská vybavenost je v místě. V Plzni jste za pouhých 25 minut.
Proč právě tento krásný měšťanský dům?
Protože je to prostor s příběhem, duší a výjimečnou atmosférou. Investice, která nabízí silný investiční potenciál do budoucna.
Zavolejte si o bližší informace nebo rovnou domluvte prohlídku.
Těším se na vás právě tady, v Radnicích.
Pomocí naší hypoteční kalkulačky si můžete udělat orientační představu o výši měsíčních splátek hypotéky. O vše ostatní se pak postaráme my ve spolupráci s našimi obchodními partnery.
59 516 Kč
* Odhadovaná měsíční splátka vychází z výše úvěru Kč s pevnou úrokovou sazbou % po celou dobu trvání úvěru.
Uživatel serveru RealityMIX.cz (dále jen „Server“) dostupného na internetové adrese (URL) https://www.realitymix.cz, který provozuje společnost DALTEN media s.r.o., se sídlem Na Harfě 916/9a, Praha 9, 190 00, IČO: 271 35 306 (dále jen „Správce“) jako provozovateli tohoto Serveru uděluje svůj výslovný souhlas v souladu s ustanovením § 5 zákona č. 101/2000 Sb. O ochraně osobních údajů a o změně některých zákonů, v platném znění (dále jen „zákon o ochraně osobních údajů“), se zpracováním uživatelem poskytnutých osobních údajů a dalších dat.
Uživatel poskytuje Správci osobní údaje v rozsahu: jméno, příjmení, e-mailová adresa, telefonický kontakt a další data, a to z důvodu projeveného zájmu o nemovitost, kde prostřednictvím služby Serveru Správce osloví Uživatel inzerenta uvedeného v detailu
nemovitosti - QARA s.r.o. (IČ 01740113) se zájmem o jeho služby. Tato společnost je součástí seskupení/sítě/franšízového modelu realitních kanceláří, jejich seznam můžete zobrazit kliknutím na tento odkaz.
QARA s.r.o. Ostrava (IČ 01740113) , QARA s.r.o. Brno (IČ 01740113) , QARA s.r.o. (IČ 01740113)
Uživatel tyto osobní údaje poskytuje dobrovolně a bere na vědomí, že součástí služeb Správce, které Správce Uživateli poskytuje, je vyhledání všech Uživateli vyhovujících (dle parametrů - cena, typ nemovitosti, lokalita atd.) nemovitostí. Správce za tímto účelem provozuje aplikace Hlídací pes a newsletter. Tyto služby je možné z každého zaslaného emailu odhlásit. Souhlas se zpracováním osobních údajů Uživatel poskytuje Správci na dobu neurčitou s tím, že svůj udělený souhlas může Uživatel kdykoliv na drese správce info@realitymix.cz odvolat. Správce garantuje Uživateli i další práva uvedené v ustanovení §11 a §21 zákoba č. 101/200 Sb. Ve znění pozdějších předpisů.
Více informací o zpracování údajů získáte zde (realitymix.cz/zasady-ochrany-osobnich-udaju)