Prodej skladových prostor nebo dílny 95 m², Řetůvka
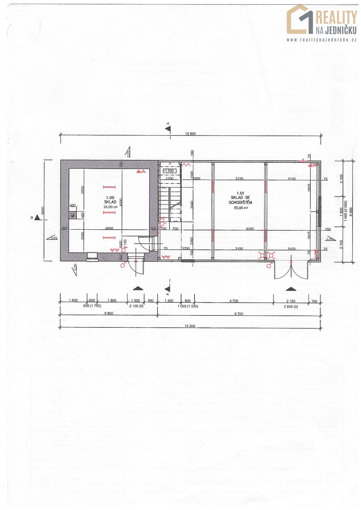
Nabízíme Vám skladový nebo dílenský prostor k prodeji v atraktivní lokalitě Řetůvka 132, Řetůvka. Nemovitost s užitnou plochou 95 m² se nachází v dobře udržované smíšené budově. Budova je z části vyzděna cihlou a kamenem a z větší části je tvořena PUR panely. Plášť tvoří PUR panely o síle 80 mm, střecha je tvořena PUR panely o síle 50 mm. Kovová konstrukce budovy je realizována sloupy 100mmx10mm a svářenými jeklovými profily o síle 80mmx80mm. Podlahu tvoří odizolovaný beton. Elektřina je zavedena nově. V podkroví byla zahájena realizace kanceláře, kam vedou masivní kovové schody a které chybí k dotažení pár kroků. Prostor je vytápěn masivním infrazářičem. Zadní zděná část přízemí objektu nabízí realizaci šatny ,sprchy a toalety, ke kterým je třeba dořešit přívod vody a odvod odpadních vod. Stav nemovitosti je velmi dobrý, což zajišťuje komfortní a bezpečné prostředí pro Vaše potřeby. Sklad nebo dílna disponuje dostatečným prostorem pro uskladnění Vašich výrobků nebo materiálů , drobnou výrobu a je ideální pro podnikatele hledající praktické a funkční řešení. Využijte této skvělé příležitosti a zajistěte si prostor pro své podnikání na skvělém místě. Nechte se okouzlit tímto skvělým skladovým a výrobním prostorem! Jakékoli další informace Vám rád sdělí a na prohlídky Vás zve realitní specialista Mgr. Radek Procházka
Cena:
2 197 000 Kč
Poznámka:
včetně právních služeb, úschovy a provize RK, včetně právního servisu
Pomocí naší hypoteční kalkulačky si můžete udělat orientační představu o výši měsíčních splátek hypotéky. O vše ostatní se pak postaráme my ve spolupráci s našimi obchodními partnery.
8 895 Kč
* Odhadovaná měsíční splátka vychází z výše úvěru Kč s pevnou úrokovou sazbou % po celou dobu trvání úvěru.
Uživatel serveru RealityMIX.cz (dále jen „Server“) dostupného na internetové adrese (URL) https://www.realitymix.cz, který provozuje společnost DALTEN media s.r.o., se sídlem Na Harfě 916/9a, Praha 9, 190 00, IČO: 271 35 306 (dále jen „Správce“) jako provozovateli tohoto Serveru uděluje svůj výslovný souhlas v souladu s ustanovením § 5 zákona č. 101/2000 Sb. O ochraně osobních údajů a o změně některých zákonů, v platném znění (dále jen „zákon o ochraně osobních údajů“), se zpracováním uživatelem poskytnutých osobních údajů a dalších dat.
Uživatel poskytuje Správci osobní údaje v rozsahu: jméno, příjmení, e-mailová adresa, telefonický kontakt a další data, a to z důvodu projeveného zájmu o nemovitost, kde prostřednictvím služby Serveru Správce osloví Uživatel inzerenta uvedeného v detailu
nemovitosti - Mgr. Radek Procházka (IČ 12981591) se zájmem o jeho služby.
Uživatel tyto osobní údaje poskytuje dobrovolně a bere na vědomí, že součástí služeb Správce, které Správce Uživateli poskytuje, je vyhledání všech Uživateli vyhovujících (dle parametrů - cena, typ nemovitosti, lokalita atd.) nemovitostí. Správce za tímto účelem provozuje aplikace Hlídací pes a newsletter. Tyto služby je možné z každého zaslaného emailu odhlásit. Souhlas se zpracováním osobních údajů Uživatel poskytuje Správci na dobu neurčitou s tím, že svůj udělený souhlas může Uživatel kdykoliv na drese správce info@realitymix.cz odvolat. Správce garantuje Uživateli i další práva uvedené v ustanovení §11 a §21 zákoba č. 101/200 Sb. Ve znění pozdějších předpisů.
Více informací o zpracování údajů získáte zde (realitymix.cz/zasady-ochrany-osobnich-udaju)