Prodej rodinného domu 253 m2, pozemek 1.339 m2, Rokytnice v Orlických horách
Nabízíme k prodeji rodinný dům v malebné lokalitě Rokytnice v Orlických horách.
Dům se nachází na okraji klidné obce, s krásným výhledem do přírody.
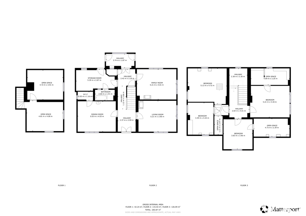
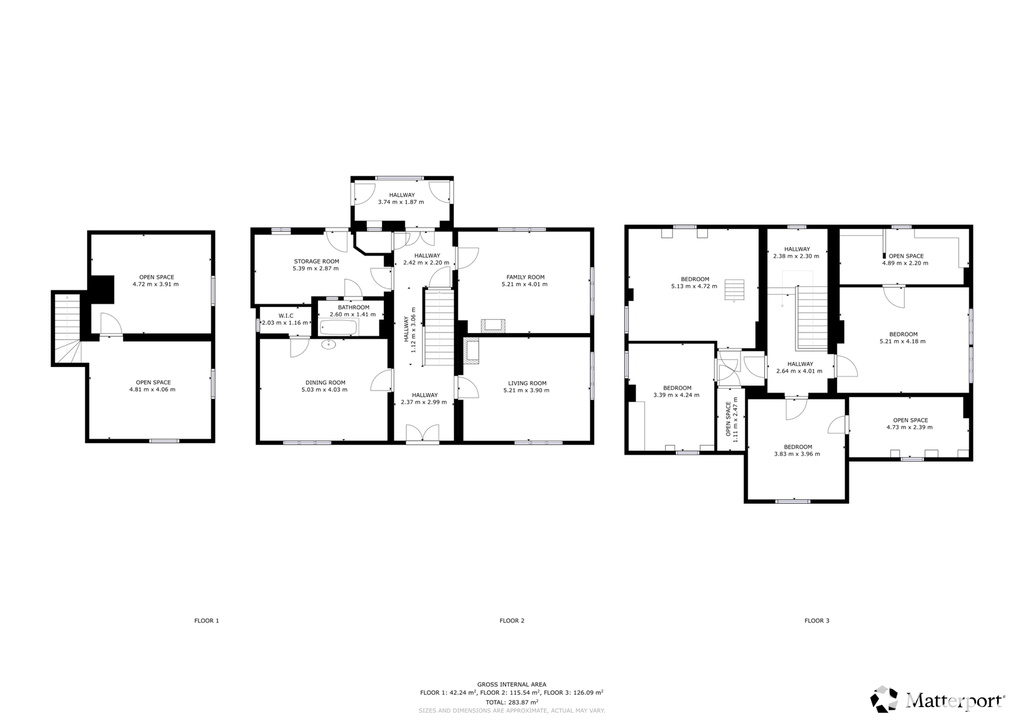
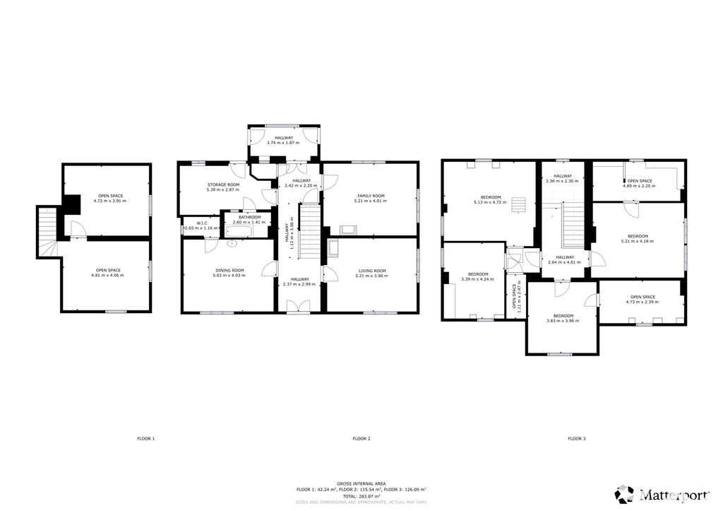
Je určený ke kompletní rekonstrukci, vytápění je lokální, užitná plocha domu je 253 m2 + půda, celková plocha pozemku je 1.339 m2.
Informace z katastru nemovitostí:
- parcela st. č. 275 - zastavěná plocha a nádvoří – má 579 m2
- parcela č. 768/3 – má 760 m2
= pozemky mají celkem 1.339 m2
Obec Rokytnice v Orlických horách má 2125 obyvatel, přímo v obci se nachází restaurace, kavárna, obchod s potravinami, fotbalové hřiště, autobusové zastávky a další občanská vybavenost.
Rokytnice v Orlických horách se nachází v dojezdové vzdálenosti od následujících obcí - Říčky v Orlických horách (6,5 km), Rychnov nad Kněžnou (17 km), Žamberk (13 km), Vamberk (18 km), Orlické Záhoří (18 km), Dobruška (35 km), Kostelec nad Orlicí (25 km), Letohrad (21 km), Týniště nad Orlicí (36 km), Hradec Králové (57 km), Polsko – Kladsko - Mezilesí (23 km).
V případě zájmu o prohlídku nás neváhejte kontaktovat, s financováním pomůžeme.
Pomocí naší hypoteční kalkulačky si můžete udělat orientační představu o výši měsíčních splátek hypotéky. O vše ostatní se pak postaráme my ve spolupráci s našimi obchodními partnery.
15 790 Kč
* Odhadovaná měsíční splátka vychází z výše úvěru Kč s pevnou úrokovou sazbou % po celou dobu trvání úvěru.
Uživatel serveru RealityMIX.cz (dále jen „Server“) dostupného na internetové adrese (URL) https://www.realitymix.cz, který provozuje společnost DALTEN media s.r.o., se sídlem Na Harfě 916/9a, Praha 9, 190 00, IČO: 271 35 306 (dále jen „Správce“) jako provozovateli tohoto Serveru uděluje svůj výslovný souhlas v souladu s ustanovením § 5 zákona č. 101/2000 Sb. O ochraně osobních údajů a o změně některých zákonů, v platném znění (dále jen „zákon o ochraně osobních údajů“), se zpracováním uživatelem poskytnutých osobních údajů a dalších dat.
Uživatel poskytuje Správci osobní údaje v rozsahu: jméno, příjmení, e-mailová adresa, telefonický kontakt a další data, a to z důvodu projeveného zájmu o nemovitost, kde prostřednictvím služby Serveru Správce osloví Uživatel inzerenta uvedeného v detailu
nemovitosti - eDO reality, s.r.o. (IČ 07268602) se zájmem o jeho služby.
Uživatel tyto osobní údaje poskytuje dobrovolně a bere na vědomí, že součástí služeb Správce, které Správce Uživateli poskytuje, je vyhledání všech Uživateli vyhovujících (dle parametrů - cena, typ nemovitosti, lokalita atd.) nemovitostí. Správce za tímto účelem provozuje aplikace Hlídací pes a newsletter. Tyto služby je možné z každého zaslaného emailu odhlásit. Souhlas se zpracováním osobních údajů Uživatel poskytuje Správci na dobu neurčitou s tím, že svůj udělený souhlas může Uživatel kdykoliv na drese správce info@realitymix.cz odvolat. Správce garantuje Uživateli i další práva uvedené v ustanovení §11 a §21 zákoba č. 101/200 Sb. Ve znění pozdějších předpisů.
Více informací o zpracování údajů získáte zde (realitymix.cz/zasady-ochrany-osobnich-udaju)