Nabízíme k prodeji dům v obci Rotava (ul. Hornická), určený ke kompletní rekonstrukci, se zpracovanou studií na vybudování apartmánového domu o 6 jednotkách.
Dům se nachází v lokalitě bývalé hornické zástavby. V sousedství jsou obydlené domy s trvalými majiteli, nemovitost je tak vhodná nejen pro investiční záměr, ale i pro vlastní bydlení či kombinaci obojího.
Dům je připraven k rekonstrukci:
- vyklizený
- staticky zajištěný
- nová střešní konstrukce
K domu náleží oplocená zahrada, která je v současnosti užívána na základě nájemní smlouvy s městem.
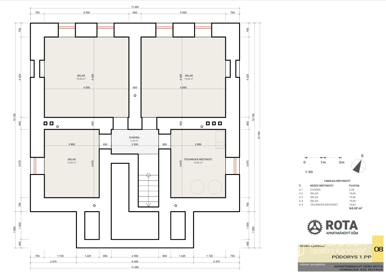
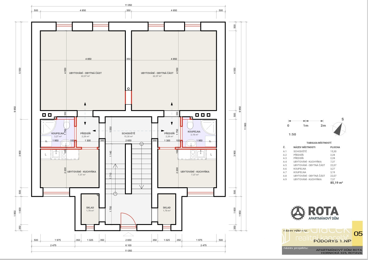
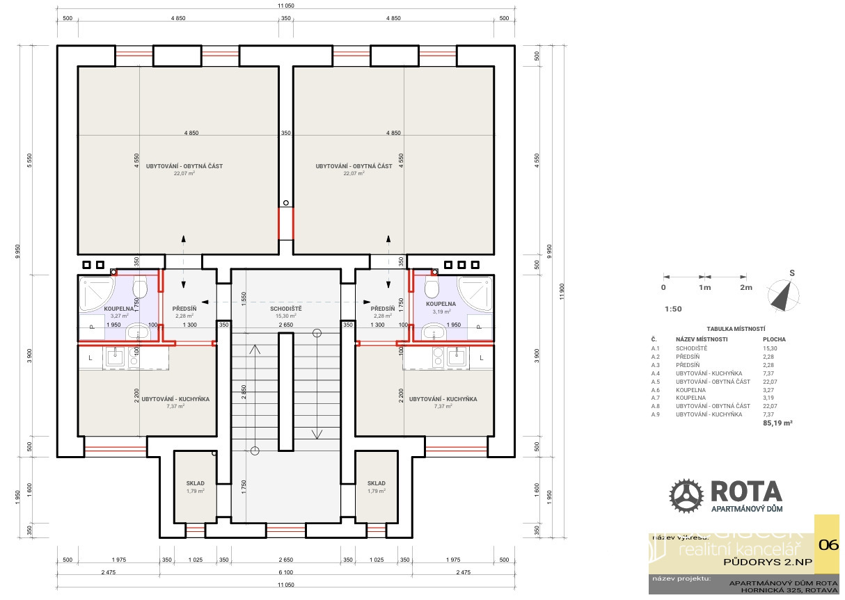
Součástí nabídky je projektová studie apartmánového domu:
- 6 samostatných apartmánů (2 na každém podlaží)
- kapacita cca 24 lůžek
- užitná plocha cca 326 m²
Lokalita Krušných hor nabízí celoroční využití lyžařský areál Bublava , běžkařské trasy Přebuz, dojezd do Kraslic a Německa (Klingenthal) vše cca 10 min.
Prohlídky jsou možné po domluvě. Podklady a studie k dispozici na vyžádání.
Pomocí naší hypoteční kalkulačky si můžete udělat orientační představu o výši měsíčních splátek hypotéky. O vše ostatní se pak postaráme my ve spolupráci s našimi obchodními partnery.
3 037 Kč
* Odhadovaná měsíční splátka vychází z výše úvěru Kč s pevnou úrokovou sazbou % po celou dobu trvání úvěru.
Uživatel serveru RealityMIX.cz (dále jen „Server“) dostupného na internetové adrese (URL) https://www.realitymix.cz, který provozuje společnost DALTEN media s.r.o., se sídlem Na Harfě 916/9a, Praha 9, 190 00, IČO: 271 35 306 (dále jen „Správce“) jako provozovateli tohoto Serveru uděluje svůj výslovný souhlas v souladu s ustanovením § 5 zákona č. 101/2000 Sb. O ochraně osobních údajů a o změně některých zákonů, v platném znění (dále jen „zákon o ochraně osobních údajů“), se zpracováním uživatelem poskytnutých osobních údajů a dalších dat.
Uživatel poskytuje Správci osobní údaje v rozsahu: jméno, příjmení, e-mailová adresa, telefonický kontakt a další data, a to z důvodu projeveného zájmu o nemovitost, kde prostřednictvím služby Serveru Správce osloví Uživatel inzerenta uvedeného v detailu
nemovitosti - Realitní kancelář Sedláček s.r.o. (IČ 29163803) se zájmem o jeho služby.
Uživatel tyto osobní údaje poskytuje dobrovolně a bere na vědomí, že součástí služeb Správce, které Správce Uživateli poskytuje, je vyhledání všech Uživateli vyhovujících (dle parametrů - cena, typ nemovitosti, lokalita atd.) nemovitostí. Správce za tímto účelem provozuje aplikace Hlídací pes a newsletter. Tyto služby je možné z každého zaslaného emailu odhlásit. Souhlas se zpracováním osobních údajů Uživatel poskytuje Správci na dobu neurčitou s tím, že svůj udělený souhlas může Uživatel kdykoliv na drese správce info@realitymix.cz odvolat. Správce garantuje Uživateli i další práva uvedené v ustanovení §11 a §21 zákoba č. 101/200 Sb. Ve znění pozdějších předpisů.
Více informací o zpracování údajů získáte zde (realitymix.cz/zasady-ochrany-osobnich-udaju)