Moderní rodinný dům 4+kk typ Stodola s pozemkem 594 m2- Zlaté Roudné
Rezidence „Zlaté Roudné“ – pokračuje výstavba v roce 2026/27. Prodej rodinných domů. K prodeji přízemní rodinný dům "na klíč" v ulici Žitná. V nabídce volný dům č. 58 na krásném rohovém pozemku, v zadní klidné části výstavby. Samostatný prostorný dům 4+kk typ "Stodola" s pozemkem o výměře 594 m2/p. č. 480/40 s moderním zpracováním a možností využití podkroví - pracovna, šatna, pokoj pro hosty.
Zákazník nyní může sám volit konečnou podobu svého domu výběrem dle vlastního přání (podlahových krytin, vnitřních dveří, obkladů, dlažeb a sanity koupelny), standardy předložíme zájemci.
Vybavenost obce Roudné: MHD, mateřská škola, hřiště, restaurace, cca 300m nově otevřen retailový park – Billa, Teta drogerie, lékárna, Asian food, pumpa 24/7knihovna, kulturní sál, víceúčelový sál, požární zbrojnice, sběrný dvůr.
Navazujeme na již několikátý úspěšně realizovaný a velmi žádaný projekt investora, který je jednička ve svém oboru.
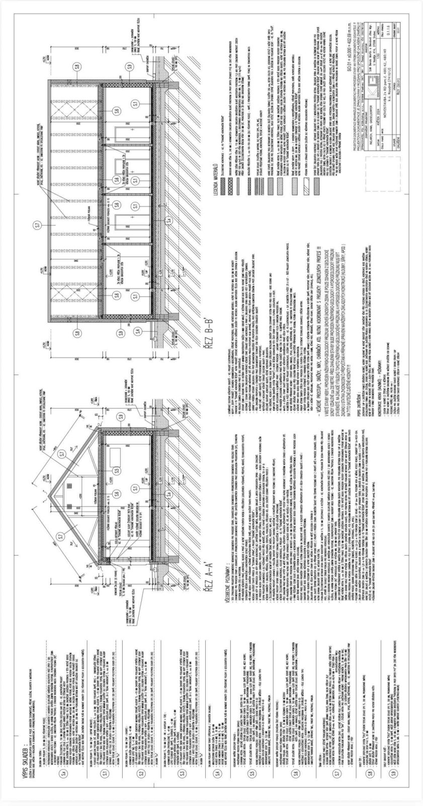
Obytná plocha domu je 90,50m2. Zastavěná plocha domu 112,50m2 + parkovací stání pro 2 auta cca 36m2+ terasa o výměře 12m2. Pozemek je dostatečně velký a je možnost zvětšení domu, změny dispozic.
Dispozice: samostatné WC(2,2m2), tech.místnost(2,4m2), koupelna s WC(7,95m2), obývací pokoj s kuch.koutem (29,45m2), chodba (12,24m2), 3 ložnice (12m2, 10m2, 10m2), šatna (3,8m2)+úložný prostor na půdě (možnost podkroví).
Vybavenost domu: Zpevněná plocha – terasa ze zámkové dlažby Best Beleza, vchod a parking ze zámkové dlažby Best Klasik, plot – podhrabový obrubník + 3D drátěné poplastované pletivo (180–200cm), systémová branka cca 1m + 3m brána dvoukřídlá, příprava na venkovní žaluzie (kastlíky), příprava na krbová kamna a klimatizaci, konstrukce Porotherm 240–300 obvod, vnitřní 200, příčky 150, zateplovací systém 180/200mm polystyren, plastová okna a dveře – izolační trojsklo, barva bílá, veškeré vnitřní rozvody – elektřina, plyn, voda, topení, plynový kotel BAXI se zásobníkem vody, v celém domě podlahové vytápění, podlahy vinyl a dlažba, dveře s obložkami, koupelna se sprchovým koutem, vanou, umyvadlem a toaletou, příprava na fotovoltaiku.
V ceně není: kuch.linka, svítidla, žaluzie, klimatizace, komín, nábytek, pergola, finální úprava zahrady.
Pozemky jsou přístupné po obecní komunikaci, výstavba domů probíhá na zasíťovaném a zkolaudovaném ZTV–plyn, elektřina, vodovod, kanalizace, Starnet – optický kabel.
Velký zřetel je kladen na energetickou úspornost domu, aby jeho budoucí majitel měl co nejnižší náklady na provoz domu (PENB–B).
Hypoteční servis zdarma (naši hypoteční poradci řeší úvěry u všech bankovních domů za nejlepších podmínek na trhu). Navazujeme na již několikátý úspěšně realizovaný a velmi žádaný projekt investora, který je jednička ve svém oboru.
Již 15 let bydlíme v domě, který stavěl tento developer, tak můžeme z vlastní zkušenosti vřele doporučit. Těšíme se na vás při prohlídce v Roudném. Buďte další spokojený soused.
Cena:
Rezervováno
Číslo zakázky:
REALITYMIX-CB251122
Podrobné informace
Poloha objektu:samostatný
Druh objektu:cihlová
Stav objektu:novostavba
Počet podlaží objektu:1
Typ domu:přízemní
Zastavěná plocha:139 m²
Plocha parcely:594 m²
Zahrada:455 m²
Užitná plocha:91 m²
Terasa:12 m²
Umístění objektu:okraj obce
Komunikace:asfaltová
Voda:Voda - dálkový vodovod
Plyn:Plynovod
Topení:Ústřední - plynové
Odpad:Kanalizace
Energetická náročnost budovy:B - Velmi úsporná
Energetický ukazatel podle vyhlášky:č. 264/2020 Sb.
Uživatel serveru RealityMIX.cz (dále jen „Server“) dostupného na internetové adrese (URL) https://www.realitymix.cz, který provozuje společnost DALTEN media s.r.o., se sídlem Na Harfě 916/9a, Praha 9, 190 00, IČO: 271 35 306 (dále jen „Správce“) jako provozovateli tohoto Serveru uděluje svůj výslovný souhlas v souladu s ustanovením § 5 zákona č. 101/2000 Sb. O ochraně osobních údajů a o změně některých zákonů, v platném znění (dále jen „zákon o ochraně osobních údajů“), se zpracováním uživatelem poskytnutých osobních údajů a dalších dat.
Uživatel poskytuje Správci osobní údaje v rozsahu: jméno, příjmení, e-mailová adresa, telefonický kontakt a další data, a to z důvodu projeveného zájmu o nemovitost, kde prostřednictvím služby Serveru Správce osloví Uživatel inzerenta uvedeného v detailu
nemovitosti - SORENT-CB s.r.o. (IČ 28104102) se zájmem o jeho služby.
Uživatel tyto osobní údaje poskytuje dobrovolně a bere na vědomí, že součástí služeb Správce, které Správce Uživateli poskytuje, je vyhledání všech Uživateli vyhovujících (dle parametrů - cena, typ nemovitosti, lokalita atd.) nemovitostí. Správce za tímto účelem provozuje aplikace Hlídací pes a newsletter. Tyto služby je možné z každého zaslaného emailu odhlásit. Souhlas se zpracováním osobních údajů Uživatel poskytuje Správci na dobu neurčitou s tím, že svůj udělený souhlas může Uživatel kdykoliv na drese správce info@realitymix.cz odvolat. Správce garantuje Uživateli i další práva uvedené v ustanovení §11 a §21 zákoba č. 101/200 Sb. Ve znění pozdějších předpisů.
Více informací o zpracování údajů získáte zde (realitymix.cz/zasady-ochrany-osobnich-udaju)