Prodej řadového RD celkem 209 m2, pozemek 543 m2, Roudnice nad Labem před rekonstrukcí
Exkluzivně nabízíme prodej vícegeneračního rodinného domu v Roudnici nad Labem, Špindlerova třída. Je ideální pro rodinné či vícegenerační bydlení nebo bydlení spojené s podnikáním. Dům je před kompletní rekonstrukcí, můžete si ho tedy upravit přesně dle Vašich představ!
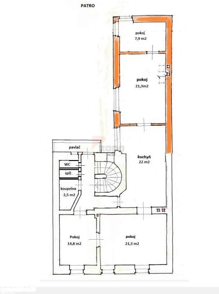
Dispozice:
- 2 samostatné oddělené bytové jednotky 4+kk (přízemí 74,5 m, patro 109 m)
- Dvůr 67 m, zahrada 342 m
- Velký půdní prostor vhodný k vestavbě
- Malý sklep pod schody
- Chodba/vjezd 26 m vhodný pro parkování 1 vozidla
Vybavení:
- Plynové nebo elektrické vytápění
- Městská voda a kanalizace
- Samostatné měření plynu a elektřiny pro každou jednotku
Zahrada
- ve vnitrobloku - prostorná, tichá a slunná
- s ovocnými a okrasnými stromy
Lokalita:
- Klidná lokalita poblíž centra, naproti VOŠ a SOŠ
- 3x základní škola v dochozí vzdálenosti
- Výborná občanská vybavenost
- Rychlé spojení do Prahy: cca 35 min. po D8, 50 min vlakem
- v roce 2031v plánu terminál vysokorychlostní železnice VTR- jízdní doma mezi Roudnicí a Prahou se zkrátí na 19 minut
Průkaz energetické náročnosti se právě zpracovává, uvádíme třídu G.
Dům je ihned volný, prohlídky jsou možné po telefonické dohodě. Uvedená cena je včetně provize, daní a právních služeb. Nemovitost lze financovat hypotékou, s vyřízením Vám rádi pomůžeme.
Pomocí naší hypoteční kalkulačky si můžete udělat orientační představu o výši měsíčních splátek hypotéky. O vše ostatní se pak postaráme my ve spolupráci s našimi obchodními partnery.
26 317 Kč
* Odhadovaná měsíční splátka vychází z výše úvěru Kč s pevnou úrokovou sazbou % po celou dobu trvání úvěru.
Uživatel serveru RealityMIX.cz (dále jen „Server“) dostupného na internetové adrese (URL) https://www.realitymix.cz, který provozuje společnost DALTEN media s.r.o., se sídlem Na Harfě 916/9a, Praha 9, 190 00, IČO: 271 35 306 (dále jen „Správce“) jako provozovateli tohoto Serveru uděluje svůj výslovný souhlas v souladu s ustanovením § 5 zákona č. 101/2000 Sb. O ochraně osobních údajů a o změně některých zákonů, v platném znění (dále jen „zákon o ochraně osobních údajů“), se zpracováním uživatelem poskytnutých osobních údajů a dalších dat.
Uživatel poskytuje Správci osobní údaje v rozsahu: jméno, příjmení, e-mailová adresa, telefonický kontakt a další data, a to z důvodu projeveného zájmu o nemovitost, kde prostřednictvím služby Serveru Správce osloví Uživatel inzerenta uvedeného v detailu
nemovitosti - ZAPA reality, s.r.o. (IČ 26757656) se zájmem o jeho služby.
Uživatel tyto osobní údaje poskytuje dobrovolně a bere na vědomí, že součástí služeb Správce, které Správce Uživateli poskytuje, je vyhledání všech Uživateli vyhovujících (dle parametrů - cena, typ nemovitosti, lokalita atd.) nemovitostí. Správce za tímto účelem provozuje aplikace Hlídací pes a newsletter. Tyto služby je možné z každého zaslaného emailu odhlásit. Souhlas se zpracováním osobních údajů Uživatel poskytuje Správci na dobu neurčitou s tím, že svůj udělený souhlas může Uživatel kdykoliv na drese správce info@realitymix.cz odvolat. Správce garantuje Uživateli i další práva uvedené v ustanovení §11 a §21 zákoba č. 101/200 Sb. Ve znění pozdějších předpisů.
Více informací o zpracování údajů získáte zde (realitymix.cz/zasady-ochrany-osobnich-udaju)