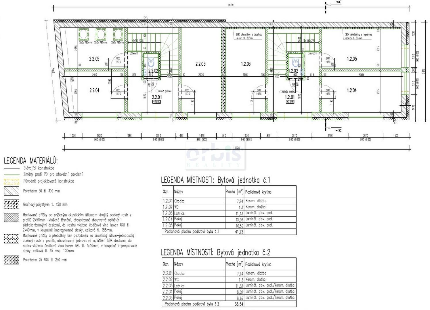
Nabízíme k prodeji nový, mezonetový byt v klidné části obce Rynholec, v rodinném domě se dvěma byty. Jedná se o byt o velikosti 4+kk, kdy čistě obytná plocha bytu činí 89,8 m2 + 13 m2 terasa a v ceně také parkovací stání pro dva automobily na vlastním pozemku u domu. V přízemí bytu se nachází vstupní chodba, koupelna se sprchovým koutem, rohovou vanou a WC, dále pak Obývací pokoj s kuchyňským koutem. V patře se potom nachází tři pokoje a druhá toaleta.
Vytápění v celém bytě podlahové teplovodní z vlastního plynového kotle přes který je řešen i ohřev vody. V aktuální fázi možný výběr standardů které jsou v ceně - obklady, dlažby, podlahy, obložkové dveře.
K prodeji je v domě e také druhý nový byt 4+kk/T, stání, o výměře 83,8 + 22,5 m2 terasa, za cenu 6.990.000,- Kč.
Byty k nastěhování od 1.9.2026. Financování možné hypotékou. Rádi vyřídíme. Bydlení ve velmi klidné lokalitě u rybníka s dobrou dostupností na Prahu.
Pomocí naší hypoteční kalkulačky si můžete udělat orientační představu o výši měsíčních splátek hypotéky. O vše ostatní se pak postaráme my ve spolupráci s našimi obchodními partnery.
29 515 Kč
* Odhadovaná měsíční splátka vychází z výše úvěru Kč s pevnou úrokovou sazbou % po celou dobu trvání úvěru.
Prodáváte nemovitost a potřebujete zjistit její reálnou hodnotu?
Uživatel serveru RealityMIX.cz (dále jen „Server“) dostupného na internetové adrese (URL) https://www.realitymix.cz, který provozuje společnost DALTEN media s.r.o., se sídlem Na Harfě 916/9a, Praha 9, 190 00, IČO: 271 35 306 (dále jen „Správce“) jako provozovateli tohoto Serveru uděluje svůj výslovný souhlas v souladu s ustanovením § 5 zákona č. 101/2000 Sb. O ochraně osobních údajů a o změně některých zákonů, v platném znění (dále jen „zákon o ochraně osobních údajů“), se zpracováním uživatelem poskytnutých osobních údajů a dalších dat.
Uživatel poskytuje Správci osobní údaje v rozsahu: jméno, příjmení, e-mailová adresa, telefonický kontakt a další data, a to z důvodu projeveného zájmu o nemovitost, kde prostřednictvím služby Serveru Správce osloví Uživatel inzerenta uvedeného v detailu
nemovitosti - Orbisreality (IČ 09380850) se zájmem o jeho služby.
Uživatel tyto osobní údaje poskytuje dobrovolně a bere na vědomí, že součástí služeb Správce, které Správce Uživateli poskytuje, je vyhledání všech Uživateli vyhovujících (dle parametrů - cena, typ nemovitosti, lokalita atd.) nemovitostí. Správce za tímto účelem provozuje aplikace Hlídací pes a newsletter. Tyto služby je možné z každého zaslaného emailu odhlásit. Souhlas se zpracováním osobních údajů Uživatel poskytuje Správci na dobu neurčitou s tím, že svůj udělený souhlas může Uživatel kdykoliv na drese správce info@realitymix.cz odvolat. Správce garantuje Uživateli i další práva uvedené v ustanovení §11 a §21 zákoba č. 101/200 Sb. Ve znění pozdějších předpisů.
Více informací o zpracování údajů získáte zde (realitymix.cz/zasady-ochrany-osobnich-udaju)