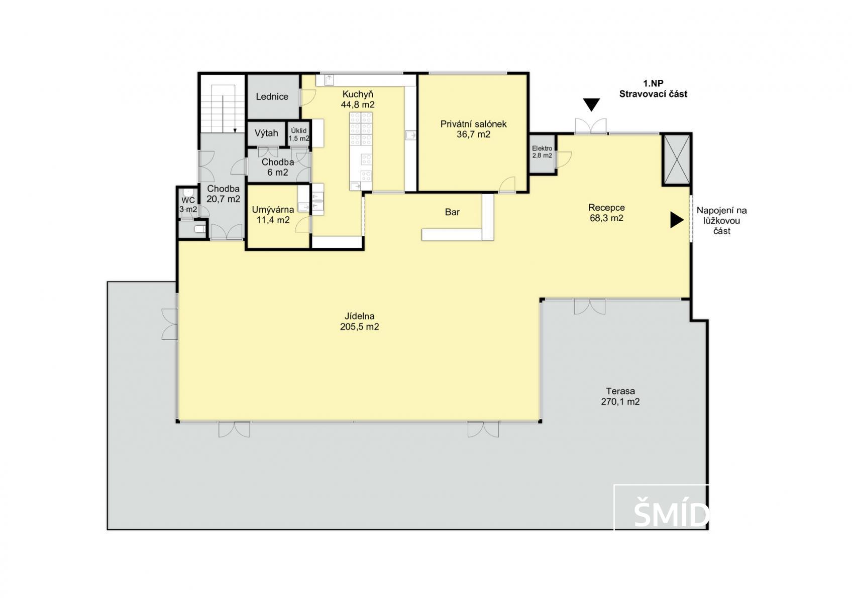
dovoluji si Vám nabídnout ke koupi jedinečnou nemovitost - ubytovací zařízení Hotel Delta Seč. Jak již název napovídá, hotel se nachází poblíž Sečské přehrady a to pouhých 150 metrů od břehu. Nemovitost prošla kompletní rekonstrukcí a modernizací. V současné době disponuje 39 pokoji s vlastními lodžiemi, dvěma apartmány, restaurací s venkovní terasou, vybavenou industriální kuchyní, zasedacími místnostmi, společenským sálem, kompletní pracovním i kancelářským zázemím pro zaměstnance a parkovištěm pro hosty.
Kvůli své lokalitě je Hotel Delta skvělým lákadlem pro zákazníky všech věkových skupin, kteří hledají ubytovaní poblíž malebné Sečské přehrady. Díky svým konferenčním prostorům je hotel také idealním místem pro firemní klientelu.
Pro sjednání prohlídky či více informací mě neváhejte kontaktovat.
Uživatel serveru RealityMIX.cz (dále jen „Server“) dostupného na internetové adrese (URL) https://www.realitymix.cz, který provozuje společnost DALTEN media s.r.o., se sídlem Na Harfě 916/9a, Praha 9, 190 00, IČO: 271 35 306 (dále jen „Správce“) jako provozovateli tohoto Serveru uděluje svůj výslovný souhlas v souladu s ustanovením § 5 zákona č. 101/2000 Sb. O ochraně osobních údajů a o změně některých zákonů, v platném znění (dále jen „zákon o ochraně osobních údajů“), se zpracováním uživatelem poskytnutých osobních údajů a dalších dat.
Uživatel poskytuje Správci osobní údaje v rozsahu: jméno, příjmení, e-mailová adresa, telefonický kontakt a další data, a to z důvodu projeveného zájmu o nemovitost, kde prostřednictvím služby Serveru Správce osloví Uživatel inzerenta uvedeného v detailu
nemovitosti - ŠMÍD & PARTNERS (IČ 24122955) se zájmem o jeho služby.
Uživatel tyto osobní údaje poskytuje dobrovolně a bere na vědomí, že součástí služeb Správce, které Správce Uživateli poskytuje, je vyhledání všech Uživateli vyhovujících (dle parametrů - cena, typ nemovitosti, lokalita atd.) nemovitostí. Správce za tímto účelem provozuje aplikace Hlídací pes a newsletter. Tyto služby je možné z každého zaslaného emailu odhlásit. Souhlas se zpracováním osobních údajů Uživatel poskytuje Správci na dobu neurčitou s tím, že svůj udělený souhlas může Uživatel kdykoliv na drese správce info@realitymix.cz odvolat. Správce garantuje Uživateli i další práva uvedené v ustanovení §11 a §21 zákoba č. 101/200 Sb. Ve znění pozdějších předpisů.
Více informací o zpracování údajů získáte zde (realitymix.cz/zasady-ochrany-osobnich-udaju)