Prodej poctivého dřevěného srubu 2+1 u Vlhlavského rybníka, obec Sedlec
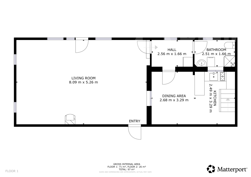
Hledáte místo, kde můžete zpomalit a užívat si kontakt s přírodou, aniž bys te se museli vzdát komfortu? Nabízíme k prodeji poctivý dřevěný srub s evidenčním číslem, situovaný v těsné blízkosti Vlhlavského rybníka v obci Sedlec. Nemovitost o dispozici 2+1 a užitná plocha 110 m2 je díky svému vybavení vhodná jak k rekreaci, tak k celoročnímu užívání.
Interiér srubu tvoří útulný obývací pokoj, ložnice a kuchyňský kout. Koupelna je vybavena sprchovým koutem, toaletou a bojlerem pro ohřev vody. Pro tepelný komfort v chladnějších měsících jsou v celém objektu osazena plastová okna. Vytápění spolehlivě zajišťují kamna na dřevo, která srubu dodávají tu správnou atmosféru, doplněná o elektrické přímotopy. Srub je ve velmi dobrém technickém stavu, zastřešen sedlovou střechou s pálenou taškou a připraven k okamžitému užívání. Technické napojení zahrnuje obecní vodovod, elektřinu a vlastní čističku odpadních vod.
Celková výměra pozemku činí 656 m2, z čehož zahrada o ploše 577 m2 nabízí ideální prostor k relaxaci, zahradničení či posezení u vody. Vlhlavský rybník je vyhlášenou lokalitou pro milovníky klidu a přírody, přičemž lokalita nabízí skvělou dostupnost do okolních měst:
Hluboká nad Vltavou: 15 minut (14 km)
České Budějovice: 24 minut (20 km)
Prachatice: 27 minut (30 km)
Týn nad Vltavou: 27 minut (27 km)
Písek: 26 minut (34 km)
Jmenuji se Vítězslav Novák a jako realitní makléř Bidli vás touto nemovitostí osobně provedu. Samozřejmostí je u nás kompletní servis včetně zajištění financování, právního servisu a individuálního přístupu po celou dobu obchodu. Pokud hledáte výjimečné místo u vody s charakterem a poctivým zázemím, rád vám tento srub představím osobně.
Pomocí naší hypoteční kalkulačky si můžete udělat orientační představu o výši měsíčních splátek hypotéky. O vše ostatní se pak postaráme my ve spolupráci s našimi obchodními partnery.
18 017 Kč
* Odhadovaná měsíční splátka vychází z výše úvěru Kč s pevnou úrokovou sazbou % po celou dobu trvání úvěru.
Uživatel serveru RealityMIX.cz (dále jen „Server“) dostupného na internetové adrese (URL) https://www.realitymix.cz, který provozuje společnost DALTEN media s.r.o., se sídlem Na Harfě 916/9a, Praha 9, 190 00, IČO: 271 35 306 (dále jen „Správce“) jako provozovateli tohoto Serveru uděluje svůj výslovný souhlas v souladu s ustanovením § 5 zákona č. 101/2000 Sb. O ochraně osobních údajů a o změně některých zákonů, v platném znění (dále jen „zákon o ochraně osobních údajů“), se zpracováním uživatelem poskytnutých osobních údajů a dalších dat.
Uživatel poskytuje Správci osobní údaje v rozsahu: jméno, příjmení, e-mailová adresa, telefonický kontakt a další data, a to z důvodu projeveného zájmu o nemovitost, kde prostřednictvím služby Serveru Správce osloví Uživatel inzerenta uvedeného v detailu
nemovitosti - Bidli reality, a.s. (IČ 06790763) se zájmem o jeho služby. Tato společnost je součástí seskupení/sítě/franšízového modelu realitních kanceláří, jejich seznam můžete zobrazit kliknutím na tento odkaz.
Hypocentrum modré pyramidy - Praha (IČ ) , Hypocentrum modré pyramidy - Brno (IČ ) , Hypocentrum Modré pyramidy - Hradec Králové (IČ ) , Hypocentrum Modré pyramidy - České Budějovice (IČ ) , Hypocentrum Modré pyramidy - Pardubice (IČ ) , Hypocentrum Modré pyramidy - Plzeň (IČ ) , Hypocentrum Modré pyramidy - Ústí nad Labem (IČ ) , Hypocentrum Modré pyramidy - Ostrava (IČ ) , Hypocentrum Modré pyramidy - Olomouc (IČ ) , Bidli reality, a.s. (IČ 06790763)
Uživatel tyto osobní údaje poskytuje dobrovolně a bere na vědomí, že součástí služeb Správce, které Správce Uživateli poskytuje, je vyhledání všech Uživateli vyhovujících (dle parametrů - cena, typ nemovitosti, lokalita atd.) nemovitostí. Správce za tímto účelem provozuje aplikace Hlídací pes a newsletter. Tyto služby je možné z každého zaslaného emailu odhlásit. Souhlas se zpracováním osobních údajů Uživatel poskytuje Správci na dobu neurčitou s tím, že svůj udělený souhlas může Uživatel kdykoliv na drese správce info@realitymix.cz odvolat. Správce garantuje Uživateli i další práva uvedené v ustanovení §11 a §21 zákoba č. 101/200 Sb. Ve znění pozdějších předpisů.
Více informací o zpracování údajů získáte zde (realitymix.cz/zasady-ochrany-osobnich-udaju)