Prodej vily s prostornou udržovanou zahradou Senohraby
Nabízím k prodeji samostatně stojící vilu z roku 1996, zasazenou do atraktivního pozemku v Senohrabech s otevřeným výhledem do okolní krajiny a lesů. Celková výměra pozemků činí 1 729 m².
Už samotné umístění domu dává této nabídce jiný rozměr. Nejde o běžný pozemek v nové zástavbě, ale o místo se vzrostlou zahradou, přirozenou strukturou a odstupem od okolí, který dnes vzniká jen velmi obtížně.
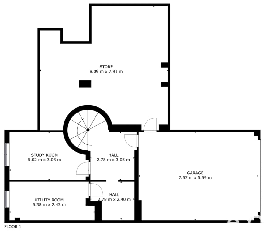
Dům je plně podsklepený a nabízí celkovou užitnou plochu cca 467 m². Kromě hlavního obytného prostoru disponuje také samostatnou jednotkou s vlastním vstupem a sociálním zázemím. Dominantou je centrální obytný prostor s otevřeným stropem a galerií, na kterou navazují dvě ložnice, každá s vlastní koupelnou.
K dispozici je prostorná terasa s krbem, zimní zahrada a rozsáhlé technické zázemí v podzemním podlaží včetně dvojgaráže.
Technický stav domu odpovídá době jeho výstavby a stáří objektu. Právě zde se otevírá prostor pro zásadní rozhodnutí budoucího vlastníka – zda na stávající stav navázat a využít jeho konstrukční základ, nebo přistoupit k jinému řešení a využít plný potenciál pozemku.
Tato volba s sebou nese investici. Zároveň ale dává smysl v kontextu místa, které nabízí kombinaci výhledu, velikosti, vzrostlé zeleně a soukromí – hodnot, které se v této lokalitě objevují jen zřídka.
Samostatná jednotka s vlastním vstupem:
Vstupní chodba 2,3 m2.
Koupelna s WC 3,4 m2.
Hlavní obytná místnost s kuchyňským koutem 31,7 m2.
Pracovna 5,5 m2.
2.NP:
Galerie 30,5 m2.
Ložnice se vstupem na terasu 12,2 m2.
Terasa 8,6 m2.
Koupelna s WC 5 m2.
Ložnice 15,7 m2.
Koupelna s WC 10,3 m2.
Stav a vybavení:
Stavba zděná, krov dřevěný, krytina taška pálená.
Okna, francouzská okna, vstupní dveře plastové s izolačním dvojsklem.
Podlaha – keramická dlažba, v pokojích betonová stěrka + koberec.
Interiérové dveře dřevěné, obložkové zárubně.
Vytápění a ohřev TUV – plynový kotel s externím zásobníkem.
V obývacím pokoji krb s otevřeným ohništěm.
Kuchyňská linka standard, zabudovaná elektrická plotýnková varná deska, elektrická trouba, lednice s mrazákem, digestoř.
Koupelna z ložnice s vanou i sprchovým koutem, dvěma umývadly, WC. Koupelna z druhého pokoje, stejně jako v samostatné jednotce, se sprchovým koutem, umývadlem a WC.
Obytná galerie v patře s velkoformátovým oknem umožňují, v případě potřeby, přepažení pro vznik dalšího samostatného pokoje.
Samostatná garsonka má již odmontovánu kuchyňskou linku, vytápění a ohřev TUV zajišťuje centrální kotel.
Rozvody topení v mědi, voda a dopady v plastu. Elektroinstalace 230/400 V rovněž v mědi. Vodovod z řadu, odpad sveden do jímky s přepadem do kanalizace.
Pomocí naší hypoteční kalkulačky si můžete udělat orientační představu o výši měsíčních splátek hypotéky. O vše ostatní se pak postaráme my ve spolupráci s našimi obchodními partnery.
60 650 Kč
* Odhadovaná měsíční splátka vychází z výše úvěru Kč s pevnou úrokovou sazbou % po celou dobu trvání úvěru.
Uživatel serveru RealityMIX.cz (dále jen „Server“) dostupného na internetové adrese (URL) https://www.realitymix.cz, který provozuje společnost DALTEN media s.r.o., se sídlem Na Harfě 916/9a, Praha 9, 190 00, IČO: 271 35 306 (dále jen „Správce“) jako provozovateli tohoto Serveru uděluje svůj výslovný souhlas v souladu s ustanovením § 5 zákona č. 101/2000 Sb. O ochraně osobních údajů a o změně některých zákonů, v platném znění (dále jen „zákon o ochraně osobních údajů“), se zpracováním uživatelem poskytnutých osobních údajů a dalších dat.
Uživatel poskytuje Správci osobní údaje v rozsahu: jméno, příjmení, e-mailová adresa, telefonický kontakt a další data, a to z důvodu projeveného zájmu o nemovitost, kde prostřednictvím služby Serveru Správce osloví Uživatel inzerenta uvedeného v detailu
nemovitosti - eDO reality, s.r.o. (IČ 07268602) se zájmem o jeho služby.
Uživatel tyto osobní údaje poskytuje dobrovolně a bere na vědomí, že součástí služeb Správce, které Správce Uživateli poskytuje, je vyhledání všech Uživateli vyhovujících (dle parametrů - cena, typ nemovitosti, lokalita atd.) nemovitostí. Správce za tímto účelem provozuje aplikace Hlídací pes a newsletter. Tyto služby je možné z každého zaslaného emailu odhlásit. Souhlas se zpracováním osobních údajů Uživatel poskytuje Správci na dobu neurčitou s tím, že svůj udělený souhlas může Uživatel kdykoliv na drese správce info@realitymix.cz odvolat. Správce garantuje Uživateli i další práva uvedené v ustanovení §11 a §21 zákoba č. 101/200 Sb. Ve znění pozdějších předpisů.
Více informací o zpracování údajů získáte zde (realitymix.cz/zasady-ochrany-osobnich-udaju)