Bytový dům v centru města s potenciálem půdního prostoru
Nabízíme k prodeji velmi zajímavý objekt se dvěma velkými byty, dvěma nebytovými prostory a potenciálem půdního prostoru v Sezemicích. Obec má velmi dobré napojení na dálnici D35. Prodávaný dům se nachází v centru města. Jedná se o dvoupodlažní dům, který je z velké části podsklepený a je s původní vestavbou se sedlovou střechou.
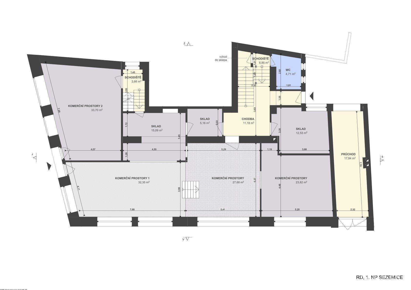
V 1NP jsou nebytové prostory, ve 2NP jsou umístěny prostorné byty. Půdní prostor je prázdný, nevyužitý, nabízí potenciál krásného podkrovního bydlení. V suterénu se nachází sklep s několika místnostmi.
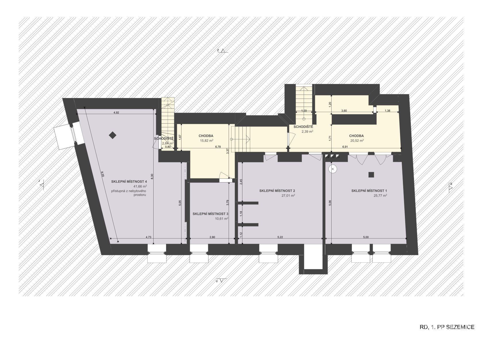
1PP (sklep) disponuje 4 místnostmi o podlahové ploše 105 m², každá místnost má plastová okna. Sklep má 2 přístupová schodiště. Sklep je po kompletní rekonstrukci. Stropy nad sklepem jsou železobetonové.
V 1NP je rozdělené na dva nebytové prostory, skladové prostory, chodbu a 2x WC.
V jednom nebytovém prostoru o ploše 89 m² byly umístěny kanceláře následně prodejna barev a laků. Prostor je napojen na samostatnou plynovou přípojku s možností vytápění plynovým kotlem. Prostor má samostatné WC a sklad. Výlohy jsou zde po celkové renovaci, okna plastová.
V druhém nebytovém prostoru je rychlé občerstvení Kebab (34 m²).Tento prostor je samostatně podsklepený a disponuje samostatným WC. Je zde zaveden a samostatná plynová přípojka. Obě prodejny mají přístup z domu a z hlavní ulice.
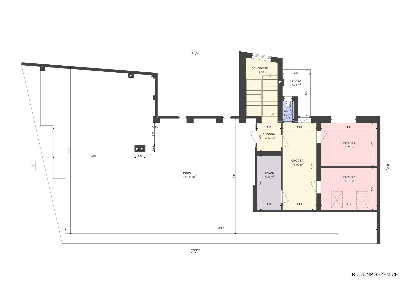
Ve 2NP se nachází dvě velké bytové jednotky o dispozici mezonetový 4+1 (98,5 m²), 3+1 (86 m²).
Byt 4+1/3+1 (mezonet), prošel postupně kompletní renovací včetně rozvodů elektřiny, vody, odpadů a výměny oken za plastová. Byt je orientovaný do Jungmannovy ulice na V stranu a okno v kuchyni, koupelně má na západ. Vytápění bytu a ohřev vody jsou zajištěny plynovým kotlem. Mimo ústředního topení byt disponuje krbovou vložkou v obývacím pokoji. Na podlahách je dlažba (chodba, kuchyň, jídelna, koupelna), dřevěná podlaha – obývací pokoj, ložnice, oba pokoje ve 3 NP betonová podlaha. V kuchyni a v jídelně je podlaha vytápěná. V 2NP se nachází kuchyň, jídelna, obývací pokoj, ložnice, komora, koupelna a ve 3NP 2 pokoje, šatní místnost, WC a terasa. Byt ve 3NP byl původně samostatným bytem a nyní je propojen točitým schodištěm.
Byt 3+1 prošel částečnou renovací (rozvody elektřiny jsou provedeny v mědi, plastová okna). Je orientovaný na J a V stranu (do Jungmannovy ulice a do Havlíčkovy ulice). Byt je vytápěn plynovým kotlem, voda je ohřívána el. bojlerem. Na podlaze v bytě jsou parkety, na nich jsou položeny koberce, v kuchyni linoleum, v chodbě leštěná žula.
Oba byty jsou vhodné k nastěhování.
Ve 3NP je půda, která nabízí další možné rozšíření o bytové jednotky. Půdní prostor je o podlahové ploše cca 164 m².
V roce 2018 byla kompletně zrenovovaná střecha vč. Provedení vnějšího nátěru a výměny okapů. U Z a V stěn bylo provedeno zateplení a fasáda.
Dům je napojen na městskou vodu, elektřinu, plyn. Odpadní voda je svedena do kanalizace. Nebytový prostor (barvy laky) v 1 NP + byt v 2 NP jsou vybaveny ESP s možností napojení na PCO.
Pomocí naší hypoteční kalkulačky si můžete udělat orientační představu o výši měsíčních splátek hypotéky. O vše ostatní se pak postaráme my ve spolupráci s našimi obchodními partnery.
64 982 Kč
* Odhadovaná měsíční splátka vychází z výše úvěru Kč s pevnou úrokovou sazbou % po celou dobu trvání úvěru.
Uživatel serveru RealityMIX.cz (dále jen „Server“) dostupného na internetové adrese (URL) https://www.realitymix.cz, který provozuje společnost DALTEN media s.r.o., se sídlem Na Harfě 916/9a, Praha 9, 190 00, IČO: 271 35 306 (dále jen „Správce“) jako provozovateli tohoto Serveru uděluje svůj výslovný souhlas v souladu s ustanovením § 5 zákona č. 101/2000 Sb. O ochraně osobních údajů a o změně některých zákonů, v platném znění (dále jen „zákon o ochraně osobních údajů“), se zpracováním uživatelem poskytnutých osobních údajů a dalších dat.
Uživatel poskytuje Správci osobní údaje v rozsahu: jméno, příjmení, e-mailová adresa, telefonický kontakt a další data, a to z důvodu projeveného zájmu o nemovitost, kde prostřednictvím služby Serveru Správce osloví Uživatel inzerenta uvedeného v detailu
nemovitosti - reality VAŠATOVÁ s.r.o. (IČ 27535690) se zájmem o jeho služby.
Uživatel tyto osobní údaje poskytuje dobrovolně a bere na vědomí, že součástí služeb Správce, které Správce Uživateli poskytuje, je vyhledání všech Uživateli vyhovujících (dle parametrů - cena, typ nemovitosti, lokalita atd.) nemovitostí. Správce za tímto účelem provozuje aplikace Hlídací pes a newsletter. Tyto služby je možné z každého zaslaného emailu odhlásit. Souhlas se zpracováním osobních údajů Uživatel poskytuje Správci na dobu neurčitou s tím, že svůj udělený souhlas může Uživatel kdykoliv na drese správce info@realitymix.cz odvolat. Správce garantuje Uživateli i další práva uvedené v ustanovení §11 a §21 zákoba č. 101/200 Sb. Ve znění pozdějších předpisů.
Více informací o zpracování údajů získáte zde (realitymix.cz/zasady-ochrany-osobnich-udaju)