Prodej komerčního prostoru 665 m and sup2;, pozemek 1589 m and sup2;, Pražská, Slaný
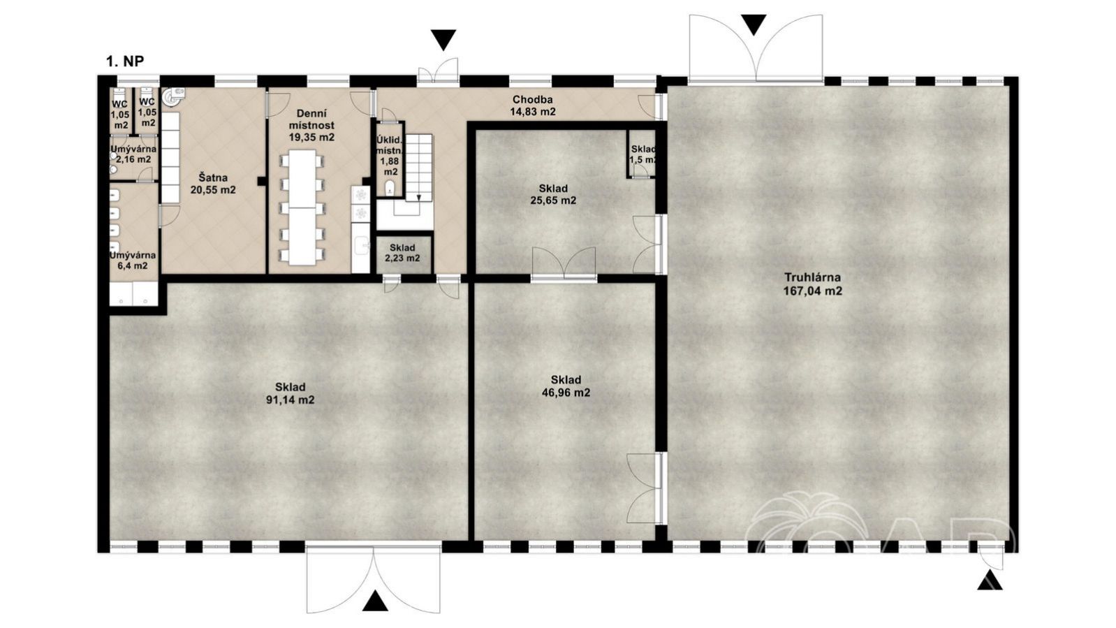
Nabízíme k prodeji výrobní halu s kompletním zázemím, aktuálně využívanou jako truhlárna, umístěnou v zabezpečeném areálu s pozemkem 1589 m and sup2; a užitnou plochou 665 m and sup2;. Objekt je ve funkčním technickém stavu, vhodný k okamžitému využití a nabízí široké možnosti dalšího podnikání.
Dispozice a technické řešení:
1. nadzemní podlaží 568 m and sup2;
výrobní prostory
technické zázemí
šatny pro zaměstnance
jídelna
skladové a obslužné prostory
sociální zázemí (WC, sprchy)
2. nadzemní podlaží 95,5 m and sup2;
kancelářské prostory - celkem 4 kanceláře + prostor pro kartotéku
kuchyňka
WC
Hala má železobetonový stropní systém s hurdiskovými vložkami (žebrovaný strop), který zajišťuje dobrou únosnost i dlouhou životnost konstrukce. Objekt je dostatečně světlý, s kvalitním umělým osvětlením a přirozeným denním světlem.
Technický stav a vybavení:
nová střecha (2023)
bezpečnostní systém
napojení na veškeré inženýrské sítě
nízké měsíční provozní náklady cca 15 000 Kč (elektřina, plyn, vodné/stočné)
Venkovní plochy:
parkování v přední části objektu
zpevněná plocha za halou o výměře 965 m2, aktuálně pronajatá (výpovědní doba 3 měsíce) vhodná pro manipulaci, skladování nebo budoucí rozšíření provozu
Díky své dispozici, technickému stavu a umístění je objekt vhodný pro:
lehkou výrobu
dílnu nebo servisní provoz
skladování a logistiku
montážní nebo kompletovací činnost
provoz e-shopu s vlastním zázemím
kombinaci výroby, administrativy a skladů
zázemí pro řemeslnou nebo technickou firmu
Nemovitost představuje zajímavou příležitost jak pro vlastní podnikání, tak i pro investory hledající stabilní komerční objekt s nízkými provozními náklady.
Uživatel serveru RealityMIX.cz (dále jen „Server“) dostupného na internetové adrese (URL) https://www.realitymix.cz, který provozuje společnost DALTEN media s.r.o., se sídlem Na Harfě 916/9a, Praha 9, 190 00, IČO: 271 35 306 (dále jen „Správce“) jako provozovateli tohoto Serveru uděluje svůj výslovný souhlas v souladu s ustanovením § 5 zákona č. 101/2000 Sb. O ochraně osobních údajů a o změně některých zákonů, v platném znění (dále jen „zákon o ochraně osobních údajů“), se zpracováním uživatelem poskytnutých osobních údajů a dalších dat.
Uživatel poskytuje Správci osobní údaje v rozsahu: jméno, příjmení, e-mailová adresa, telefonický kontakt a další data, a to z důvodu projeveného zájmu o nemovitost, kde prostřednictvím služby Serveru Správce osloví Uživatel inzerenta uvedeného v detailu
nemovitosti - QARA s.r.o. (IČ 01740113) se zájmem o jeho služby. Tato společnost je součástí seskupení/sítě/franšízového modelu realitních kanceláří, jejich seznam můžete zobrazit kliknutím na tento odkaz.
QARA s.r.o. Ostrava (IČ 01740113) , QARA s.r.o. Brno (IČ 01740113) , QARA s.r.o. (IČ 01740113)
Uživatel tyto osobní údaje poskytuje dobrovolně a bere na vědomí, že součástí služeb Správce, které Správce Uživateli poskytuje, je vyhledání všech Uživateli vyhovujících (dle parametrů - cena, typ nemovitosti, lokalita atd.) nemovitostí. Správce za tímto účelem provozuje aplikace Hlídací pes a newsletter. Tyto služby je možné z každého zaslaného emailu odhlásit. Souhlas se zpracováním osobních údajů Uživatel poskytuje Správci na dobu neurčitou s tím, že svůj udělený souhlas může Uživatel kdykoliv na drese správce info@realitymix.cz odvolat. Správce garantuje Uživateli i další práva uvedené v ustanovení §11 a §21 zákoba č. 101/200 Sb. Ve znění pozdějších předpisů.
Více informací o zpracování údajů získáte zde (realitymix.cz/zasady-ochrany-osobnich-udaju)