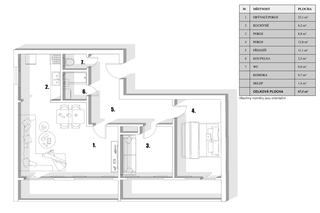
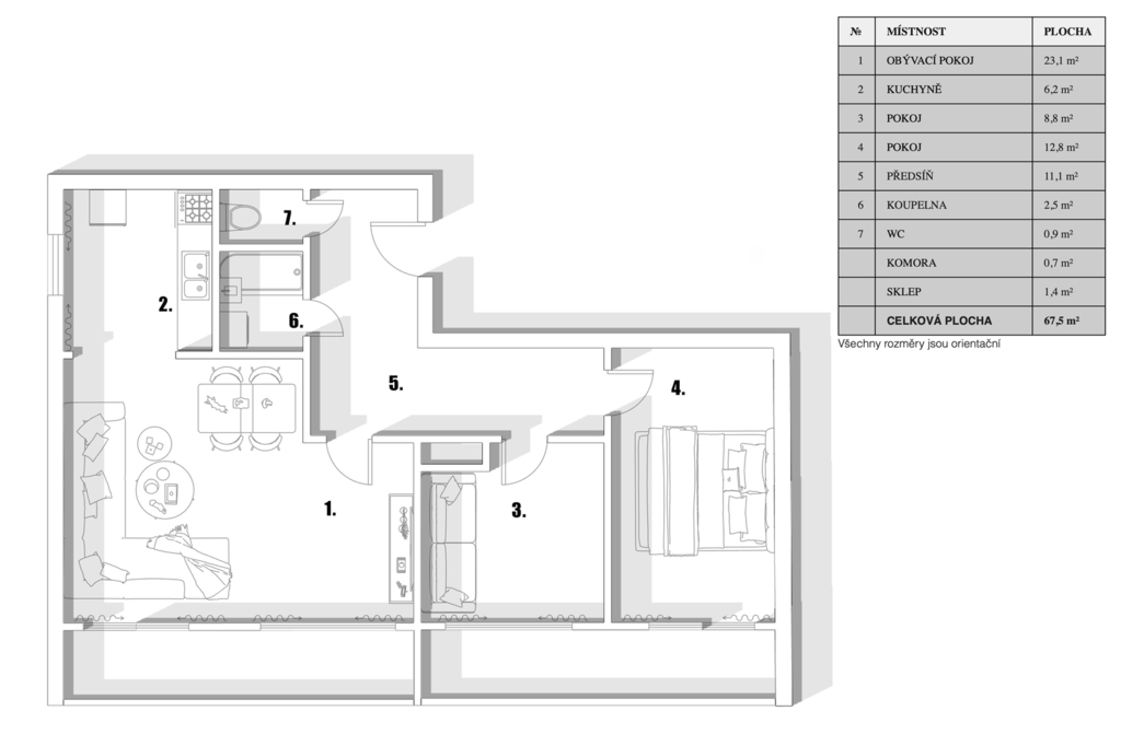
Nabízíme Vám útulný a světlý byt 3+1 o výměře 65,4m2. K bytu náleží dvě lodžie (celkem 12,5m2), komora na patře u bytu (0,7m2) a sklep v suterénu domu (1,4m2). Tento byt se nachází ve 4.NP zatepleného panelového domu s výtahem. Samotný byt je v původním, avšak dobře udržovaném stavu. Byt si tedy rovněž můžete přizpůsobit přesně podle dvého vkusu. Bydlení je bezbariérové. Dispozičně je byt řešen ideálně. Všechny místnosti jsou přístupné z předsíně (chodby). Dvě neprůchozí ložnice s obývací pokoj s kuchyňským koutem do L, oproti kuchyňské lince je okno, denní světlo je zde velmi příjemné a praktické. Jádro je původní (umakart). Koupelna s připojením na pračku, WC odděleně. V případě rekonstrukce jádra a kuchyně by se dala zvětšit koupelna a současně rozšířit kuchyňská linka (klidně i do tvaru L). Pokud jde o lokalitu, tak tu považuji za velikou výhodu. Jedná se o poklidnou část města, nacházející se na okraji města u přilehlých polí. Bydlení tak nabízí příjemné, poklidné bydlení rodiny s dětmi. 5 minut pěšky je Billa, základní i mateřská škola, nebo víceúčelové sportovní centrum s aquaparkem. S financováním Vám rádi pomůžeme prostřednictvím našeho skvělého hypotečního poradce s mnoholetými zkušenostmi se všemi bankami. Doporučuji včasnou osobní prohlídku tohoto bytu.
Pomocí naší hypoteční kalkulačky si můžete udělat orientační představu o výši měsíčních splátek hypotéky. O vše ostatní se pak postaráme my ve spolupráci s našimi obchodními partnery.
24 900 Kč
* Odhadovaná měsíční splátka vychází z výše úvěru Kč s pevnou úrokovou sazbou % po celou dobu trvání úvěru.
Prodáváte nemovitost a potřebujete zjistit její reálnou hodnotu?
Uživatel serveru RealityMIX.cz (dále jen „Server“) dostupného na internetové adrese (URL) https://www.realitymix.cz, který provozuje společnost DALTEN media s.r.o., se sídlem Na Harfě 916/9a, Praha 9, 190 00, IČO: 271 35 306 (dále jen „Správce“) jako provozovateli tohoto Serveru uděluje svůj výslovný souhlas v souladu s ustanovením § 5 zákona č. 101/2000 Sb. O ochraně osobních údajů a o změně některých zákonů, v platném znění (dále jen „zákon o ochraně osobních údajů“), se zpracováním uživatelem poskytnutých osobních údajů a dalších dat.
Uživatel poskytuje Správci osobní údaje v rozsahu: jméno, příjmení, e-mailová adresa, telefonický kontakt a další data, a to z důvodu projeveného zájmu o nemovitost, kde prostřednictvím služby Serveru Správce osloví Uživatel inzerenta uvedeného v detailu
nemovitosti - Petr Berka (IČ 71013784) se zájmem o jeho služby.
Uživatel tyto osobní údaje poskytuje dobrovolně a bere na vědomí, že součástí služeb Správce, které Správce Uživateli poskytuje, je vyhledání všech Uživateli vyhovujících (dle parametrů - cena, typ nemovitosti, lokalita atd.) nemovitostí. Správce za tímto účelem provozuje aplikace Hlídací pes a newsletter. Tyto služby je možné z každého zaslaného emailu odhlásit. Souhlas se zpracováním osobních údajů Uživatel poskytuje Správci na dobu neurčitou s tím, že svůj udělený souhlas může Uživatel kdykoliv na drese správce info@realitymix.cz odvolat. Správce garantuje Uživateli i další práva uvedené v ustanovení §11 a §21 zákoba č. 101/200 Sb. Ve znění pozdějších předpisů.
Více informací o zpracování údajů získáte zde (realitymix.cz/zasady-ochrany-osobnich-udaju)