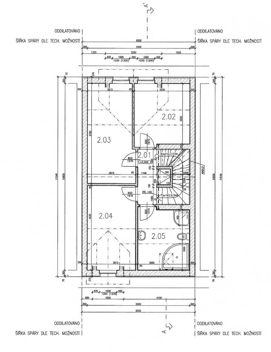
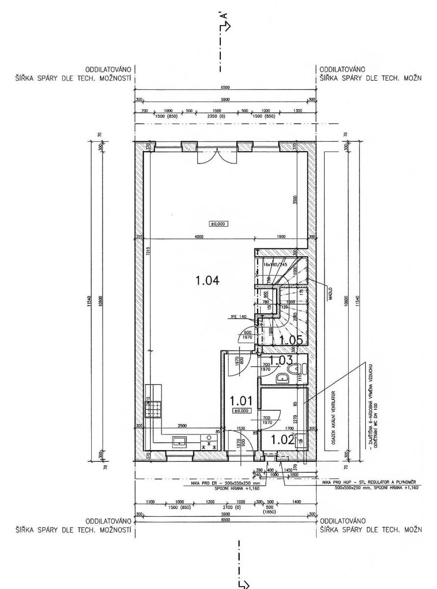
Prodej rodinného domu 158 m and sup2;, pozemek 188 m and sup2; Slatina
Hledáte dům s velkou užitnou plochou a chytrým dispozičním řešením? Tenhle by Vás mohl zaujmout. Nabízí pět pokojů, 158 m and sup2; obytné plochy, zahradu a dvě parkovací stání přímo na vlastním pozemku.
Dovoluji si Vám nabídnout rodinný dům v klidné části obce Slatina, který je součástí projektu Anglický resort. Řadový dům zkolaudovaný v roce 2011 je ve velmi dobrém stavu a svými 158 m and sup2; užitné plochy poskytuje opravdu štědrý prostor ideální volbu pro větší rodinu nebo pro ty, kteří jednoduše potřebují více místa.
Dům se nachází v tiché zástavbě a nabízí pohodové bydlení s výbornou dostupností do města. Pozemek o velikosti 188 m and sup2; zahrnuje také zahradu 75 m and sup2;, která je skvělým místem k odpočinku, grilování nebo drobnému zahradničení. Přímo před domem máte k dispozici dvě parkovací místa.
Vytápění zajišťuje plynový kotel, který zároveň ohřívá vodu. Energetická náročnost je ve třídě C, takže provoz domu je rozumně úsporný.
Součástí resortu je dětské hřiště. Přímo v obci najdete obecní úřad, mateřskou i základní školu. Slatina leží nedaleko města Kladno, přibližně 13 kilometrů severovýchodně. Žije zde 632 obyvatel, takže prostředí působí příjemně komunitně a přitom občanská vybavenost nechybí.
Možné financování:
Financování úvěrem je možné a rád Vám s ním pomohu.
Osobní prohlídky jsou možné po předchozí domluvě. Pro více informací nebo sjednání termínu mě prosím kontaktujte nebo využijte formulář níže. Těším se na setkání.
Pomocí naší hypoteční kalkulačky si můžete udělat orientační představu o výši měsíčních splátek hypotéky. O vše ostatní se pak postaráme my ve spolupráci s našimi obchodními partnery.
36 358 Kč
* Odhadovaná měsíční splátka vychází z výše úvěru Kč s pevnou úrokovou sazbou % po celou dobu trvání úvěru.
Uživatel serveru RealityMIX.cz (dále jen „Server“) dostupného na internetové adrese (URL) https://www.realitymix.cz, který provozuje společnost DALTEN media s.r.o., se sídlem Na Harfě 916/9a, Praha 9, 190 00, IČO: 271 35 306 (dále jen „Správce“) jako provozovateli tohoto Serveru uděluje svůj výslovný souhlas v souladu s ustanovením § 5 zákona č. 101/2000 Sb. O ochraně osobních údajů a o změně některých zákonů, v platném znění (dále jen „zákon o ochraně osobních údajů“), se zpracováním uživatelem poskytnutých osobních údajů a dalších dat.
Uživatel poskytuje Správci osobní údaje v rozsahu: jméno, příjmení, e-mailová adresa, telefonický kontakt a další data, a to z důvodu projeveného zájmu o nemovitost, kde prostřednictvím služby Serveru Správce osloví Uživatel inzerenta uvedeného v detailu
nemovitosti - Ing. Adolf Cír (IČ 73746282) se zájmem o jeho služby.
Uživatel tyto osobní údaje poskytuje dobrovolně a bere na vědomí, že součástí služeb Správce, které Správce Uživateli poskytuje, je vyhledání všech Uživateli vyhovujících (dle parametrů - cena, typ nemovitosti, lokalita atd.) nemovitostí. Správce za tímto účelem provozuje aplikace Hlídací pes a newsletter. Tyto služby je možné z každého zaslaného emailu odhlásit. Souhlas se zpracováním osobních údajů Uživatel poskytuje Správci na dobu neurčitou s tím, že svůj udělený souhlas může Uživatel kdykoliv na drese správce info@realitymix.cz odvolat. Správce garantuje Uživateli i další práva uvedené v ustanovení §11 a §21 zákoba č. 101/200 Sb. Ve znění pozdějších předpisů.
Více informací o zpracování údajů získáte zde (realitymix.cz/zasady-ochrany-osobnich-udaju)