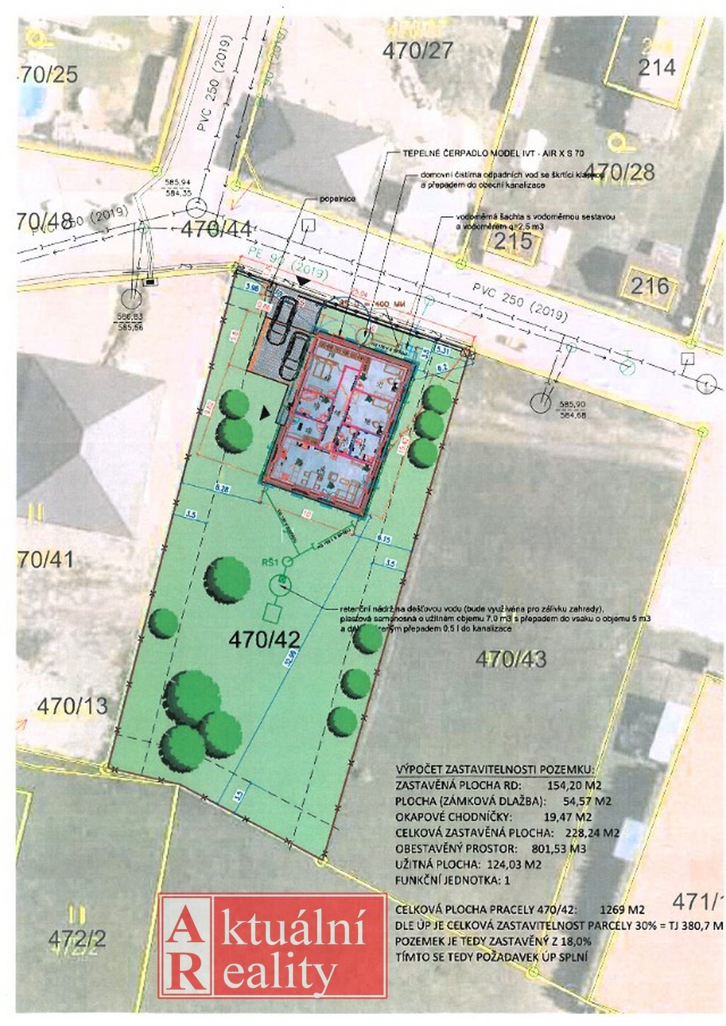
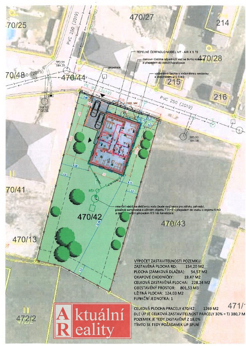
Nabízíme k prodeji pěkný rovinatý pozemek v obci Slavče nedaleko Trhových Svinů. Pozemek se nachází v lokalitě s výstavbou nových rodinných domů v klidné části na okraji obce. Vydáno platné stavební povolení, projekt a veškerá dokumentace součástí ceny - možno ihned stavět. Na pozemku možnost připojení na inženýrské sítě. V obci Slavče se nachází základní občanská vybavenost. Veškerou vybavenost najdete v nedaleko vzdáleném městě Trhové Sviny (cca. 6 km). České Budějovice 25 km. Lokalita je vhodná pro rodiny hledající klidné bydlení a zároveň aktivní styl života - okolí Slavče tvoří kopcovitá zalesněná krajina s téměř nedotčenou přírodou. Oblast láká jak k pěší turistice, tak k cyklistickým vyjížďkám, možnost krásného koupání nabízí malá přehradní nádrž v Dobrkovské Lhotce.
Více informací při osobní prohlídce. DOPORUČUJEME.
Pomocí naší hypoteční kalkulačky si můžete udělat orientační představu o výši měsíčních splátek hypotéky. O vše ostatní se pak postaráme my ve spolupráci s našimi obchodními partnery.
11 332 Kč
* Odhadovaná měsíční splátka vychází z výše úvěru Kč s pevnou úrokovou sazbou % po celou dobu trvání úvěru.
Uživatel serveru RealityMIX.cz (dále jen „Server“) dostupného na internetové adrese (URL) https://www.realitymix.cz, který provozuje společnost DALTEN media s.r.o., se sídlem Na Harfě 916/9a, Praha 9, 190 00, IČO: 271 35 306 (dále jen „Správce“) jako provozovateli tohoto Serveru uděluje svůj výslovný souhlas v souladu s ustanovením § 5 zákona č. 101/2000 Sb. O ochraně osobních údajů a o změně některých zákonů, v platném znění (dále jen „zákon o ochraně osobních údajů“), se zpracováním uživatelem poskytnutých osobních údajů a dalších dat.
Uživatel poskytuje Správci osobní údaje v rozsahu: jméno, příjmení, e-mailová adresa, telefonický kontakt a další data, a to z důvodu projeveného zájmu o nemovitost, kde prostřednictvím služby Serveru Správce osloví Uživatel inzerenta uvedeného v detailu
nemovitosti - Aktuální Reality (IČ 62492012) se zájmem o jeho služby.
Uživatel tyto osobní údaje poskytuje dobrovolně a bere na vědomí, že součástí služeb Správce, které Správce Uživateli poskytuje, je vyhledání všech Uživateli vyhovujících (dle parametrů - cena, typ nemovitosti, lokalita atd.) nemovitostí. Správce za tímto účelem provozuje aplikace Hlídací pes a newsletter. Tyto služby je možné z každého zaslaného emailu odhlásit. Souhlas se zpracováním osobních údajů Uživatel poskytuje Správci na dobu neurčitou s tím, že svůj udělený souhlas může Uživatel kdykoliv na drese správce info@realitymix.cz odvolat. Správce garantuje Uživateli i další práva uvedené v ustanovení §11 a §21 zákoba č. 101/200 Sb. Ve znění pozdějších předpisů.
Více informací o zpracování údajů získáte zde (realitymix.cz/zasady-ochrany-osobnich-udaju)