Bytový dům s pozemkem 474 m2, ul. Tovární, Šluknov
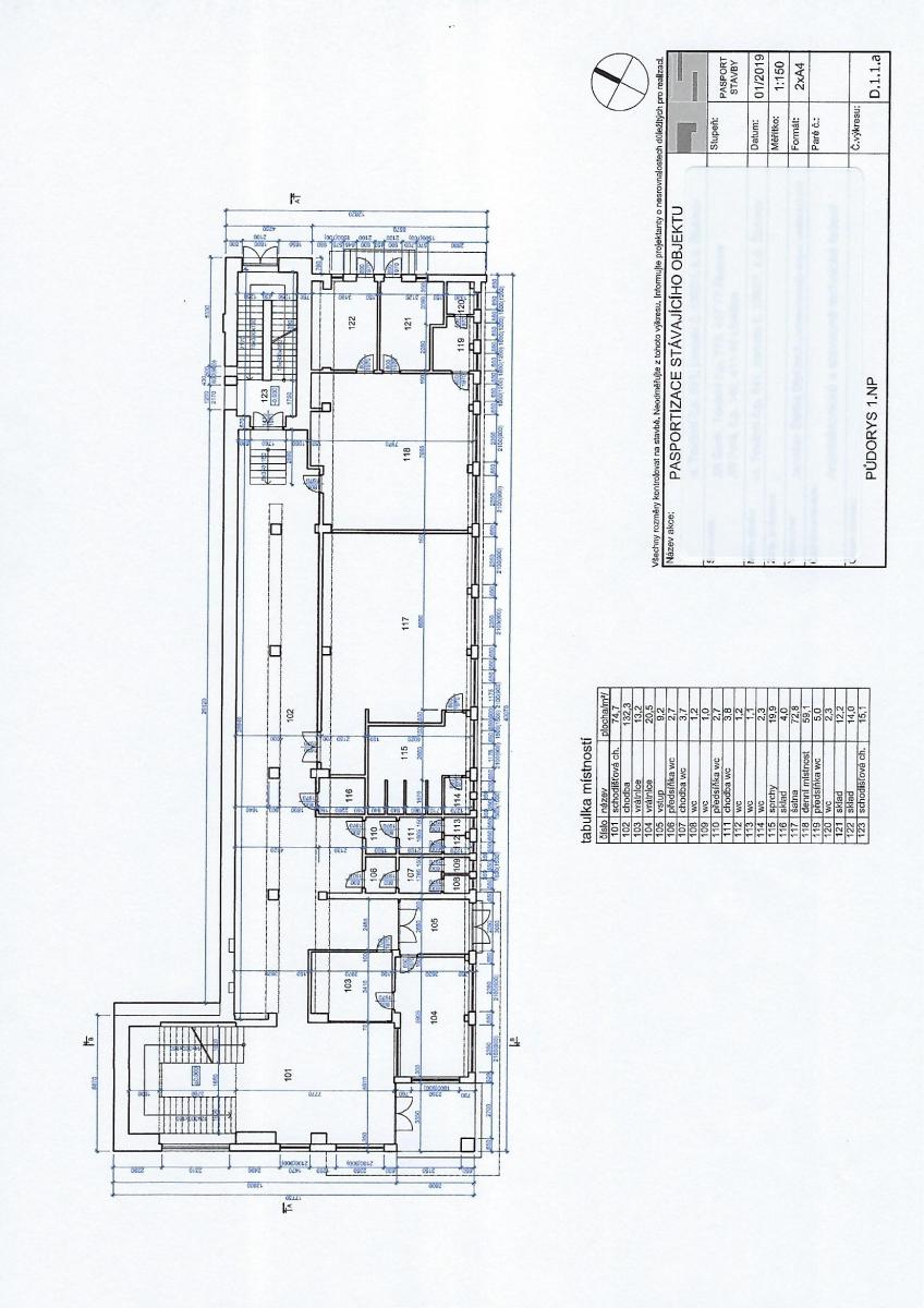
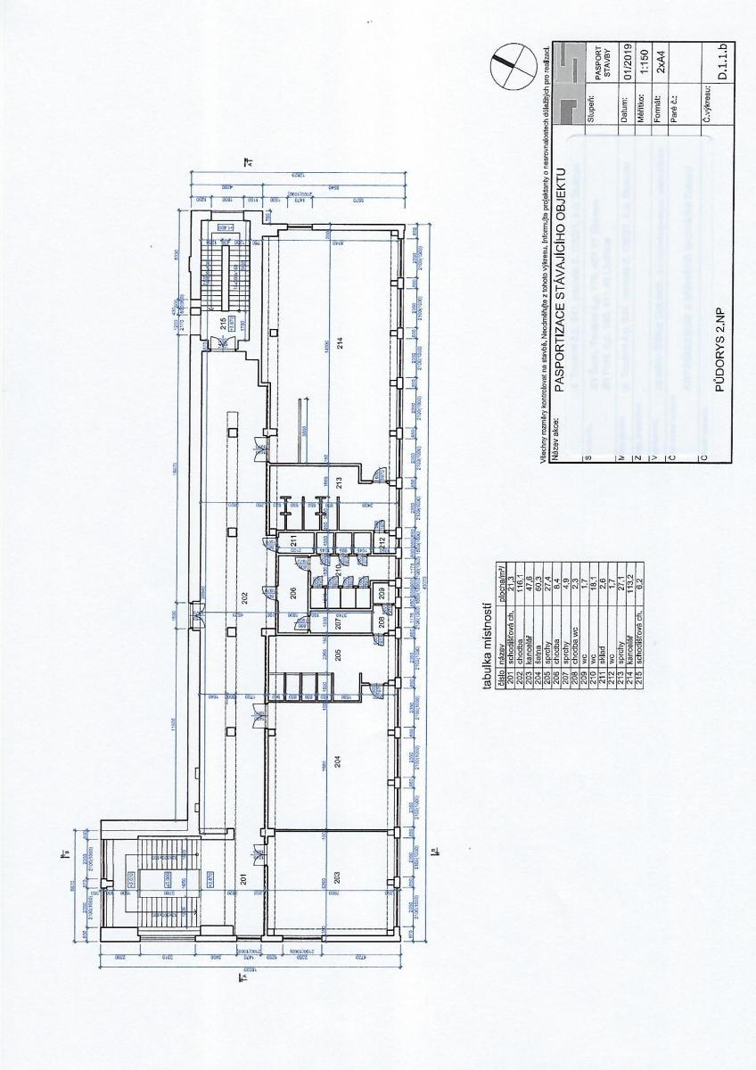
Nabízíme Vám jedinečnou příležitost investovat do rozvoje bytového bydlení v klidné části Šluknova, okres Děčín. K prodeji je bývalá třípodlažní administrativní budova s potenciálem přestavby na moderní bytové domy. Od prosince 2018 je podle nového územního plánu tato nemovitost určena k bydlení v bytových domech.
Plocha pozemku: 474 m
Zastavěná plocha: 474 m
Obytná plocha: 1 388 m
Možnost rozšíření - navazující pozemky k dokoupení. Kupní cena - dohodou.
Hlavní výhody nabídky:
Možnost výstavby bytového domu až do čtyř nadzemních podlaží
Zastavitelnost pozemku až 55 %
Kompletní inženýrské sítě na hranici pozemku - (elektřina, studna, městská voda a kanalizace, plyn)
Dopravní dostupnost a lokalita:
Výborné spojení vlaková zastávka Šluknov pouhých 100 m od areálu
Rychlý přístup k hraničním přechodům (Rožany 3 km, Rumburk 10 km)
Zpevněná příjezdová komunikace
Bezproblémové parkování přímo u budovy
Život v lokalitě:
Okolí plné zeleně, parků a veřejných prostranství
Dětská hřiště a sportoviště v docházkové vzdálenosti
Klidné prostředí vhodné pro rodiny i investory
Další možnosti:
V nabídce jsou i další okolní budovy vhodné pro komerční využití
Energetická náročnost: G (PENB ve zpracování)
Využijte příležitosti a investujte do moderního bydlení v perspektivní lokalitě Šluknova. Pro více informací a sjednání prohlídky mě neváhejte kontaktovat. Rádi Vám zašleme pasportizaci celého objektu i další dokumenty.
Pomocí naší hypoteční kalkulačky si můžete udělat orientační představu o výši měsíčních splátek hypotéky. O vše ostatní se pak postaráme my ve spolupráci s našimi obchodními partnery.
27 936 Kč
* Odhadovaná měsíční splátka vychází z výše úvěru Kč s pevnou úrokovou sazbou % po celou dobu trvání úvěru.
Uživatel serveru RealityMIX.cz (dále jen „Server“) dostupného na internetové adrese (URL) https://www.realitymix.cz, který provozuje společnost DALTEN media s.r.o., se sídlem Na Harfě 916/9a, Praha 9, 190 00, IČO: 271 35 306 (dále jen „Správce“) jako provozovateli tohoto Serveru uděluje svůj výslovný souhlas v souladu s ustanovením § 5 zákona č. 101/2000 Sb. O ochraně osobních údajů a o změně některých zákonů, v platném znění (dále jen „zákon o ochraně osobních údajů“), se zpracováním uživatelem poskytnutých osobních údajů a dalších dat.
Uživatel poskytuje Správci osobní údaje v rozsahu: jméno, příjmení, e-mailová adresa, telefonický kontakt a další data, a to z důvodu projeveného zájmu o nemovitost, kde prostřednictvím služby Serveru Správce osloví Uživatel inzerenta uvedeného v detailu
nemovitosti - R+R Europe Real, s.r.o. (IČ 27455548) se zájmem o jeho služby.
Uživatel tyto osobní údaje poskytuje dobrovolně a bere na vědomí, že součástí služeb Správce, které Správce Uživateli poskytuje, je vyhledání všech Uživateli vyhovujících (dle parametrů - cena, typ nemovitosti, lokalita atd.) nemovitostí. Správce za tímto účelem provozuje aplikace Hlídací pes a newsletter. Tyto služby je možné z každého zaslaného emailu odhlásit. Souhlas se zpracováním osobních údajů Uživatel poskytuje Správci na dobu neurčitou s tím, že svůj udělený souhlas může Uživatel kdykoliv na drese správce info@realitymix.cz odvolat. Správce garantuje Uživateli i další práva uvedené v ustanovení §11 a §21 zákoba č. 101/200 Sb. Ve znění pozdějších předpisů.
Více informací o zpracování údajů získáte zde (realitymix.cz/zasady-ochrany-osobnich-udaju)