Jedinečná investiční příležitost v samotném srdci Soběslavi. V historickém centru města, jen pár kroků od náměstí, nabízíme polyfunkční objekt, který zaujme polohou, velikostí i širokou variabilitou budoucího využití. Nemovitost je ideální volbou pro investora, který hledá kombinaci stabilního výnosu, atraktivní komerce a možnosti rezidenčního zhodnocení v centru města.
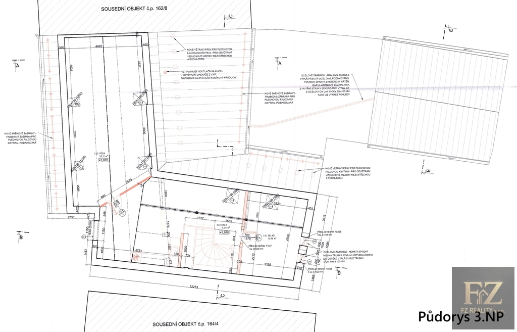
V katastru je stavba vedena jako občanská vybavenost, zároveň však disponuje platným stavebním povolením na rekolaudaci na prodejnu a jazykovou školu. Díky tomu je možné navázat na připravený záměr, případně využít objekt ještě flexibilněji. Namísto školy lze vybudovat obchodní dům, nebo tři bytové jednotky o celkové ploše 160 m², dále schválenou prodejnu o ploše 120 m² a ateliér/kanceláře o ploše 88 m². Nachází se zde také objekt ve dvoře, ve kterém se přímo nabízí možnost vytvoření menšího zázemí, například wellness prostoru o ploše 30 m².
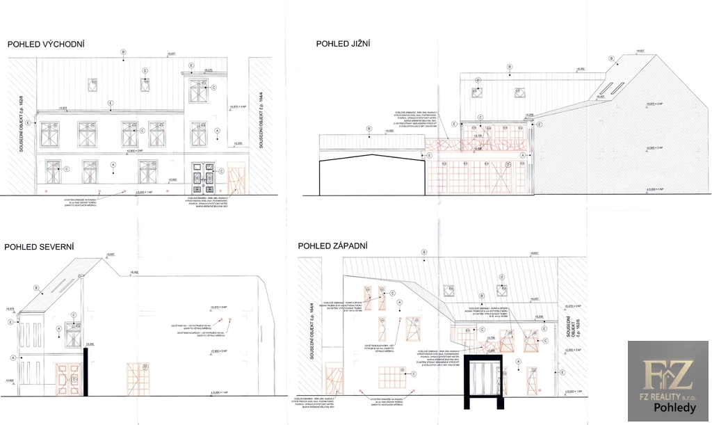
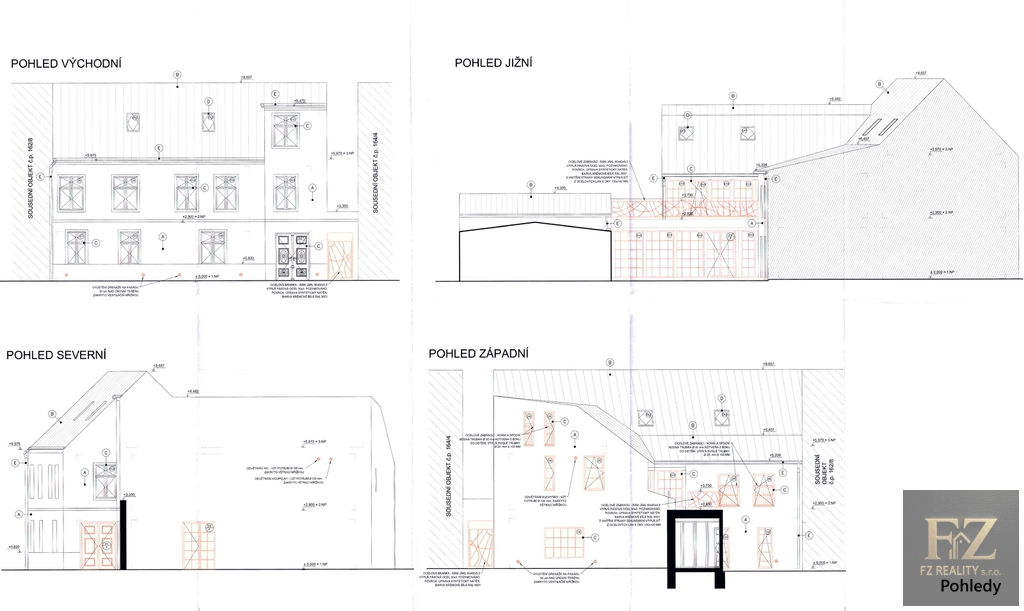
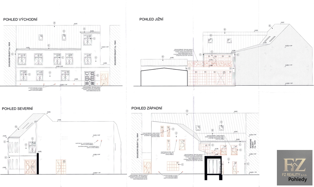
Objekt je cihlová stavba o třech podlažích s celkovou užitnou plochou 406 m², přičemž 1. NP má 172 m², 2. NP 146 m² a 3. NP 88 m². Celková plocha pozemku činí 296 m². Budova je napojena na veřejný vodovod i kanalizaci, je v dobrém technickém stavu a především suchá.
Rekonstrukce je již zahájena a na objektu se stále pracuje. Veškeré klenby v přízemí jsou nově omítnuty a hotové jsou i některé omítky stěn. To dává budoucímu projektu jasný náskok. Kompletní projektová dokumentace je k dispozici a zároveň je možné případnou bytovou variantu řešit formou změny stavby před dokončením, což otevírá prostor pro úpravu záměru dle preferencí investora a aktuální poptávky.
K domu náleží i “soudka“, kterou má vzniknout další vstup do budovy. To může výrazně pomoci funkčnímu rozdělení jednotlivých částí objektu, oddělení komerčního provozu od rezidenční části a celkovému komfortu užívání. Parkování je možné v okolních ulicích i na přilehlých parkovištích.
Soběslav nabízí kompletní občanskou vybavenost a velmi příjemné městské zázemí. Z domu jste pěšky během chvíle na náměstí, poliklinice, nádraží, poště, u škol i školky. Skvělou přidanou hodnotou je také výborná dopravní dostupnost s rychlým napojením na dálnici D3 a snadným dojezdem do Tábora, Českých Budějovic i Prahy.
Pro více informací a domluvu prohlídky mě neváhejte kontaktovat.
Pomocí naší hypoteční kalkulačky si můžete udělat orientační představu o výši měsíčních splátek hypotéky. O vše ostatní se pak postaráme my ve spolupráci s našimi obchodními partnery.
19 839 Kč
* Odhadovaná měsíční splátka vychází z výše úvěru Kč s pevnou úrokovou sazbou % po celou dobu trvání úvěru.
Uživatel serveru RealityMIX.cz (dále jen „Server“) dostupného na internetové adrese (URL) https://www.realitymix.cz, který provozuje společnost DALTEN media s.r.o., se sídlem Na Harfě 916/9a, Praha 9, 190 00, IČO: 271 35 306 (dále jen „Správce“) jako provozovateli tohoto Serveru uděluje svůj výslovný souhlas v souladu s ustanovením § 5 zákona č. 101/2000 Sb. O ochraně osobních údajů a o změně některých zákonů, v platném znění (dále jen „zákon o ochraně osobních údajů“), se zpracováním uživatelem poskytnutých osobních údajů a dalších dat.
Uživatel poskytuje Správci osobní údaje v rozsahu: jméno, příjmení, e-mailová adresa, telefonický kontakt a další data, a to z důvodu projeveného zájmu o nemovitost, kde prostřednictvím služby Serveru Správce osloví Uživatel inzerenta uvedeného v detailu
nemovitosti - FZ REALITY s.r.o. (IČ 23231921) se zájmem o jeho služby.
Uživatel tyto osobní údaje poskytuje dobrovolně a bere na vědomí, že součástí služeb Správce, které Správce Uživateli poskytuje, je vyhledání všech Uživateli vyhovujících (dle parametrů - cena, typ nemovitosti, lokalita atd.) nemovitostí. Správce za tímto účelem provozuje aplikace Hlídací pes a newsletter. Tyto služby je možné z každého zaslaného emailu odhlásit. Souhlas se zpracováním osobních údajů Uživatel poskytuje Správci na dobu neurčitou s tím, že svůj udělený souhlas může Uživatel kdykoliv na drese správce info@realitymix.cz odvolat. Správce garantuje Uživateli i další práva uvedené v ustanovení §11 a §21 zákoba č. 101/200 Sb. Ve znění pozdějších předpisů.
Více informací o zpracování údajů získáte zde (realitymix.cz/zasady-ochrany-osobnich-udaju)