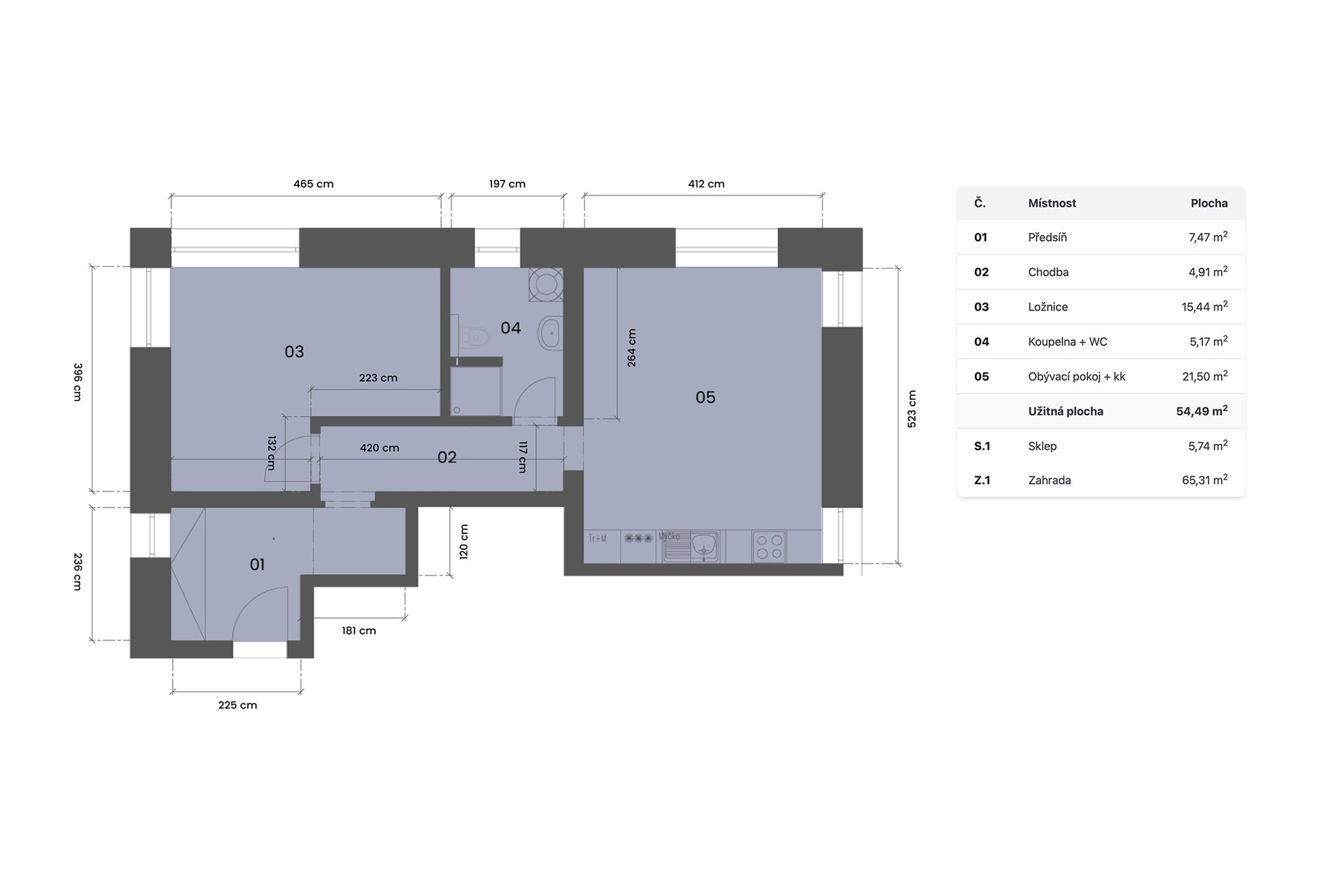
Exkluzivní nabídka prodeje bytové jednotky o užitné ploše 54,49 m², která se nachází v 1. NP ze tří, v cihlovém domě v ulici Jiráskova, č. p. 72, ve městě Soběslav, v Jihočeském kraji.
Bytová jednotka je dispozičně řešena jako 2+kk. Za vstupními dveřmi se nachází prostorná předsíň, na kterou navazuje chodba, ze které je přístupný obývací pokoj s kuchyňským koutem, samostatná ložnice a koupelna se sprchovým koutem a toaletou.
Bytová jednotka je ve stavu před dokončením, jedná se tedy o novostavbu. Topení je zajištěno elektrokotlem. Internet a kabelová televize je samozřejmostí, do domu je zaveden datový kabel a instalována anténa.
K jednotce náleží sklep o ploše 5,74 m2, zahrada 65,31 m2 a dvě parkovací stání.
Soběslav je malebné jihočeské město s bohatou historií, které se rozkládá na soutoku řeky Lužnice a Černovického potoka. Jeho půvabné centrum s renesančními a gotickými památkami vytváří jedinečnou atmosféru, jež láká nejen návštěvníky, ale i nové obyvatele. Město nabízí klidné prostředí, kvalitní občanskou vybavenost a výbornou dostupnost do okolních regionů.
Občanská vybavenost je výborná: základní a mateřská škola se nachází 250 m od domu, k dispozici jsou supermarkety Lidl, Tesco nebo Penny. Přímo v ulici má ordinaci praktický lékař, nedaleko se nachází Všeobecná interní ambulance. V okolí je také dostatek sportovních a dětských hřišť, in-line dráha, zimní stadion, fotbalové hřiště, koupaliště, přírodní rezervace Nový rybník apod.
Dopravní dostupnost je velmi dobrá. Podél východního okraje města vede dálnice D3 s dobrou dostupností Prahy. Samotné město stojí na křižovatce silnic II/3 a II/135. Městem vede železniční trať Praha – České Budějovice. Na jihozápadním okraji města je veřejné vnitrostátní letiště.
Pomocí naší hypoteční kalkulačky si můžete udělat orientační představu o výši měsíčních splátek hypotéky. O vše ostatní se pak postaráme my ve spolupráci s našimi obchodními partnery.
20 760 Kč
* Odhadovaná měsíční splátka vychází z výše úvěru Kč s pevnou úrokovou sazbou % po celou dobu trvání úvěru.
Prodáváte nemovitost a potřebujete zjistit její reálnou hodnotu?
Uživatel serveru RealityMIX.cz (dále jen „Server“) dostupného na internetové adrese (URL) https://www.realitymix.cz, který provozuje společnost DALTEN media s.r.o., se sídlem Na Harfě 916/9a, Praha 9, 190 00, IČO: 271 35 306 (dále jen „Správce“) jako provozovateli tohoto Serveru uděluje svůj výslovný souhlas v souladu s ustanovením § 5 zákona č. 101/2000 Sb. O ochraně osobních údajů a o změně některých zákonů, v platném znění (dále jen „zákon o ochraně osobních údajů“), se zpracováním uživatelem poskytnutých osobních údajů a dalších dat.
Uživatel poskytuje Správci osobní údaje v rozsahu: jméno, příjmení, e-mailová adresa, telefonický kontakt a další data, a to z důvodu projeveného zájmu o nemovitost, kde prostřednictvím služby Serveru Správce osloví Uživatel inzerenta uvedeného v detailu
nemovitosti - Středočeské Bydlení s.r.o. (IČ 08273049) se zájmem o jeho služby.
Uživatel tyto osobní údaje poskytuje dobrovolně a bere na vědomí, že součástí služeb Správce, které Správce Uživateli poskytuje, je vyhledání všech Uživateli vyhovujících (dle parametrů - cena, typ nemovitosti, lokalita atd.) nemovitostí. Správce za tímto účelem provozuje aplikace Hlídací pes a newsletter. Tyto služby je možné z každého zaslaného emailu odhlásit. Souhlas se zpracováním osobních údajů Uživatel poskytuje Správci na dobu neurčitou s tím, že svůj udělený souhlas může Uživatel kdykoliv na drese správce info@realitymix.cz odvolat. Správce garantuje Uživateli i další práva uvedené v ustanovení §11 a §21 zákoba č. 101/200 Sb. Ve znění pozdějších předpisů.
Více informací o zpracování údajů získáte zde (realitymix.cz/zasady-ochrany-osobnich-udaju)