Nabízíme k prodeji novostavbu přízemního rodinného domu v klidné části obce Srbeč, okres Rakovník. Dům je situován na prostorném pozemku o výměře 790 m2 a je ideální volbou pro rodinné bydlení v příjemném a klidném prostředí.
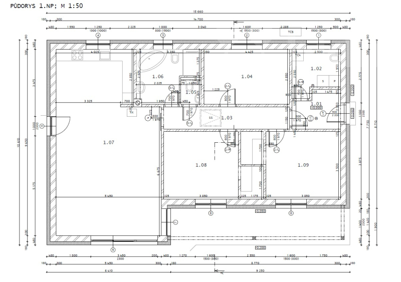
Rodinný dům je řešen jako jednopodlažní objekt půdorysného tvaru "L" se sedlovou (valbovou) střechou. Hlavní vstup do domu je situován z pravé strany objektu přes vstupní zádveří. Ze zádveří je přístup do technické místnosti a do chodby, která slouží jako hlavní komunikační prostor domu.
Dispozičně dům nabízí obývací pokoj s kuchyňským koutem a přímým vstupem na terasu a zahradu, dále ložnici, dva samostatné pokoje se šatnou, koupelnu, samostatné WC a technickou místnost.
Technické parametry a vybavení:
* konstrukce: moderní montovaná stavba na bázi dřevěné konstrukce (dřevostavba) + podlahové vytápění v celém domě
* ohřev teplé vody: tepelné čerpadlo
* možnost instalace krbových kamen - připraven komín Schiedel
* voda: napojení na obecní vodovod
* kanalizace: napojení na ČOV
* plastová okna s izolačními trojskly
Na pozemku je prostor pro vybudování terasy, zahrady, parkovacího stání, případně dalších úprav dle představ budoucího majitele.
Dopravní dostupnost:
Obec má velmi dobrou dostupnost do Prahy.
Napojení na je možné po rychlostních komunikacích D6 a D7, přičemž dojezdová vzdálenost na okraj Prahy je přibližně 35minut autem dle dopravní situace.
Lokalita:
Srbeč je klidná obec obklopená přírodou, lesy a loukami, vhodná pro rodinné bydlení i rekreaci. V obci se nachází základní občanská vybavenost (mateřská škola, obchod, obecní úřad), další služby jsou dostupné v Rakovníku. Lokalita nabízí klidné a bezpečné prostředí s možností procházek, cyklistiky a výletů do okolí.
Dům je prodáván ve stavu před dokončením interiéru. Cena nezahrnuje kuchyni, zařizovací předměty, podlahy, interiérové dveře, obklady ani dlažby, aby si nový majitel mohl interiér dokončit dle vlastního vkusu a rozpočtu.
Nemovitost je kompletně napojena na inženýrské sítě (voda, elektřina, ČOV) a aktuálně se nachází ve fázi těsně před kolaudací.
Financování hypotečním úvěrem je připraveno. Hypoteční poradce nemovitost osobně navštívil, je detailně seznámen s projektovou dokumentací a má k dispozici veškeré podklady potřebné pro zpracování odhadu. Je připraven aktivně jednat s bankami s cílem zajistit pro Vás co nejvýhodnější úrokovou sazbu i optimální nastavení splátek.
Podrobnější informace naleznete na Facebookové stránce Rodinné domy Rakovnicko - Džbán. V průběhu příštího týdne budou k dispozici také vlastní webové stránky projektu.
Pomocí naší hypoteční kalkulačky si můžete udělat orientační představu o výši měsíčních splátek hypotéky. O vše ostatní se pak postaráme my ve spolupráci s našimi obchodními partnery.
36 034 Kč
* Odhadovaná měsíční splátka vychází z výše úvěru Kč s pevnou úrokovou sazbou % po celou dobu trvání úvěru.
Uživatel serveru RealityMIX.cz (dále jen „Server“) dostupného na internetové adrese (URL) https://www.realitymix.cz, který provozuje společnost DALTEN media s.r.o., se sídlem Na Harfě 916/9a, Praha 9, 190 00, IČO: 271 35 306 (dále jen „Správce“) jako provozovateli tohoto Serveru uděluje svůj výslovný souhlas v souladu s ustanovením § 5 zákona č. 101/2000 Sb. O ochraně osobních údajů a o změně některých zákonů, v platném znění (dále jen „zákon o ochraně osobních údajů“), se zpracováním uživatelem poskytnutých osobních údajů a dalších dat.
Uživatel poskytuje Správci osobní údaje v rozsahu: jméno, příjmení, e-mailová adresa, telefonický kontakt a další data, a to z důvodu projeveného zájmu o nemovitost, kde prostřednictvím služby Serveru Správce osloví Uživatel inzerenta uvedeného v detailu
nemovitosti - Bidli reality, a.s. (IČ 06790763) se zájmem o jeho služby. Tato společnost je součástí seskupení/sítě/franšízového modelu realitních kanceláří, jejich seznam můžete zobrazit kliknutím na tento odkaz.
Hypocentrum modré pyramidy - Praha (IČ ) , Hypocentrum modré pyramidy - Brno (IČ ) , Hypocentrum Modré pyramidy - Hradec Králové (IČ ) , Hypocentrum Modré pyramidy - České Budějovice (IČ ) , Hypocentrum Modré pyramidy - Pardubice (IČ ) , Hypocentrum Modré pyramidy - Plzeň (IČ ) , Hypocentrum Modré pyramidy - Ústí nad Labem (IČ ) , Hypocentrum Modré pyramidy - Ostrava (IČ ) , Hypocentrum Modré pyramidy - Olomouc (IČ ) , Bidli reality, a.s. (IČ 06790763)
Uživatel tyto osobní údaje poskytuje dobrovolně a bere na vědomí, že součástí služeb Správce, které Správce Uživateli poskytuje, je vyhledání všech Uživateli vyhovujících (dle parametrů - cena, typ nemovitosti, lokalita atd.) nemovitostí. Správce za tímto účelem provozuje aplikace Hlídací pes a newsletter. Tyto služby je možné z každého zaslaného emailu odhlásit. Souhlas se zpracováním osobních údajů Uživatel poskytuje Správci na dobu neurčitou s tím, že svůj udělený souhlas může Uživatel kdykoliv na drese správce info@realitymix.cz odvolat. Správce garantuje Uživateli i další práva uvedené v ustanovení §11 a §21 zákoba č. 101/200 Sb. Ve znění pozdějších předpisů.
Více informací o zpracování údajů získáte zde (realitymix.cz/zasady-ochrany-osobnich-udaju)