Prodej rodinného domu 5+kk, 282 m2 ,pozemek 1607 m2,Srubec u Českých Budějovic
Prodej rodinného domu 5+kk, 282 m2, Srubec u Českých Budějovic
Nabízíme k prodeji nadstandardní rodinný dům o užitné ploše 282 m2 který se nachází v žádané lokalitě Srubec, pouhých pár minut od centra Českých Budějovic. Nemovitost stojí na pozemku o rozloze 1 607 m2 a díky umístění v klidné slepé ulici u lesa poskytuje naprosté soukromí a pohodové rodinné bydlení.
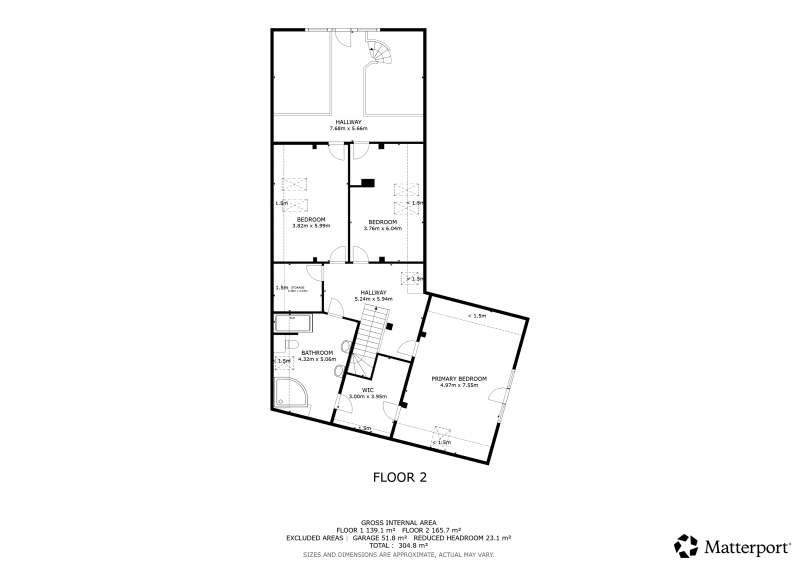
Dům byl postaven s důrazem na kvalitu a moderní technologie. V přízemí se nachází velkorysý obývací pokoj s krbem a vysokým stropem, kuchyně vyrobená na míru se špičkovými spotřebiči, samostatná pracovna a koupelna s technickým zázemím. V podkroví najdete ložnici s prostornou šatnou, dva dětské pokoje a druhou koupelnu. Celý dům je vytápěn pomocí geotermálního čerpadla se dvěma vrty, nechybí podlahové vytápění a centrální vysavač.
Součástí domu je také prostorná garáž pro dvě auta, před kterou lze pohodlně zaparkovat další tři vozy.
Na zahradě o velikosti 1 395 m2 vás potěší krytý bazén s geotermálním ohřevem, okrasné jezírko, zahradní domek s posezením a grilem, robotická sekačka i velká nádrž na dešťovou vodu s rozvodem po celé zahradě.
Srubec patří mezi nejvyhledávanější obce v okolí Českých Budějovic. Najdete zde mateřskou a základní školu, obchod, restaurace a výborné dopravní spojení MHD. Lokalita je ideální pro rodiny s dětmi i pro ty, kdo chtějí spojit pohodlné bydlení s blízkostí přírody a zároveň mít rychlý nájezd na dálnici směrem na Prahu nebo Rakousko.
Pokud potřebujete financování, rádi vám zdarma připravíme nezávazný propočet a pomůžeme vybrat nejvýhodnější hypoteční řešení na míru.
Pomocí naší hypoteční kalkulačky si můžete udělat orientační představu o výši měsíčních splátek hypotéky. O vše ostatní se pak postaráme my ve spolupráci s našimi obchodními partnery.
75 711 Kč
* Odhadovaná měsíční splátka vychází z výše úvěru Kč s pevnou úrokovou sazbou % po celou dobu trvání úvěru.
Uživatel serveru RealityMIX.cz (dále jen „Server“) dostupného na internetové adrese (URL) https://www.realitymix.cz, který provozuje společnost DALTEN media s.r.o., se sídlem Na Harfě 916/9a, Praha 9, 190 00, IČO: 271 35 306 (dále jen „Správce“) jako provozovateli tohoto Serveru uděluje svůj výslovný souhlas v souladu s ustanovením § 5 zákona č. 101/2000 Sb. O ochraně osobních údajů a o změně některých zákonů, v platném znění (dále jen „zákon o ochraně osobních údajů“), se zpracováním uživatelem poskytnutých osobních údajů a dalších dat.
Uživatel poskytuje Správci osobní údaje v rozsahu: jméno, příjmení, e-mailová adresa, telefonický kontakt a další data, a to z důvodu projeveného zájmu o nemovitost, kde prostřednictvím služby Serveru Správce osloví Uživatel inzerenta uvedeného v detailu
nemovitosti - Bidli reality, a.s. (IČ 06790763) se zájmem o jeho služby. Tato společnost je součástí seskupení/sítě/franšízového modelu realitních kanceláří, jejich seznam můžete zobrazit kliknutím na tento odkaz.
Hypocentrum modré pyramidy - Praha (IČ ) , Hypocentrum modré pyramidy - Brno (IČ ) , Hypocentrum Modré pyramidy - Hradec Králové (IČ ) , Hypocentrum Modré pyramidy - České Budějovice (IČ ) , Hypocentrum Modré pyramidy - Pardubice (IČ ) , Hypocentrum Modré pyramidy - Plzeň (IČ ) , Hypocentrum Modré pyramidy - Ústí nad Labem (IČ ) , Hypocentrum Modré pyramidy - Ostrava (IČ ) , Hypocentrum Modré pyramidy - Olomouc (IČ ) , Bidli reality, a.s. (IČ 06790763)
Uživatel tyto osobní údaje poskytuje dobrovolně a bere na vědomí, že součástí služeb Správce, které Správce Uživateli poskytuje, je vyhledání všech Uživateli vyhovujících (dle parametrů - cena, typ nemovitosti, lokalita atd.) nemovitostí. Správce za tímto účelem provozuje aplikace Hlídací pes a newsletter. Tyto služby je možné z každého zaslaného emailu odhlásit. Souhlas se zpracováním osobních údajů Uživatel poskytuje Správci na dobu neurčitou s tím, že svůj udělený souhlas může Uživatel kdykoliv na drese správce info@realitymix.cz odvolat. Správce garantuje Uživateli i další práva uvedené v ustanovení §11 a §21 zákoba č. 101/200 Sb. Ve znění pozdějších předpisů.
Více informací o zpracování údajů získáte zde (realitymix.cz/zasady-ochrany-osobnich-udaju)