Bydlíte v bytě a toužíte po domě se zahradou a bohužel si to nemůžete dovolit? Či jste vášnivý zahrádkáři a nemáte kde uplatnit svoje pěstitelské umění? Mám pro vás řešení.
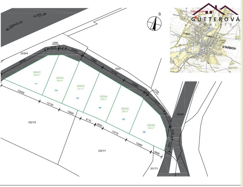
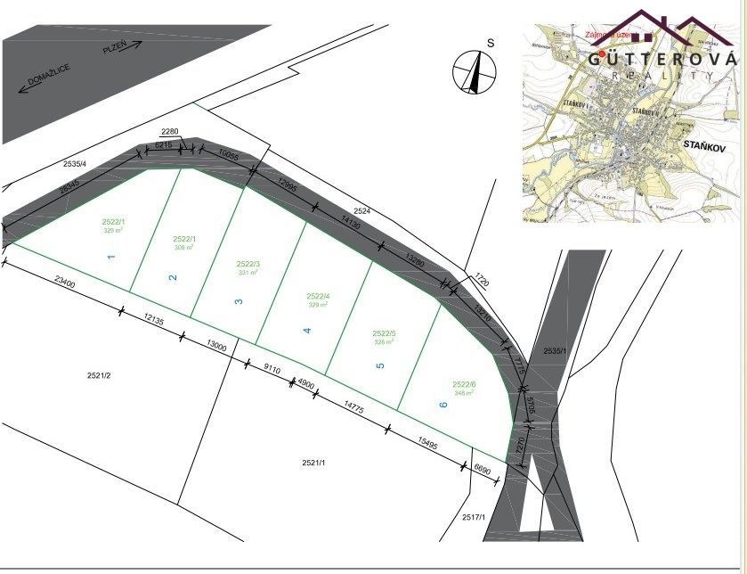
Dovolte mi Vám nabídnout oplocený pozemek určený k rekreaci v zahrádkářské kolonii obce Staňkova.
Zahrada č.3 o výměře 331 m2 je oplocená, má samostatný vjezd zajištěný vraty.
Na pozemku lze umístit karavan, mobilní dům, montovanou chatku, avšak bez základů. V současnosti není zavedena elektřina, ani voda - v řešení.
Můžete si zde vypěstovat svou vlastní zeleninu nebo si jednoduše odpočinout s rodinou a domácími mazlíčky od každodenního shonu.
Zahrada je dobře dostupná z města či silničního obchvatu města Staňkova, kde naleznete rozsáhlou občanskou vybavenost.
Uživatel serveru RealityMIX.cz (dále jen „Server“) dostupného na internetové adrese (URL) https://www.realitymix.cz, který provozuje společnost DALTEN media s.r.o., se sídlem Na Harfě 916/9a, Praha 9, 190 00, IČO: 271 35 306 (dále jen „Správce“) jako provozovateli tohoto Serveru uděluje svůj výslovný souhlas v souladu s ustanovením § 5 zákona č. 101/2000 Sb. O ochraně osobních údajů a o změně některých zákonů, v platném znění (dále jen „zákon o ochraně osobních údajů“), se zpracováním uživatelem poskytnutých osobních údajů a dalších dat.
Uživatel poskytuje Správci osobní údaje v rozsahu: jméno, příjmení, e-mailová adresa, telefonický kontakt a další data, a to z důvodu projeveného zájmu o nemovitost, kde prostřednictvím služby Serveru Správce osloví Uživatel inzerenta uvedeného v detailu
nemovitosti - Iveta Gütterová (IČ 01113119) se zájmem o jeho služby.
Uživatel tyto osobní údaje poskytuje dobrovolně a bere na vědomí, že součástí služeb Správce, které Správce Uživateli poskytuje, je vyhledání všech Uživateli vyhovujících (dle parametrů - cena, typ nemovitosti, lokalita atd.) nemovitostí. Správce za tímto účelem provozuje aplikace Hlídací pes a newsletter. Tyto služby je možné z každého zaslaného emailu odhlásit. Souhlas se zpracováním osobních údajů Uživatel poskytuje Správci na dobu neurčitou s tím, že svůj udělený souhlas může Uživatel kdykoliv na drese správce info@realitymix.cz odvolat. Správce garantuje Uživateli i další práva uvedené v ustanovení §11 a §21 zákoba č. 101/200 Sb. Ve znění pozdějších předpisů.
Více informací o zpracování údajů získáte zde (realitymix.cz/zasady-ochrany-osobnich-udaju)