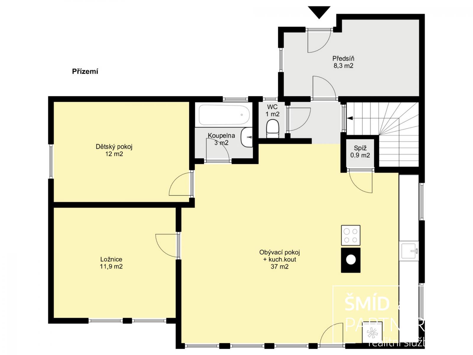
nabízíme k prodeji rodinný dům/chalupu, o užitné ploše 76 m2 s prostorným sklepem 57 m2 a pozemkem o výměře 801 m2 v obci Smilovice, okres Kutná Hora. Dispozice 3+kk nabízí pohodlné bydlení a sklepní prostory umožňují rozšíření o další obytné místnosti.
Dům je vytápěn kotlem na tuhá paliva, voda je čerpána z vydatné studny a odpad je sveden do jímky. Pro úsporný provoz slouží také nová nádrž na dešťovou vodu. K prodeji bude připraveno povolení k připojení na obecní vodovod. Na pozemku jsou již osazeny sloupky pro budoucí jihovýchodní terasu.
Pozemek o velikosti 802 m2 poskytuje dostatek prostoru pro zahradu, relaxaci i další případné úpravy. Dům je vhodný jak k trvalému bydlení, tak i k rekreaci díky klidnému prostředí a dobré dostupnosti služeb v nedalekých Uhlířských Janovicích, Sázavě, Ratajích nad Sázavou, nebo třeba Kutné Hoře.
K nemovitosti lze dokoupit také navazující stavební pozemek o velikosti přes 700 m2 (1 450 000 Kč), nebo starší rodinný dům k rekonstrukci sousedící z druhé strany (2 300 000 Kč).
Nemovitost lze financovat hypotečním úvěrem, s nímž vám rádi pomůžeme.
Uvedené m2 jsou pouze orientační.
Pokud Vás nabídka zaujala, neváhejte mě kontaktovat.
Pomocí naší hypoteční kalkulačky si můžete udělat orientační představu o výši měsíčních splátek hypotéky. O vše ostatní se pak postaráme my ve spolupráci s našimi obchodními partnery.
11 741 Kč
* Odhadovaná měsíční splátka vychází z výše úvěru Kč s pevnou úrokovou sazbou % po celou dobu trvání úvěru.
Uživatel serveru RealityMIX.cz (dále jen „Server“) dostupného na internetové adrese (URL) https://www.realitymix.cz, který provozuje společnost DALTEN media s.r.o., se sídlem Na Harfě 916/9a, Praha 9, 190 00, IČO: 271 35 306 (dále jen „Správce“) jako provozovateli tohoto Serveru uděluje svůj výslovný souhlas v souladu s ustanovením § 5 zákona č. 101/2000 Sb. O ochraně osobních údajů a o změně některých zákonů, v platném znění (dále jen „zákon o ochraně osobních údajů“), se zpracováním uživatelem poskytnutých osobních údajů a dalších dat.
Uživatel poskytuje Správci osobní údaje v rozsahu: jméno, příjmení, e-mailová adresa, telefonický kontakt a další data, a to z důvodu projeveného zájmu o nemovitost, kde prostřednictvím služby Serveru Správce osloví Uživatel inzerenta uvedeného v detailu
nemovitosti - ŠMÍD & PARTNERS (IČ 24122955) se zájmem o jeho služby.
Uživatel tyto osobní údaje poskytuje dobrovolně a bere na vědomí, že součástí služeb Správce, které Správce Uživateli poskytuje, je vyhledání všech Uživateli vyhovujících (dle parametrů - cena, typ nemovitosti, lokalita atd.) nemovitostí. Správce za tímto účelem provozuje aplikace Hlídací pes a newsletter. Tyto služby je možné z každého zaslaného emailu odhlásit. Souhlas se zpracováním osobních údajů Uživatel poskytuje Správci na dobu neurčitou s tím, že svůj udělený souhlas může Uživatel kdykoliv na drese správce info@realitymix.cz odvolat. Správce garantuje Uživateli i další práva uvedené v ustanovení §11 a §21 zákoba č. 101/200 Sb. Ve znění pozdějších předpisů.
Více informací o zpracování údajů získáte zde (realitymix.cz/zasady-ochrany-osobnich-udaju)