Hledáte připravený developerský projekt, do kterého můžete rovnou vstoupit? Nabízíme unikátní příležitost v atraktivní lokalitě Středočeského kraje – kompletní rezidenční projekt s platným stavebním povolením, hotovou projektovou dokumentací a vyřešenou infrastrukturou.
Co nabízíme
Na severozápadním okraji obce Starý Kolín (okres Kolín) vzniká nová obytná lokalita „Nová Náves" – promyšlený soubor rodinných dvojdomů zasazený do klidného venkovského prostředí s vynikající dostupností.
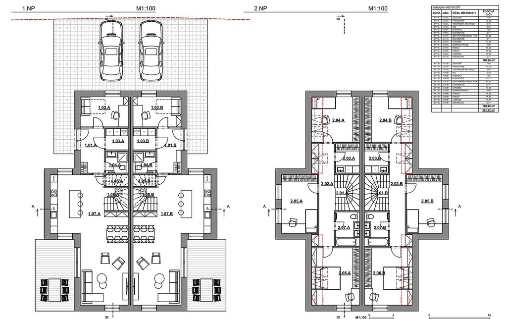
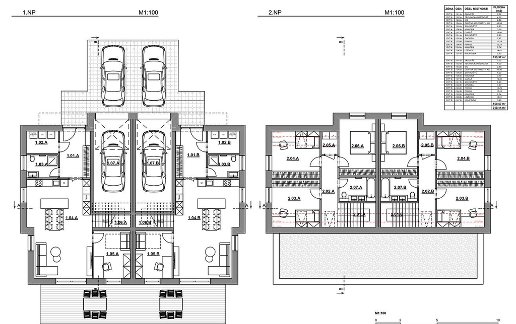
Projekt zahrnuje více než dva hektary rovinatých pozemků určených územním plánem k zastavění. Navrženo je 14 rodinných domů dvou typů, každý se dvěma samostatnými bytovými jednotkami 5+kk – dohromady téměř třicet moderních bytů pro mladé rodiny. Architektonický návrh od renomovaného ateliéru D+Architekti zajišťuje jednotný, ale rozmanitý charakter zástavby bez monotónního opakování.
Součástí projektu je kompletní řešení technické infrastruktury – kanalizace, vodovod, elektro včetně trafostanice, veřejné osvětlení, optika, komunikace i veřejná zeleň.
Dvě varianty spolupráce
Prodej projektu – Převezmete pozemky s platným stavebním povolením, kompletní projektovou dokumentací a připravenou infrastrukturou. Můžete okamžitě zahájit výstavbu nebo projekt dále rozvíjet podle vlastní strategie.
Realizace na klíč – Nabízíme také možnost kompletní výstavby celého projektu včetně infrastruktury a následného prodeje jednotlivých bytových jednotek. Detailní kalkulace a harmonogram k dispozici při osobním jednání.
Proč právě tento projekt
Vlakový koridor Praha–Pardubice na dosah pěšky. Klidná obec s kompletní občanskou vybaveností jen pár kilometrů od Kolína. Rostoucí poptávka po kvalitním bydlení v zázemí středních Čech. Projekt je architektonicky dotažený, úředně povolený a připravený k realizaci – ušetříte roky příprav.
Vizualizace, studie a podrobné podklady poskytneme při osobní schůzce.
Pomocí naší hypoteční kalkulačky si můžete udělat orientační představu o výši měsíčních splátek hypotéky. O vše ostatní se pak postaráme my ve spolupráci s našimi obchodními partnery.
197 276 Kč
* Odhadovaná měsíční splátka vychází z výše úvěru Kč s pevnou úrokovou sazbou % po celou dobu trvání úvěru.
Uživatel serveru RealityMIX.cz (dále jen „Server“) dostupného na internetové adrese (URL) https://www.realitymix.cz, který provozuje společnost DALTEN media s.r.o., se sídlem Na Harfě 916/9a, Praha 9, 190 00, IČO: 271 35 306 (dále jen „Správce“) jako provozovateli tohoto Serveru uděluje svůj výslovný souhlas v souladu s ustanovením § 5 zákona č. 101/2000 Sb. O ochraně osobních údajů a o změně některých zákonů, v platném znění (dále jen „zákon o ochraně osobních údajů“), se zpracováním uživatelem poskytnutých osobních údajů a dalších dat.
Uživatel poskytuje Správci osobní údaje v rozsahu: jméno, příjmení, e-mailová adresa, telefonický kontakt a další data, a to z důvodu projeveného zájmu o nemovitost, kde prostřednictvím služby Serveru Správce osloví Uživatel inzerenta uvedeného v detailu
nemovitosti - RK Kotek s.r.o. (IČ 06101348) se zájmem o jeho služby.
Uživatel tyto osobní údaje poskytuje dobrovolně a bere na vědomí, že součástí služeb Správce, které Správce Uživateli poskytuje, je vyhledání všech Uživateli vyhovujících (dle parametrů - cena, typ nemovitosti, lokalita atd.) nemovitostí. Správce za tímto účelem provozuje aplikace Hlídací pes a newsletter. Tyto služby je možné z každého zaslaného emailu odhlásit. Souhlas se zpracováním osobních údajů Uživatel poskytuje Správci na dobu neurčitou s tím, že svůj udělený souhlas může Uživatel kdykoliv na drese správce info@realitymix.cz odvolat. Správce garantuje Uživateli i další práva uvedené v ustanovení §11 a §21 zákoba č. 101/200 Sb. Ve znění pozdějších předpisů.
Více informací o zpracování údajů získáte zde (realitymix.cz/zasady-ochrany-osobnich-udaju)