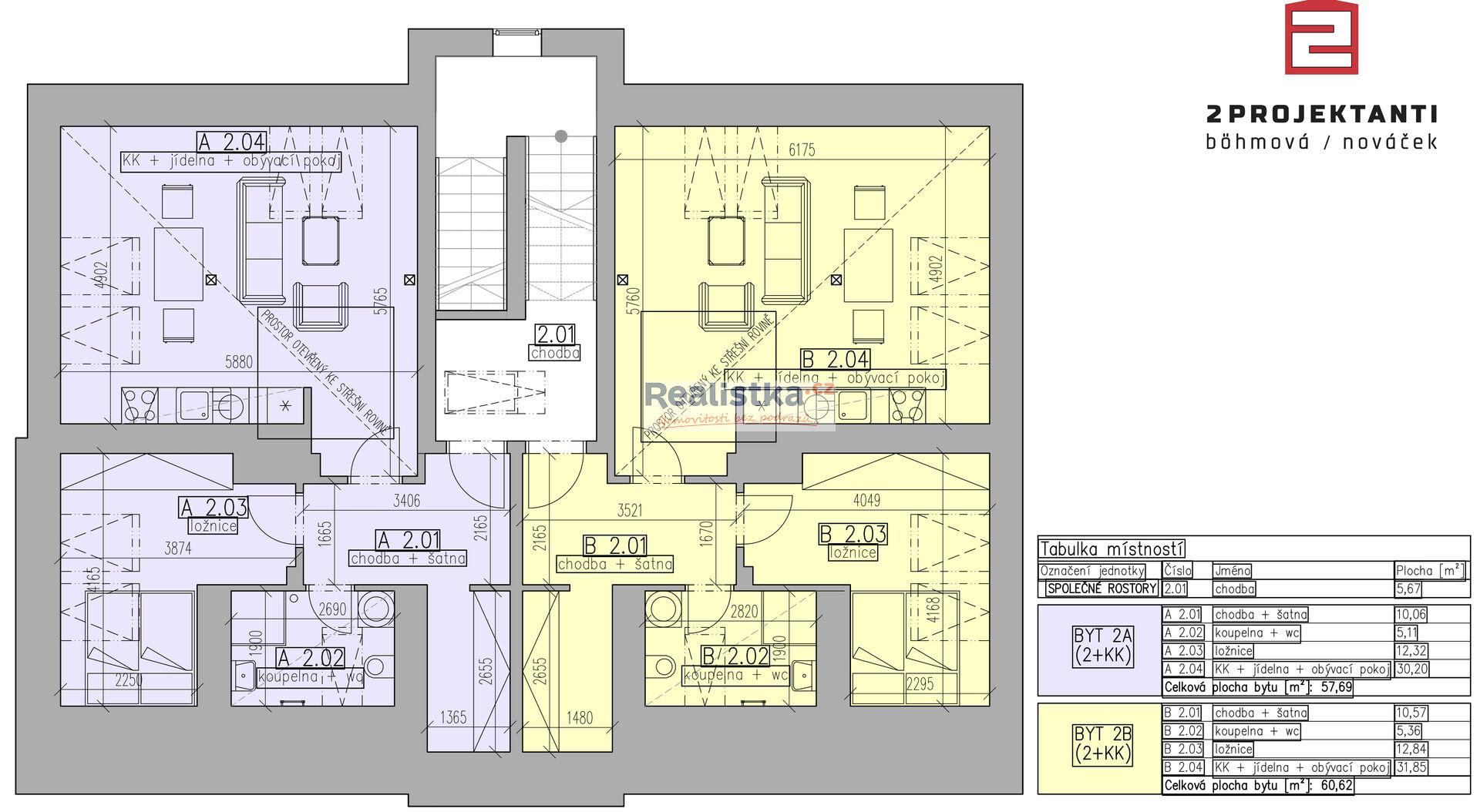
Pronájem bytu 2+kk Starý Plzenec Nabízíme k pronájmu podkrovní byt 2+kk o velikosti 57,7m2. Nachází se ve druhém patře bytového domu, který zahrnuje 5 bytů. Byt má novou kuchyňskou linku sestavenou na míru z katalogu Ikea. Linka je vybavená horkovzdušnou troubou, indukční varnou deskou a vestavěnou myčkou nádobí.
Prosvětlení bytu zajišťuje sedm velkých střešních oken Velux s termoizolačními trojskly. Byt má jako nadstandardní výbavu klimatizaci v obou obytných místnostech. Dveře jsou od českého výrobce Solo Sušice/Solodoor, plovoucí podlahy jsou od německé firmy Egger, v koupelně je vinylová podlaha Wineo Selection. Atmosféru bytu dotváří částečně odkrytá konstrukce původního krovu domu. Veškeré nosné prvky krovu a podlah však byly zesíleny. Mimořádný důraz byl kladen na zvýšení akustického komfortu. Byt je po úplné rekonstrukci. Jedná se o cihlový dům, který prošel celkovou rekonstrukcí. K bytu náleží možnost užívat terasu na zahradě a část sklepních prostor v domě.
Parkování v objektu je možné za příplatek 1000,- Kč (po dohodě možné i dobíjecí místo pro EM). Nájem je 14000,-Kč měsíčně + 3 970,- voda, topení, energie, poplatky a správa domu. Celkový nájem 17 970,-Kč
Vratná kauce je 25 000,- Kč.
Byt je k dispozici od března 2026.
Prohlídky po domluvě.
Cena:
14 000 Kč / (za měsíc)
Poznámka:
Cena včetně záloh na topení, energie, vodné, správu domu bez parkování 17 970 Kč (2 osoby)
Uživatel serveru RealityMIX.cz (dále jen „Server“) dostupného na internetové adrese (URL) https://www.realitymix.cz, který provozuje společnost DALTEN media s.r.o., se sídlem Na Harfě 916/9a, Praha 9, 190 00, IČO: 271 35 306 (dále jen „Správce“) jako provozovateli tohoto Serveru uděluje svůj výslovný souhlas v souladu s ustanovením § 5 zákona č. 101/2000 Sb. O ochraně osobních údajů a o změně některých zákonů, v platném znění (dále jen „zákon o ochraně osobních údajů“), se zpracováním uživatelem poskytnutých osobních údajů a dalších dat.
Uživatel poskytuje Správci osobní údaje v rozsahu: jméno, příjmení, e-mailová adresa, telefonický kontakt a další data, a to z důvodu projeveného zájmu o nemovitost, kde prostřednictvím služby Serveru Správce osloví Uživatel inzerenta uvedeného v detailu
nemovitosti - REALISTKA CZ s.r.o. (IČ 05719224) se zájmem o jeho služby.
Uživatel tyto osobní údaje poskytuje dobrovolně a bere na vědomí, že součástí služeb Správce, které Správce Uživateli poskytuje, je vyhledání všech Uživateli vyhovujících (dle parametrů - cena, typ nemovitosti, lokalita atd.) nemovitostí. Správce za tímto účelem provozuje aplikace Hlídací pes a newsletter. Tyto služby je možné z každého zaslaného emailu odhlásit. Souhlas se zpracováním osobních údajů Uživatel poskytuje Správci na dobu neurčitou s tím, že svůj udělený souhlas může Uživatel kdykoliv na drese správce info@realitymix.cz odvolat. Správce garantuje Uživateli i další práva uvedené v ustanovení §11 a §21 zákoba č. 101/200 Sb. Ve znění pozdějších předpisů.
Více informací o zpracování údajů získáte zde (realitymix.cz/zasady-ochrany-osobnich-udaju)