Hledáte místo, kde může pohodlně bydlet celá rodina, podnikat a zároveň investovat do budoucna? Právě jste ho našli.
V Hřibsku u Stěžer nabízím ke koupi prostorný venkovský dům připravený k okamžitému nastěhování. Nabízí zázemí pro podnikání i obrovský potenciál dalšího rozšíření.
Strategická poloha:
10 minut do centra Hradce Králové
5 minut od nájezdu na D11
Bydlení a podnikání:
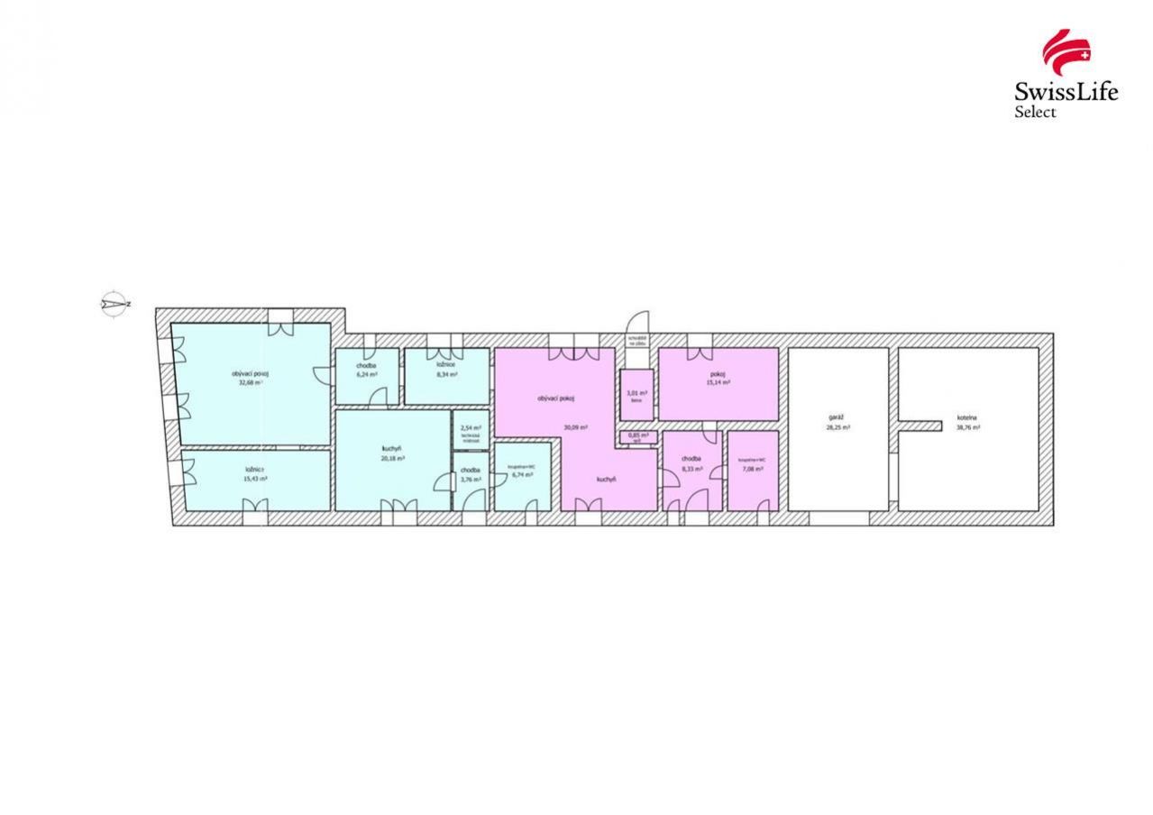
Dvě bytové jednotky 3+1 (72 m) a 2+1 (86 m) s vlastním vstupem, elektroměrem a vodoměrem jsou aktuálně propojené do prostorné dispozice 5+2. Jednoduchou úpravou je lze opět oddělit.
Představte si místo, kde můžete zpomalit, užít si klid venkova a mít dostatek prostoru pro rodinu, odpočinek i své plány. Ranní káva nebo večerní grilování s přáteli pod pergolou tohle může být váš nový domov.
zastřešená pergola (30 m)
prostorná dílna (28 m)
technické zázemí s kotlem (38 m)
upravený pozemek (988 m)
skleník a zahradní domek pro děti
prostor pro chov drobných domácích zvířat
Místo, kde můžete bydlet, tvořit i odpočívat.
Investiční příležitost:
Samostatný vstup z opačné strany domu nabízí možnost vybudování dalších dvou bytových jednotek v rozsáhlém podkroví o výměře téměř 300 m. Prostor může sloužit jak pro vícegenerační bydlení, tak jako zajímavá investiční příležitost k pronájmu.
Dům je napojen na městský vodovod i elektřinu, plynová přípojka je aktuálně zaslepena. Vytápění zajišťuje kotel na tuhá paliva (dřevo) a ekologický provoz podporuje vlastní čistírna odpadních vod. Pozemek nabízí dostatek prostoru pro relaxaci, okrasnou i užitkovou zahradu.
Nemovitosti, které spojují rodinné bydlení, podnikání i investiční potenciál na jednom místě, se na trhu objevují jen zřídka. Hřibsko je jednou z nich.
Neváhejte a domluvte si termín prohlídky, kde se na Vás bude těšit makléřka Kateřina Sádovská.
Pomocí naší hypoteční kalkulačky si můžete udělat orientační představu o výši měsíčních splátek hypotéky. O vše ostatní se pak postaráme my ve spolupráci s našimi obchodními partnery.
38 058 Kč
* Odhadovaná měsíční splátka vychází z výše úvěru Kč s pevnou úrokovou sazbou % po celou dobu trvání úvěru.
Uživatel serveru RealityMIX.cz (dále jen „Server“) dostupného na internetové adrese (URL) https://www.realitymix.cz, který provozuje společnost DALTEN media s.r.o., se sídlem Na Harfě 916/9a, Praha 9, 190 00, IČO: 271 35 306 (dále jen „Správce“) jako provozovateli tohoto Serveru uděluje svůj výslovný souhlas v souladu s ustanovením § 5 zákona č. 101/2000 Sb. O ochraně osobních údajů a o změně některých zákonů, v platném znění (dále jen „zákon o ochraně osobních údajů“), se zpracováním uživatelem poskytnutých osobních údajů a dalších dat.
Uživatel poskytuje Správci osobní údaje v rozsahu: jméno, příjmení, e-mailová adresa, telefonický kontakt a další data, a to z důvodu projeveného zájmu o nemovitost, kde prostřednictvím služby Serveru Správce osloví Uživatel inzerenta uvedeného v detailu
nemovitosti - Swiss Life Select Reality (IČ 24260444) se zájmem o jeho služby. Tato společnost je součástí seskupení/sítě/franšízového modelu realitních kanceláří, jejich seznam můžete zobrazit kliknutím na tento odkaz.
Fincentrum a.s. (IČ 24260444) , Swiss Life Select Reality (IČ 24260444)
Uživatel tyto osobní údaje poskytuje dobrovolně a bere na vědomí, že součástí služeb Správce, které Správce Uživateli poskytuje, je vyhledání všech Uživateli vyhovujících (dle parametrů - cena, typ nemovitosti, lokalita atd.) nemovitostí. Správce za tímto účelem provozuje aplikace Hlídací pes a newsletter. Tyto služby je možné z každého zaslaného emailu odhlásit. Souhlas se zpracováním osobních údajů Uživatel poskytuje Správci na dobu neurčitou s tím, že svůj udělený souhlas může Uživatel kdykoliv na drese správce info@realitymix.cz odvolat. Správce garantuje Uživateli i další práva uvedené v ustanovení §11 a §21 zákoba č. 101/200 Sb. Ve znění pozdějších předpisů.
Více informací o zpracování údajů získáte zde (realitymix.cz/zasady-ochrany-osobnich-udaju)