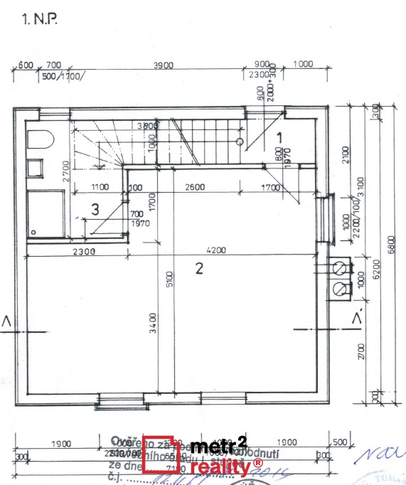
„Zažijte moře léta“, tak zní motto holiday parku Vranovská pláž. Můžeme směle dodat – „nejen léta“. Nabízíme pozemek pro novostavbu rekreační chaty v katastrálním území Štítary na Moravě v těsné blízkosti Vranovské přehrady, nazývané Moravský Jadran, situované nedaleko Vranova nad Dyjí, region Jižní Morava. Jedná se o prodej souboru nemovitostí, a to pozemku o celkové výměře 299 m2 a podílu o velikosti 1/18 na přístupové komunikaci. Jde o zcela výjimečnou nabídku. Pozemky v této oblasti vlastní zejména Lesy ČR, Povodí Moravy či soukromí vlastníci (ty se zpravidla dědí z generace na generaci, prodávají se však zřídkakdy). Pozemek je zasíťovaný (elektro přípojka, obecní vodovod i kanalizace). V ceně pozemku je projektová dokumentace a platné stavební povolení. Chata může sloužit k rodinné rekreaci nového vlastníka či jako skvělá investiční příležitost k pronájmu. Na pozemku je povolena samostatně stojící, částečně podsklepená stavba s jedním nadzemním podlažím a obytným podkrovím. Stavba bude cihelného zdiva, se dvěma monolitickými stropy a sedlovou střechou. Jako střešní krytina bude použita pálená střešní taška Brněnka, která je pro tento region víc než typická. Stavba rekreačního objektu bude mít půdorysné rozměry 7,10 x 6,80 m, výška stavby po hřeben zastřešení 7,20 m od 0,000. Zastavěná plocha chaty bude do 50 m2. Třicet km dlouhá jihomoravská nádrž s čistou a teplou vodou se nachází v překrásném údolí pod hrdým barokním zámkem Vranovem nad Dyjí. Poskytuje výborné podmínky pro koupání a vodní sporty. Kvalita vody ve Vranovské přehradě patří k těm nejlepším v České republice. Mezi rekreační služby Vranovské přehrady patří například Lodní přeprava, kterou zajišťuje loď Viktorie s 5 přístavišti po délce Vranovské přehrady. Další atrakcí je turistický vláček, který vozí pravidelně turisty z hráze přehrady do města. Milovníci turistiky a cykloturistiky mohou využít značených tras Národním parkem Podyjí, který se rozkládá až na rakouské území. K návštěvě lákají také blízké hrady Vranov, Bítov nebo Cornštejn. Na Vranovské přehradě naleznete i půjčovnu lodiček, vodních šlapadel a dalších sportovních potřeb a řadu sezónních ubytovacích a stravovacích zařízení. Výborné podmínky jsou zde také pro milovníky jachtingu či windsurfingu. Cena je konečná včetně zprostředkovatelské odměny. Pro podrobné informace prosím kontaktujte makléře RK.
Pomocí naší hypoteční kalkulačky si můžete udělat orientační představu o výši měsíčních splátek hypotéky. O vše ostatní se pak postaráme my ve spolupráci s našimi obchodními partnery.
12 106 Kč
* Odhadovaná měsíční splátka vychází z výše úvěru Kč s pevnou úrokovou sazbou % po celou dobu trvání úvěru.
Uživatel serveru RealityMIX.cz (dále jen „Server“) dostupného na internetové adrese (URL) https://www.realitymix.cz, který provozuje společnost DALTEN media s.r.o., se sídlem Na Harfě 916/9a, Praha 9, 190 00, IČO: 271 35 306 (dále jen „Správce“) jako provozovateli tohoto Serveru uděluje svůj výslovný souhlas v souladu s ustanovením § 5 zákona č. 101/2000 Sb. O ochraně osobních údajů a o změně některých zákonů, v platném znění (dále jen „zákon o ochraně osobních údajů“), se zpracováním uživatelem poskytnutých osobních údajů a dalších dat.
Uživatel poskytuje Správci osobní údaje v rozsahu: jméno, příjmení, e-mailová adresa, telefonický kontakt a další data, a to z důvodu projeveného zájmu o nemovitost, kde prostřednictvím služby Serveru Správce osloví Uživatel inzerenta uvedeného v detailu
nemovitosti - metr2 reality s.r.o. (IČ 27779661) se zájmem o jeho služby.
Uživatel tyto osobní údaje poskytuje dobrovolně a bere na vědomí, že součástí služeb Správce, které Správce Uživateli poskytuje, je vyhledání všech Uživateli vyhovujících (dle parametrů - cena, typ nemovitosti, lokalita atd.) nemovitostí. Správce za tímto účelem provozuje aplikace Hlídací pes a newsletter. Tyto služby je možné z každého zaslaného emailu odhlásit. Souhlas se zpracováním osobních údajů Uživatel poskytuje Správci na dobu neurčitou s tím, že svůj udělený souhlas může Uživatel kdykoliv na drese správce info@realitymix.cz odvolat. Správce garantuje Uživateli i další práva uvedené v ustanovení §11 a §21 zákoba č. 101/200 Sb. Ve znění pozdějších předpisů.
Více informací o zpracování údajů získáte zde (realitymix.cz/zasady-ochrany-osobnich-udaju)