Nabízíme Vám exkluzivně velmi hezký byt v osobním vlastnictví o velikosti 2+1 a výměře 63 m2 v 8. podlaží osmipodlažního revitalizovaného panelového domu s novým výtahem v ulici Dukelská. Byt je po celkové rekonstrukci na které se ještě nyní pracuje. Nová podlahová krytina, kuchyňská linka také nová.
Bude brzo přidané foto kuchyně.
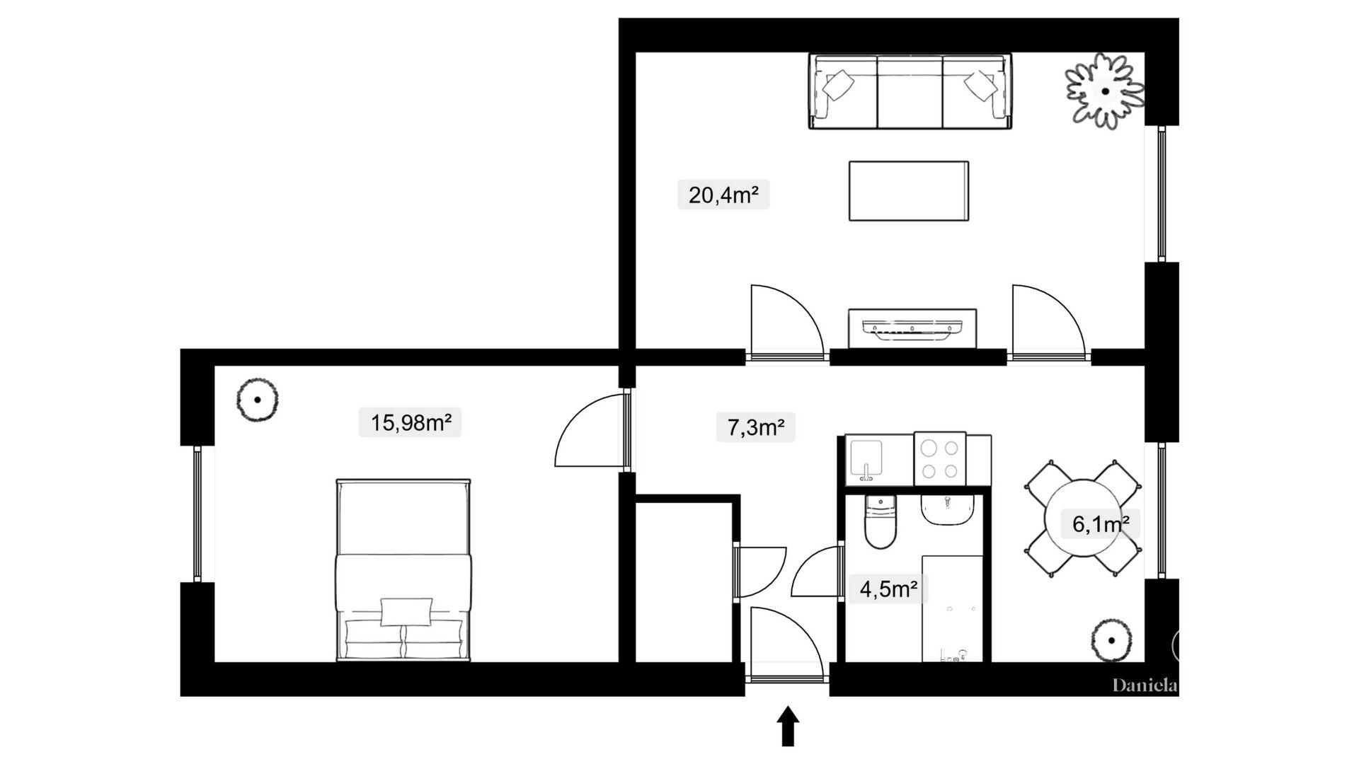
Byt se skládá z vstupní předsíně (3,8 m2), velkého obývacího pokoje (20,4 m2), prostorné ložnice (16 m2), a kuchyně s jídelní částí (16.2 m2), komory (2.11 m2) a koupelny (4,5 m2). Koupelna prošla rekonstrukcí v roce 2020 (zděné jádro, vana a WC dohromady). Dispozice je zřejmá z přiloženého půdorysu. Rozměry jsou uvedeny přibližně.
Měsíční nájem 11.500,-Kč plus záloha na vodu, teplo ( 4.000,-Kč) , elektřina bude přepsána na nového nájemníka. Při rychlém jednání možná sleva.
Jedná se o klidnou žádanou lokalitu s dostatkem parkovacích míst. Do centra se chůzí dostanete do 5 minut a za 3 minuty jste i v nákupním parku. Nedaleko od bytové jednotky se nachází škola i školka. Před domem hřiště a prolézačky pro děti. V blízkém okolí jsou také supermarkety BILLA a LIDL, specializované obchody, restaurace, lékařské ordinace a další občanská vybavenost.
Ve Strakonicích se dále nachází hrad, letní kino, plavecký stadion a pro milovníky sportu i Otavská cyklistická stezka nebo tenisové kurty.
Neváhejte mě kontaktovat ohledně prohlídky. Volné ihned.
Uživatel serveru RealityMIX.cz (dále jen „Server“) dostupného na internetové adrese (URL) https://www.realitymix.cz, který provozuje společnost DALTEN media s.r.o., se sídlem Na Harfě 916/9a, Praha 9, 190 00, IČO: 271 35 306 (dále jen „Správce“) jako provozovateli tohoto Serveru uděluje svůj výslovný souhlas v souladu s ustanovením § 5 zákona č. 101/2000 Sb. O ochraně osobních údajů a o změně některých zákonů, v platném znění (dále jen „zákon o ochraně osobních údajů“), se zpracováním uživatelem poskytnutých osobních údajů a dalších dat.
Uživatel poskytuje Správci osobní údaje v rozsahu: jméno, příjmení, e-mailová adresa, telefonický kontakt a další data, a to z důvodu projeveného zájmu o nemovitost, kde prostřednictvím služby Serveru Správce osloví Uživatel inzerenta uvedeného v detailu
nemovitosti - Daniela Zelenková Reality (IČ 66892104) se zájmem o jeho služby.
Uživatel tyto osobní údaje poskytuje dobrovolně a bere na vědomí, že součástí služeb Správce, které Správce Uživateli poskytuje, je vyhledání všech Uživateli vyhovujících (dle parametrů - cena, typ nemovitosti, lokalita atd.) nemovitostí. Správce za tímto účelem provozuje aplikace Hlídací pes a newsletter. Tyto služby je možné z každého zaslaného emailu odhlásit. Souhlas se zpracováním osobních údajů Uživatel poskytuje Správci na dobu neurčitou s tím, že svůj udělený souhlas může Uživatel kdykoliv na drese správce info@realitymix.cz odvolat. Správce garantuje Uživateli i další práva uvedené v ustanovení §11 a §21 zákoba č. 101/200 Sb. Ve znění pozdějších předpisů.
Více informací o zpracování údajů získáte zde (realitymix.cz/zasady-ochrany-osobnich-udaju)