Hledáte stylové a praktické bydlení bez nutnosti dalších investic?
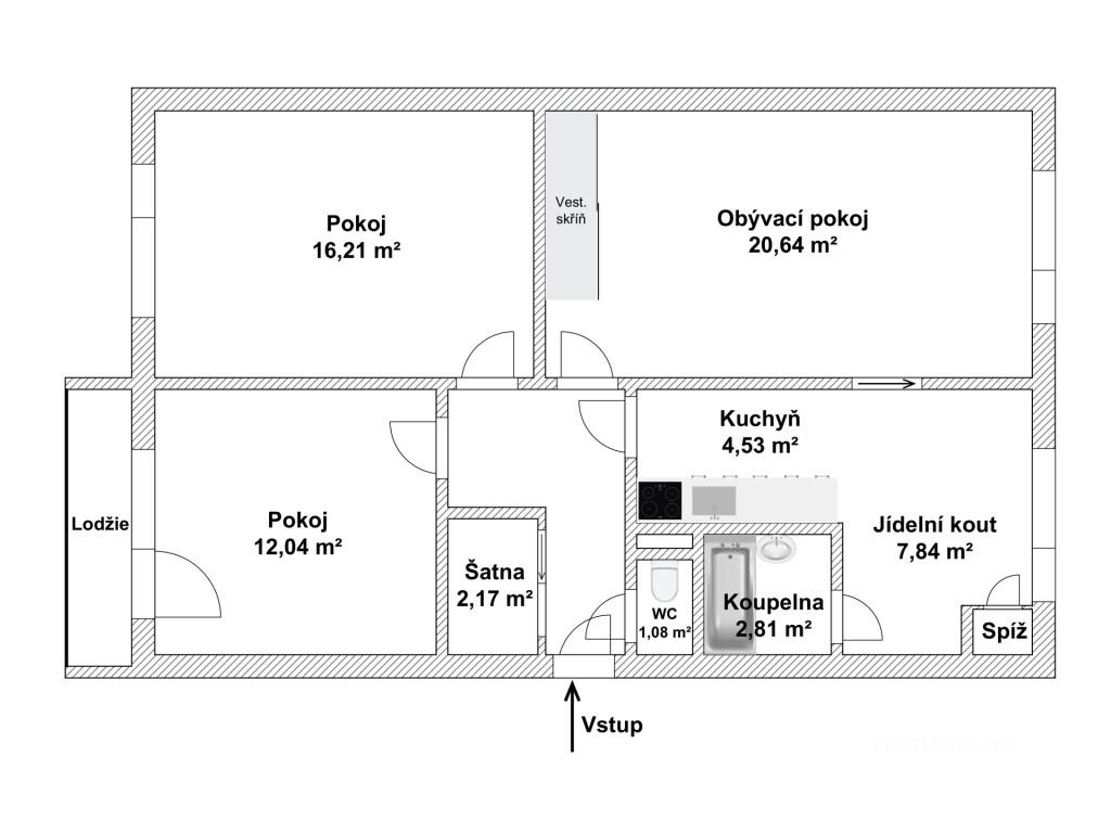
Tento byt o dispozici 3+1 a podlahové ploše 77 m² vás zaujme nejen rekonstrukcí, ale i promyšleným dispozičním řešením a skvělou polohou v přízemí.
Dispozice:
• Vstupní chodba s úložnými prostory (2,7 m²), které zvenku působí jako vestavěná skříň – ideální pro kabáty, boty i domácí potřeby
• Dva neprůchozí pokoje – vhodné jako ložnice, dětský pokoj nebo pracovna
• Obývací pokoj se vstupem jak z kuchyně, tak z chodby – možnost propojit i oddělit podle nálady
• Samostatná kuchyně s nadstandardní kuchyňskou linkou na míru
• Koupelna s vanou
• Samostatné WC
• Balkon – ideální pro ranní kávu nebo posezení na čerstvém vzduchu
Venkovní žaluzie zajišťují soukromí, tlumí hluk i prach z okolí. Byt má zděné jádro a je po kompletní rekonstrukci, stačí se jen nastěhovat. Přízemní umístění potěší jak rodiny s dětmi, tak seniory.
Byt se nachází v klidné části Strážnice s výbornou dostupností a plnou občanskou vybaveností v docházkové vzdálenosti.
Zaujala vás tato nabídka? Zavolejte a domluvte si prohlídku – tento byt vás přesvědčí naživo ještě víc!
Pomocí naší hypoteční kalkulačky si můžete udělat orientační představu o výši měsíčních splátek hypotéky. O vše ostatní se pak postaráme my ve spolupráci s našimi obchodními partnery.
17 207 Kč
* Odhadovaná měsíční splátka vychází z výše úvěru Kč s pevnou úrokovou sazbou % po celou dobu trvání úvěru.
Prodáváte nemovitost a potřebujete zjistit její reálnou hodnotu?
Uživatel serveru RealityMIX.cz (dále jen „Server“) dostupného na internetové adrese (URL) https://www.realitymix.cz, který provozuje společnost DALTEN media s.r.o., se sídlem Na Harfě 916/9a, Praha 9, 190 00, IČO: 271 35 306 (dále jen „Správce“) jako provozovateli tohoto Serveru uděluje svůj výslovný souhlas v souladu s ustanovením § 5 zákona č. 101/2000 Sb. O ochraně osobních údajů a o změně některých zákonů, v platném znění (dále jen „zákon o ochraně osobních údajů“), se zpracováním uživatelem poskytnutých osobních údajů a dalších dat.
Uživatel poskytuje Správci osobní údaje v rozsahu: jméno, příjmení, e-mailová adresa, telefonický kontakt a další data, a to z důvodu projeveného zájmu o nemovitost, kde prostřednictvím služby Serveru Správce osloví Uživatel inzerenta uvedeného v detailu
nemovitosti - Nemovision reality s.r.o. (IČ 08351538) se zájmem o jeho služby.
Uživatel tyto osobní údaje poskytuje dobrovolně a bere na vědomí, že součástí služeb Správce, které Správce Uživateli poskytuje, je vyhledání všech Uživateli vyhovujících (dle parametrů - cena, typ nemovitosti, lokalita atd.) nemovitostí. Správce za tímto účelem provozuje aplikace Hlídací pes a newsletter. Tyto služby je možné z každého zaslaného emailu odhlásit. Souhlas se zpracováním osobních údajů Uživatel poskytuje Správci na dobu neurčitou s tím, že svůj udělený souhlas může Uživatel kdykoliv na drese správce info@realitymix.cz odvolat. Správce garantuje Uživateli i další práva uvedené v ustanovení §11 a §21 zákoba č. 101/200 Sb. Ve znění pozdějších předpisů.
Více informací o zpracování údajů získáte zde (realitymix.cz/zasady-ochrany-osobnich-udaju)