Prodej - Pozemek pro výstavbu RD o velikosti 1397 m2 v obci Střelice, okres Plzeň - jih
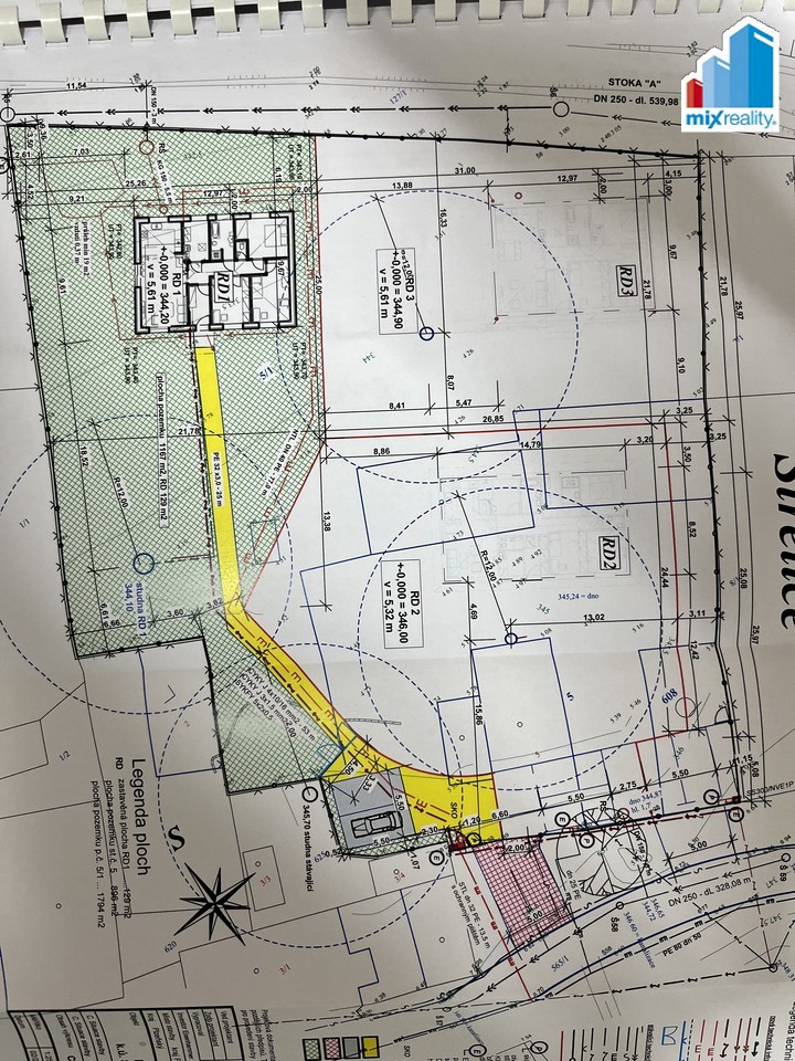
Hledáte stavební pozemek, kde můžete začít stavět hned? Naše realitní společnost Vám nabízí exkluzivně k prodeji atraktivní stavební pozemek o výměře 1397 m² v obci Střelice, okres Plzeň-jih. Pozemek je mírně svažitý a z větší části zasíťovaný – k dispozici je elektrický sloupek a kanalizace (zakončena revizní šachtou). Voda je řešena vrtem (stavební souhlas na vrt je již vydán), plyn se nachází na hranici pozemku. Velkou výhodou je platné kompletní stavební povolení, které bylo vydáno ještě před účinností nového stavebního zákona – je tedy možné okamžitě začít stavět. Součástí je také připravený projekt na rodinný dům typu bungalov se zastavěnou plochou 129 m². Veškerá projektová dokumentace i schválení jsou k dispozici. Lokalita nabízí krásné a klidné prostředí s přírodou na dosah, zároveň však s dobrou dostupností občanské vybavenosti – vše potřebné najdete v nedalekých městech Stod a Holýšov. V případě zájmu vám rádi zajistíme výhodné financování na míru, a to zcela zdarma. Doporučujeme osobní prohlídku – tento pozemek je skvělou příležitostí pro realizaci vašeho vysněného bydlení.
Pomocí naší hypoteční kalkulačky si můžete udělat orientační představu o výši měsíčních splátek hypotéky. O vše ostatní se pak postaráme my ve spolupráci s našimi obchodními partnery.
10 747 Kč
* Odhadovaná měsíční splátka vychází z výše úvěru Kč s pevnou úrokovou sazbou % po celou dobu trvání úvěru.
Uživatel serveru RealityMIX.cz (dále jen „Server“) dostupného na internetové adrese (URL) https://www.realitymix.cz, který provozuje společnost DALTEN media s.r.o., se sídlem Na Harfě 916/9a, Praha 9, 190 00, IČO: 271 35 306 (dále jen „Správce“) jako provozovateli tohoto Serveru uděluje svůj výslovný souhlas v souladu s ustanovením § 5 zákona č. 101/2000 Sb. O ochraně osobních údajů a o změně některých zákonů, v platném znění (dále jen „zákon o ochraně osobních údajů“), se zpracováním uživatelem poskytnutých osobních údajů a dalších dat.
Uživatel poskytuje Správci osobní údaje v rozsahu: jméno, příjmení, e-mailová adresa, telefonický kontakt a další data, a to z důvodu projeveného zájmu o nemovitost, kde prostřednictvím služby Serveru Správce osloví Uživatel inzerenta uvedeného v detailu
nemovitosti - Reality - Plzeň s.r.o. (IČ 29064040 ) se zájmem o jeho služby.
Uživatel tyto osobní údaje poskytuje dobrovolně a bere na vědomí, že součástí služeb Správce, které Správce Uživateli poskytuje, je vyhledání všech Uživateli vyhovujících (dle parametrů - cena, typ nemovitosti, lokalita atd.) nemovitostí. Správce za tímto účelem provozuje aplikace Hlídací pes a newsletter. Tyto služby je možné z každého zaslaného emailu odhlásit. Souhlas se zpracováním osobních údajů Uživatel poskytuje Správci na dobu neurčitou s tím, že svůj udělený souhlas může Uživatel kdykoliv na drese správce info@realitymix.cz odvolat. Správce garantuje Uživateli i další práva uvedené v ustanovení §11 a §21 zákoba č. 101/200 Sb. Ve znění pozdějších předpisů.
Více informací o zpracování údajů získáte zde (realitymix.cz/zasady-ochrany-osobnich-udaju)