Hradové Střímelice, prodej rodinného domu 220 m², pozemek 2 215 m²
Nabízíme ke koupi rodinný dům o dispozici 4+kk a 2+kk s užitnou plochou 220 m², který se nachází na rozlehlém a slunném pozemku o velikosti 2 215 m² v malebné lokalitě Hradové Střímelice, část obce Stříbrná Skalice (okres Praha-východ).
Dům byl budován postupně s důrazem na kvalitu a promyšlené řešení detailů. Je postaven z cihelného zdiva Heluz Supertherm 36,5 cm s tepelnou izolací 14 cm polystyrenu a osazen eurookny s trojskly.
Je připraven k dokončení podle představ nového majitele – nabízí tak možnost doladit interiér přesně podle vlastního vkusu.
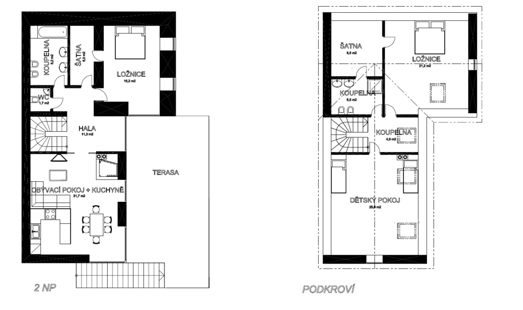
Dispozice:
1. podlaží (přízemí) – samostatná jednotka 2+kk, technické zázemí, sklad/sklep 30 m² (plocha sklepa není započítána do celkové užitné plochy)
2. podlaží – počítá se s obývacím pokojem s kuchyňským koutem (31,7 m²), ložnicí (16,2 m²), koupelnou, samostatným WC a vstupem na terasu
3. podlaží (podkroví) – počítá se se dvěma ložnicemi (25,9 m² a 21,2 m²), šatnou (8,5 m²) a koupelnou
Vytápění zajišťuje elektrokotel.
V 1. podlaží je instalováno podlahové topení, s nímž se počítá i ve 2. podlaží; v podkroví je příprava pro radiátory.
Dům je napojen na vodovod i vlastní studnu, odpad bude řešen čističkou odpadních vod (ČOV).
Další výhody:
Velkorysý pozemek 2 215 m² s dostatkem prostoru pro zahradu, bazén nebo relaxační zónu
Klidná část obce s minimálním provozem a dostatkem soukromí
Veškerá občanská vybavenost v nedaleké Stříbrné Skalici a Ondřejově (škola, školka, obchody, restaurace, služby)
Dobrá dostupnost do Prahy – autem či autobusem do Strančic, odkud vlakem na hlavní nádraží Praha cca 34 minut
Shrnutí:
Dům, který nabízí prostor, klid a možnost dotvořit si domov podle vlastních představ.
Ideální pro ty, kdo hledají kvalitní rodinné bydlení v přírodě, přitom v pohodlné dojezdové vzdálenosti od Prahy.
Cena:
Rezervováno
Číslo zakázky:
REALITYMIX-2802
Podrobné informace
Poloha objektu:samostatný
Druh objektu:cihlová
Stav objektu:ve výstavbě (hrubá stavba)
Počet podlaží objektu:3
Typ domu:patrový
Zastavěná plocha:100 m²
Plocha parcely:2215 m²
Užitná plocha:220 m²
Umístění objektu:klidná část obce
Komunikace:asfaltová
Voda:Voda - dálkový vodovod
Odpad:ČOV pro celý objekt
Energetický ukazatel podle vyhlášky:č. 264/2020 Sb.
Uživatel serveru RealityMIX.cz (dále jen „Server“) dostupného na internetové adrese (URL) https://www.realitymix.cz, který provozuje společnost DALTEN media s.r.o., se sídlem Na Harfě 916/9a, Praha 9, 190 00, IČO: 271 35 306 (dále jen „Správce“) jako provozovateli tohoto Serveru uděluje svůj výslovný souhlas v souladu s ustanovením § 5 zákona č. 101/2000 Sb. O ochraně osobních údajů a o změně některých zákonů, v platném znění (dále jen „zákon o ochraně osobních údajů“), se zpracováním uživatelem poskytnutých osobních údajů a dalších dat.
Uživatel poskytuje Správci osobní údaje v rozsahu: jméno, příjmení, e-mailová adresa, telefonický kontakt a další data, a to z důvodu projeveného zájmu o nemovitost, kde prostřednictvím služby Serveru Správce osloví Uživatel inzerenta uvedeného v detailu
nemovitosti - eDO reality, s.r.o. (IČ 07268602) se zájmem o jeho služby.
Uživatel tyto osobní údaje poskytuje dobrovolně a bere na vědomí, že součástí služeb Správce, které Správce Uživateli poskytuje, je vyhledání všech Uživateli vyhovujících (dle parametrů - cena, typ nemovitosti, lokalita atd.) nemovitostí. Správce za tímto účelem provozuje aplikace Hlídací pes a newsletter. Tyto služby je možné z každého zaslaného emailu odhlásit. Souhlas se zpracováním osobních údajů Uživatel poskytuje Správci na dobu neurčitou s tím, že svůj udělený souhlas může Uživatel kdykoliv na drese správce info@realitymix.cz odvolat. Správce garantuje Uživateli i další práva uvedené v ustanovení §11 a §21 zákoba č. 101/200 Sb. Ve znění pozdějších předpisů.
Více informací o zpracování údajů získáte zde (realitymix.cz/zasady-ochrany-osobnich-udaju)