Nabízíme k prodeji řadový rodinný dům v obci Skrýchov, část obce Studená.
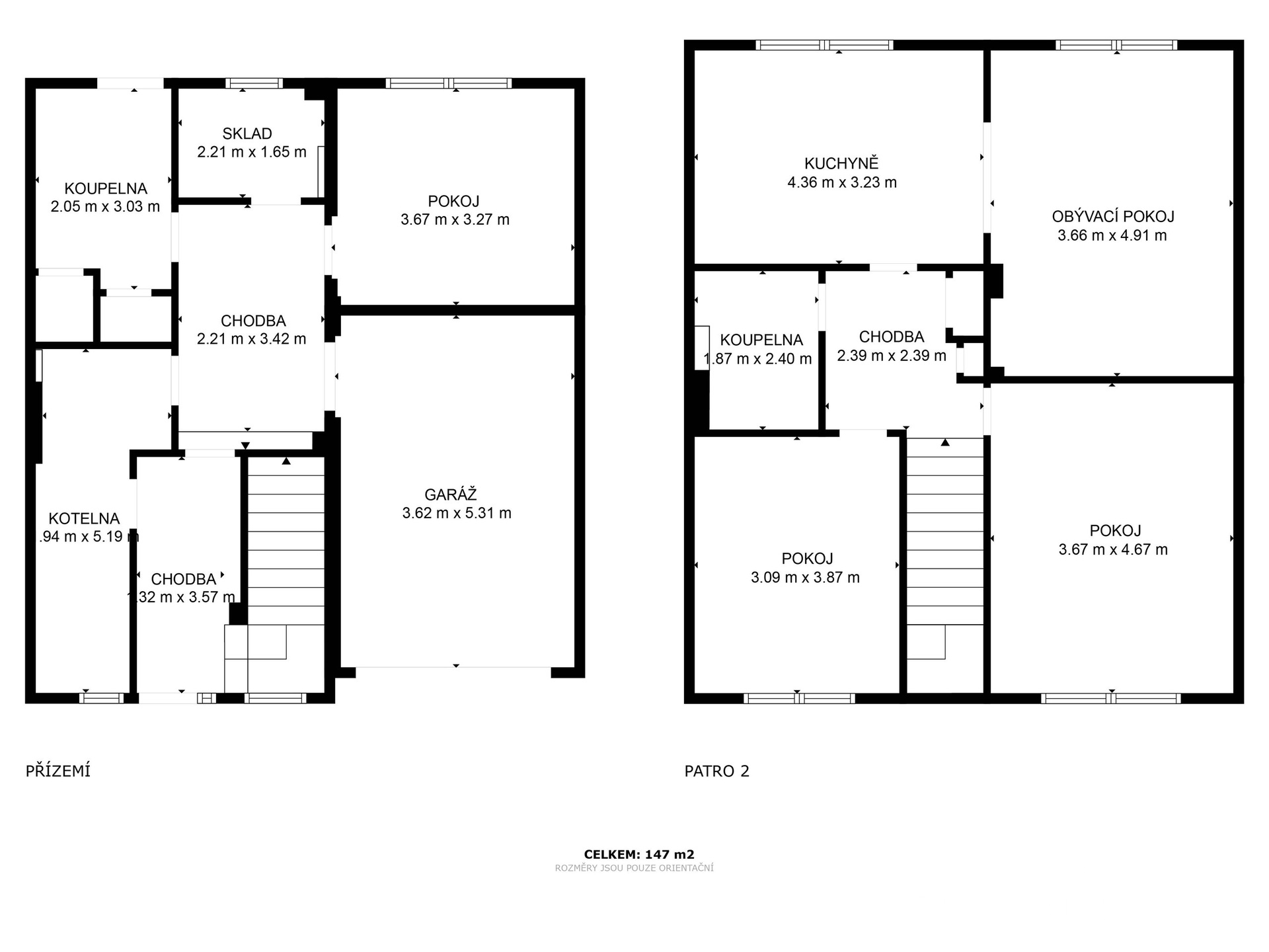
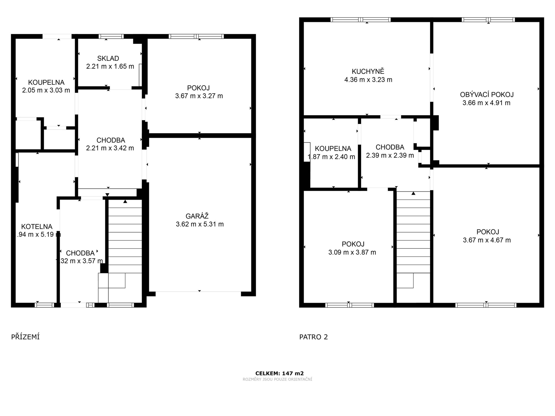
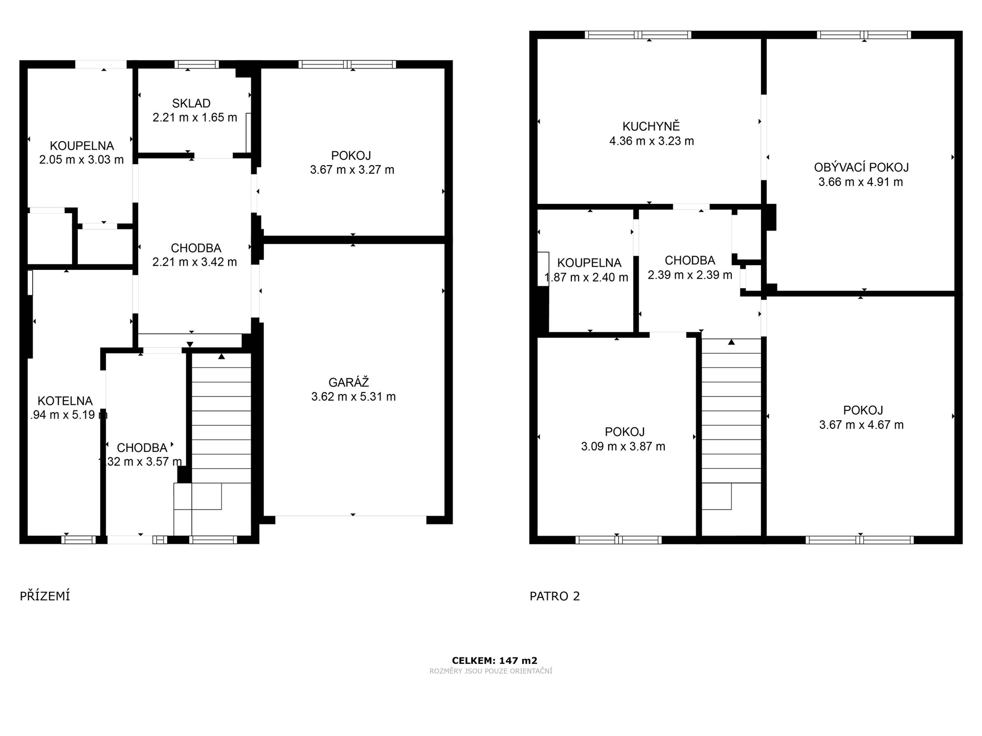
Dům má dispozici 4kk a na dvou podlažích nabízí užitnou plochu 147 m².
V přízemí se nachází chodba, praktická garáž, pokoj s výhledem do zahrady, technické zázemí a příprava na další sociální zařízení.
V patře potom najdete 2 neprůchozí pokoje, koupelnu s WC a obývací pokoj s kuchyní.
Před domem se nachází vícero parkovacích míst. Za domem je praktická rovinatá zahrada přístupná autem.
Dům prošel před nedávnem zdařilou rekonstrukcí. Proběhla výměna oken a dveří, nová střecha a zateplení, rekonstrukce podlahy, nové rozvody elektřiny, vody, topení a odpadů. Vytápění je řešeno kotlem na tuhá paliva splňujícím emisní normu.
Momentálně je potřeba instalovat kuchyňskou linku a položit podlahovou krytinu v pokojích.
Poté je dům rovnou obyvatelný. V případě potřeby jsme schopni zajistit realizaci.
Výhodou je, že si kupující může zvolit design a materiály podle svých preferencí.
Výhledově by se hodilo dodělat spodní sociální zařízení a dveře se zárubněmi, případně se nabízí úprava na samostatnou bytovou jednotku 1kk. Poté věříme, že na dlouhou dobu na domě nebude nic k řešení a čeká vás už jen pohodlné bydlení.
Co se týče lokality, tak ta se nese ve venkovském duchu. Jste v bezprostřední blízkosti přírody, kde najdete velké množství turistických a cykloturistických tras.
Veškerou občanskou vybavenost najdete 2 kilometry od domu v obci Studená, kam se pohodlně dostanete i autobusem.
Z větších měst máte na dosah (15 minut autem) Telč a Dačice.
Pokud vás dům zaujal, neváhejte se nám ozvat pro více informací či domluvení prohlídky.
Těšíme se na vás.
Pomocí naší hypoteční kalkulačky si můžete udělat orientační představu o výši měsíčních splátek hypotéky. O vše ostatní se pak postaráme my ve spolupráci s našimi obchodními partnery.
16 154 Kč
* Odhadovaná měsíční splátka vychází z výše úvěru Kč s pevnou úrokovou sazbou % po celou dobu trvání úvěru.
Uživatel serveru RealityMIX.cz (dále jen „Server“) dostupného na internetové adrese (URL) https://www.realitymix.cz, který provozuje společnost DALTEN media s.r.o., se sídlem Na Harfě 916/9a, Praha 9, 190 00, IČO: 271 35 306 (dále jen „Správce“) jako provozovateli tohoto Serveru uděluje svůj výslovný souhlas v souladu s ustanovením § 5 zákona č. 101/2000 Sb. O ochraně osobních údajů a o změně některých zákonů, v platném znění (dále jen „zákon o ochraně osobních údajů“), se zpracováním uživatelem poskytnutých osobních údajů a dalších dat.
Uživatel poskytuje Správci osobní údaje v rozsahu: jméno, příjmení, e-mailová adresa, telefonický kontakt a další data, a to z důvodu projeveného zájmu o nemovitost, kde prostřednictvím služby Serveru Správce osloví Uživatel inzerenta uvedeného v detailu
nemovitosti - FRAMI REAL (IČ 75892189) se zájmem o jeho služby.
Uživatel tyto osobní údaje poskytuje dobrovolně a bere na vědomí, že součástí služeb Správce, které Správce Uživateli poskytuje, je vyhledání všech Uživateli vyhovujících (dle parametrů - cena, typ nemovitosti, lokalita atd.) nemovitostí. Správce za tímto účelem provozuje aplikace Hlídací pes a newsletter. Tyto služby je možné z každého zaslaného emailu odhlásit. Souhlas se zpracováním osobních údajů Uživatel poskytuje Správci na dobu neurčitou s tím, že svůj udělený souhlas může Uživatel kdykoliv na drese správce info@realitymix.cz odvolat. Správce garantuje Uživateli i další práva uvedené v ustanovení §11 a §21 zákoba č. 101/200 Sb. Ve znění pozdějších předpisů.
Více informací o zpracování údajů získáte zde (realitymix.cz/zasady-ochrany-osobnich-udaju)