Prodej stavebního pozemku s projektem a vydaným stavebním povolením, k.ú. Znojmo-Suchohrdly
Sleva 200.000,- Kč z ceny 1.450.000,- Kč, platí jen po omezenou dobu!
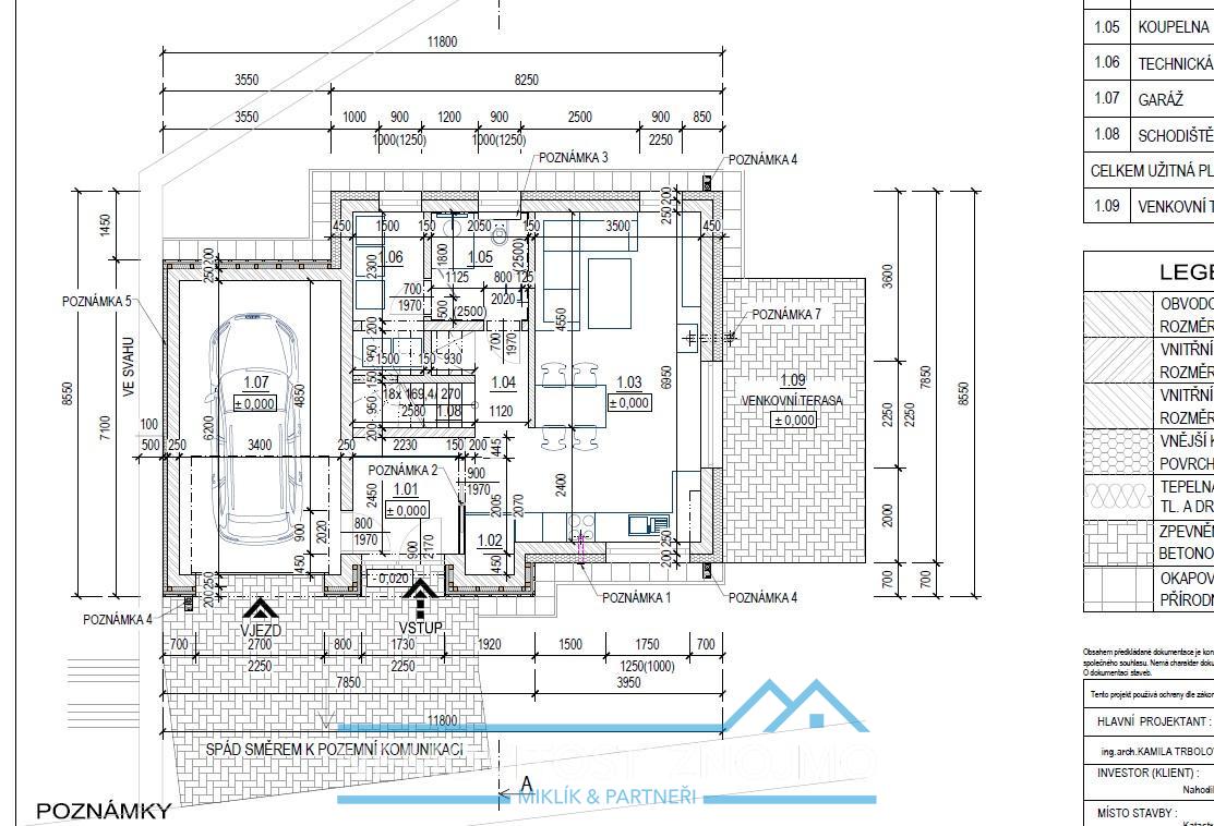
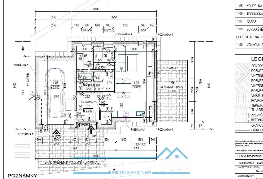
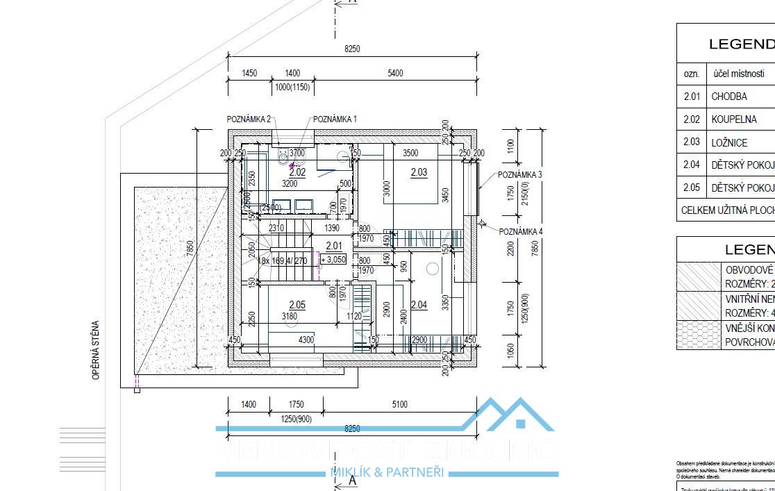
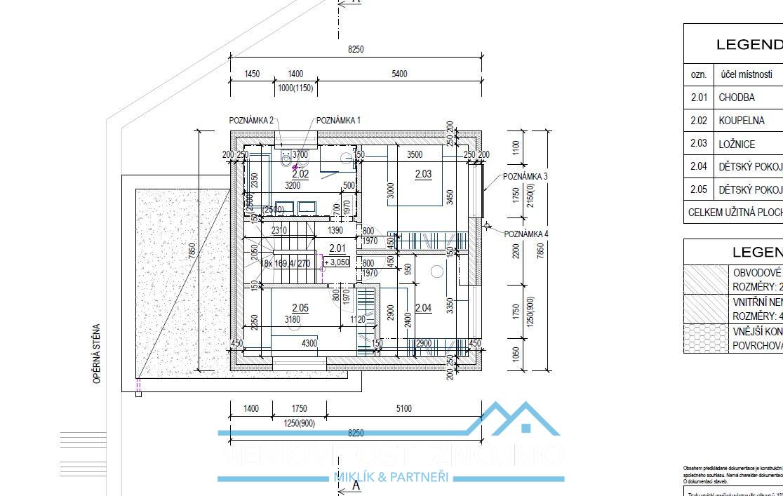
K prodeji nabízíme stavební pozemek v k.ú. Suchohrdly u Znojma, s obrovským benefitem, kterým je již hotová projektová dokumentace a vydané stavební povolení na rodinný dům s garáží, kde má kupující (stavitel) 2 možnosti:
a.) 4+kk, dvě koupelny, technická místnost, garáž
b.) 5+kk, jedna koupelna, technická místnost, garáž
Pozemek má výměru 365m2, ale díky velmi chytrému řešení projektové dokumentace zbývá stále dostatek prostoru na zahrádku, posezení apod.
A tohle není jen kus pozemku, kde si musíte ještě zafinancovat inženýrské sítě, jelikož prodávající tohle vše již vyřídil a zafinancoval, voda a kanalizace je realizovaná od firmy Colas, a přípojky jsou nachystané přímo na pozemku, i s elektrickým antoníčkem a plynovou přípojkou, včetně nového nájezdu z hlavní asfaltové komunikace.
Realizace inženýrských sítí činila 350.000,- Kč.
V rámci koupě pozemku je projekt zdarma, pokud bude stavitel pokračovat ve stavbě rodinného domu se stavební firmou Fachkas, která projekt realizovala, pokud by se klient rozhodl pro jinou firmu, či by si chtěl udělat projekt nový po vlastní ose, je třeba danou projektovou dokumentaci uhradit nad rámec kupní ceny (v předběžné výši 60.000,- Kč).
Uvedená cena je pak konečná včetně právního servisu, provize realitní kanceláři i DPH.
V případě zájmu o prohlídku, či dalších informací kontaktujte pana Ing. Miklíka, volat můžete kdykoliv, včetně víkendů a svátků.
Cena:
1 250 000 Kč
Poznámka:
- výrazná SLEVA z ceny 1,45 mil. Kč (cena včetně právního servisu, provize realitní kanceláři i DPH)
Pomocí naší hypoteční kalkulačky si můžete udělat orientační představu o výši měsíčních splátek hypotéky. O vše ostatní se pak postaráme my ve spolupráci s našimi obchodními partnery.
5 061 Kč
* Odhadovaná měsíční splátka vychází z výše úvěru Kč s pevnou úrokovou sazbou % po celou dobu trvání úvěru.
Uživatel serveru RealityMIX.cz (dále jen „Server“) dostupného na internetové adrese (URL) https://www.realitymix.cz, který provozuje společnost DALTEN media s.r.o., se sídlem Na Harfě 916/9a, Praha 9, 190 00, IČO: 271 35 306 (dále jen „Správce“) jako provozovateli tohoto Serveru uděluje svůj výslovný souhlas v souladu s ustanovením § 5 zákona č. 101/2000 Sb. O ochraně osobních údajů a o změně některých zákonů, v platném znění (dále jen „zákon o ochraně osobních údajů“), se zpracováním uživatelem poskytnutých osobních údajů a dalších dat.
Uživatel poskytuje Správci osobní údaje v rozsahu: jméno, příjmení, e-mailová adresa, telefonický kontakt a další data, a to z důvodu projeveného zájmu o nemovitost, kde prostřednictvím služby Serveru Správce osloví Uživatel inzerenta uvedeného v detailu
nemovitosti - Nemovitosti Znojmo - Ing. Gabriel Miklík (IČ 07425341) se zájmem o jeho služby.
Uživatel tyto osobní údaje poskytuje dobrovolně a bere na vědomí, že součástí služeb Správce, které Správce Uživateli poskytuje, je vyhledání všech Uživateli vyhovujících (dle parametrů - cena, typ nemovitosti, lokalita atd.) nemovitostí. Správce za tímto účelem provozuje aplikace Hlídací pes a newsletter. Tyto služby je možné z každého zaslaného emailu odhlásit. Souhlas se zpracováním osobních údajů Uživatel poskytuje Správci na dobu neurčitou s tím, že svůj udělený souhlas může Uživatel kdykoliv na drese správce info@realitymix.cz odvolat. Správce garantuje Uživateli i další práva uvedené v ustanovení §11 a §21 zákoba č. 101/200 Sb. Ve znění pozdějších předpisů.
Více informací o zpracování údajů získáte zde (realitymix.cz/zasady-ochrany-osobnich-udaju)