Prodej víceúčelového komerčního areálu s halou, výtahem a fotovoltaikou Sulejovice
Nabízíme k prodeji moderní pětipodlažní halu s kompletním zázemím, výtahem a vlastním pozemkem v obci Sulejovice, jen pár minut od dálnice D8. Objekt je vhodný pro investory, výrobní nebo logistické společnosti i firmy, které hledají reprezentativní provozní a skladové prostory s výbornou dopravní dostupností.
Hlavní budovu tvoří vytápěná hala o pěti nadzemních podlažích, stojící na oploceném pozemku o rozloze cca 1 800 m. Plocha umožňuje parkování pro minimálně 15 vozidel a pohodlný pohyb nákladní techniky.
Na pozemku se nachází pět kontejnerových skladů, odpočinková terasa o 80 m, dětské a workoutové hřiště s trampolínou, a také nabíječka pro elektromobily. Vše je doplněno o automatickou bránu s dálkovým ovládáním, kamerový systém, Wi-Fi pokrytí a automatický závlahový systém s okrasnými truhlíky.
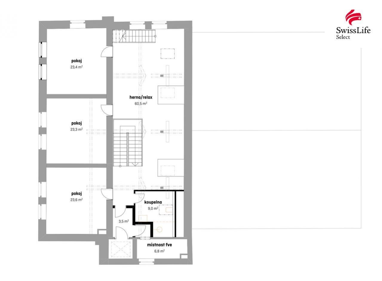
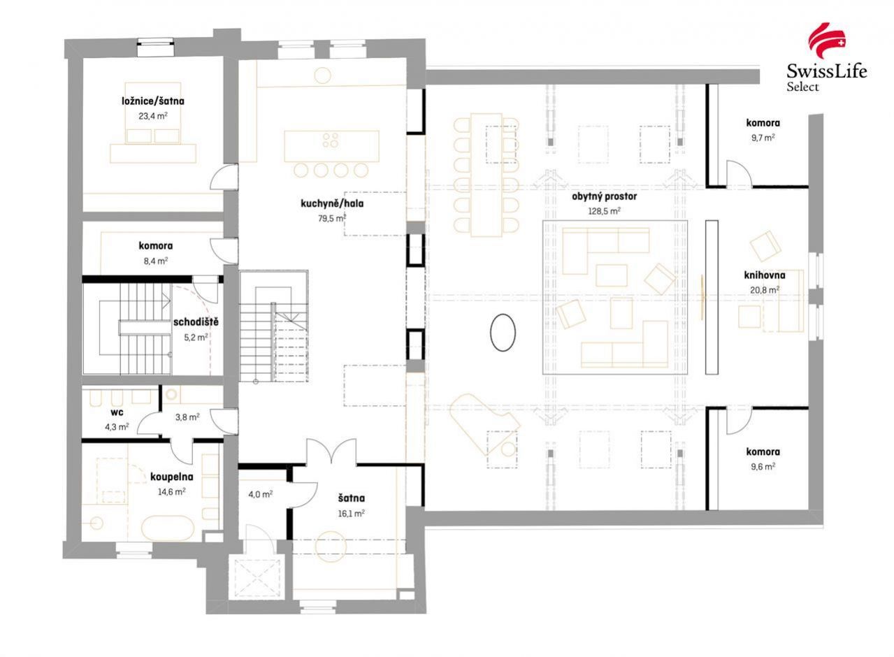
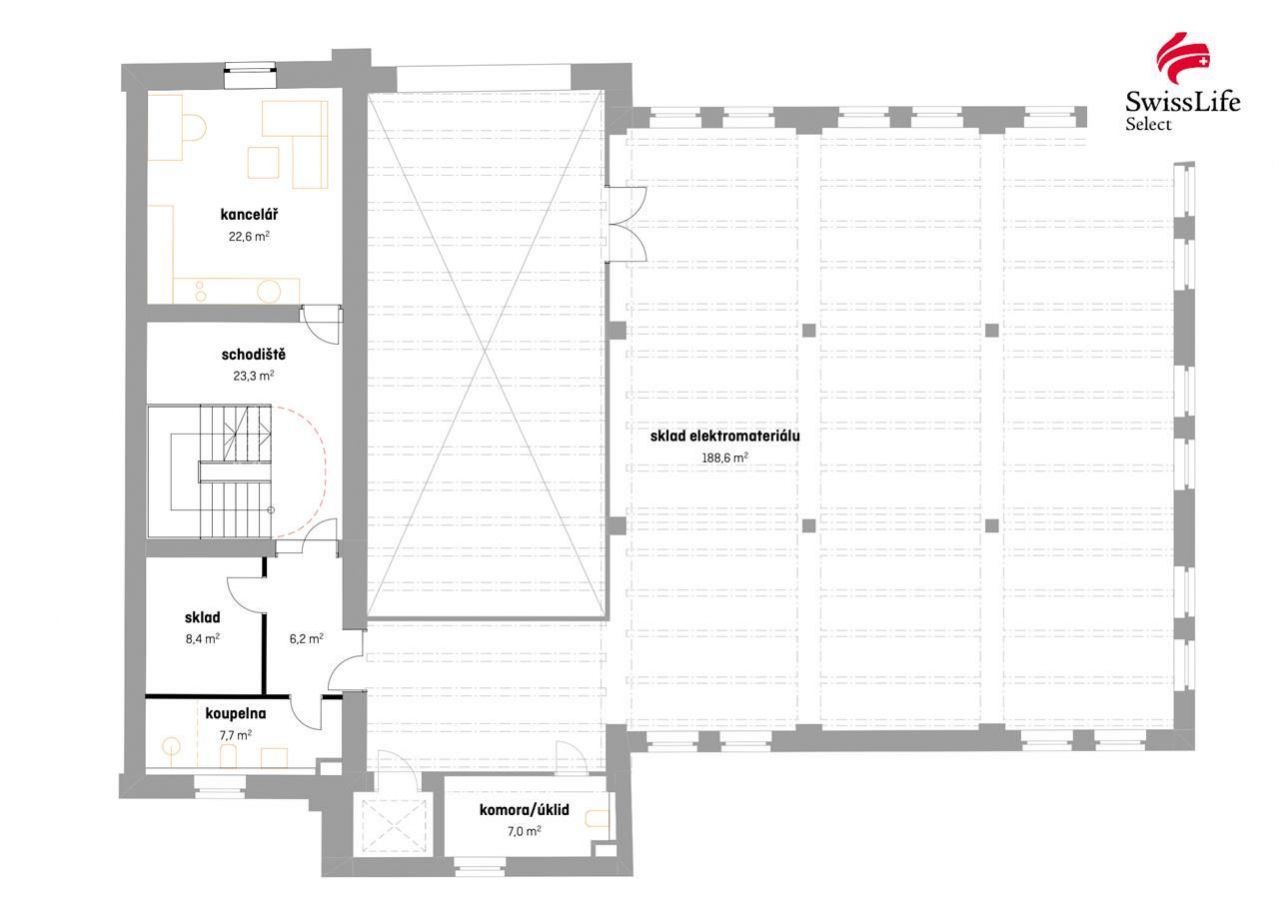
Dispozice a využití
Budova má tři samostatné vstupy hlavní sekční vrata (šířka 5 m, výška 6 m), reprezentativní vstupní schodiště a přístup přes výtah s oboustranným výstupem v přízemí.
Tři nižší patra (cca 250 m, 180 m a 250 m) jsou uzpůsobena pro skladování, provoz nebo lehkou výrobu, každé s vlastní kanceláří, sociálním zařízením a kuchyňkou.
Horní podlaží lze dokončit podle potřeb nového majitele jako kancelářské prostory, ateliéry nebo zázemí firmy. Na boku objektu se nachází malá garáž a technická místnost s přípravou pro další technologie.
Technické zázemí
Objekt je vybaven bezpečnostním systémem Jablotron (možnost napojení na PCO), kompletní datovou a Wi-Fi sítí.
Díky fotovoltaickým panelům a vlastní studni je budova energeticky úsporná a z velké části soběstačná.
Vytápění zajišťuje elektrický systém, budova má nízké provozní náklady díky kvalitní rekonstrukci a použitým technologiím.
Umístění
Sulejovice mají výborné dopravní napojení Praha do 30 minut, Ústí nad Labem 20 minut, Litoměřice 15 minut.
Areál se nachází v klidné části obce, ale zároveň v strategické poloze mezi hlavními průmyslovými centry severních a středních Čech.
Tento objekt představuje všestranné komerční zázemí s výborným technickým řešením a investičním potenciálem vhodný jak pro vlastní podnikání, tak pro pronájem jednotlivých pater.
V případě více zájemců o nemovitost, si majitel vyhrazuje právo prodat nemovitost zájemci s nejvyšší nabídkou.
Pomocí naší hypoteční kalkulačky si můžete udělat orientační představu o výši měsíčních splátek hypotéky. O vše ostatní se pak postaráme my ve spolupráci s našimi obchodními partnery.
149 398 Kč
* Odhadovaná měsíční splátka vychází z výše úvěru Kč s pevnou úrokovou sazbou % po celou dobu trvání úvěru.
Uživatel serveru RealityMIX.cz (dále jen „Server“) dostupného na internetové adrese (URL) https://www.realitymix.cz, který provozuje společnost DALTEN media s.r.o., se sídlem Na Harfě 916/9a, Praha 9, 190 00, IČO: 271 35 306 (dále jen „Správce“) jako provozovateli tohoto Serveru uděluje svůj výslovný souhlas v souladu s ustanovením § 5 zákona č. 101/2000 Sb. O ochraně osobních údajů a o změně některých zákonů, v platném znění (dále jen „zákon o ochraně osobních údajů“), se zpracováním uživatelem poskytnutých osobních údajů a dalších dat.
Uživatel poskytuje Správci osobní údaje v rozsahu: jméno, příjmení, e-mailová adresa, telefonický kontakt a další data, a to z důvodu projeveného zájmu o nemovitost, kde prostřednictvím služby Serveru Správce osloví Uživatel inzerenta uvedeného v detailu
nemovitosti - Swiss Life Select Reality (IČ 24260444) se zájmem o jeho služby. Tato společnost je součástí seskupení/sítě/franšízového modelu realitních kanceláří, jejich seznam můžete zobrazit kliknutím na tento odkaz.
Fincentrum a.s. (IČ 24260444) , Swiss Life Select Reality (IČ 24260444)
Uživatel tyto osobní údaje poskytuje dobrovolně a bere na vědomí, že součástí služeb Správce, které Správce Uživateli poskytuje, je vyhledání všech Uživateli vyhovujících (dle parametrů - cena, typ nemovitosti, lokalita atd.) nemovitostí. Správce za tímto účelem provozuje aplikace Hlídací pes a newsletter. Tyto služby je možné z každého zaslaného emailu odhlásit. Souhlas se zpracováním osobních údajů Uživatel poskytuje Správci na dobu neurčitou s tím, že svůj udělený souhlas může Uživatel kdykoliv na drese správce info@realitymix.cz odvolat. Správce garantuje Uživateli i další práva uvedené v ustanovení §11 a §21 zákoba č. 101/200 Sb. Ve znění pozdějších předpisů.
Více informací o zpracování údajů získáte zde (realitymix.cz/zasady-ochrany-osobnich-udaju)