NOVÁ CENA ! Prodej RD 286 m2 + 79 m2 terasa, pozemek 1173 m2, Sulice-Hlubočinka, Praha východ.
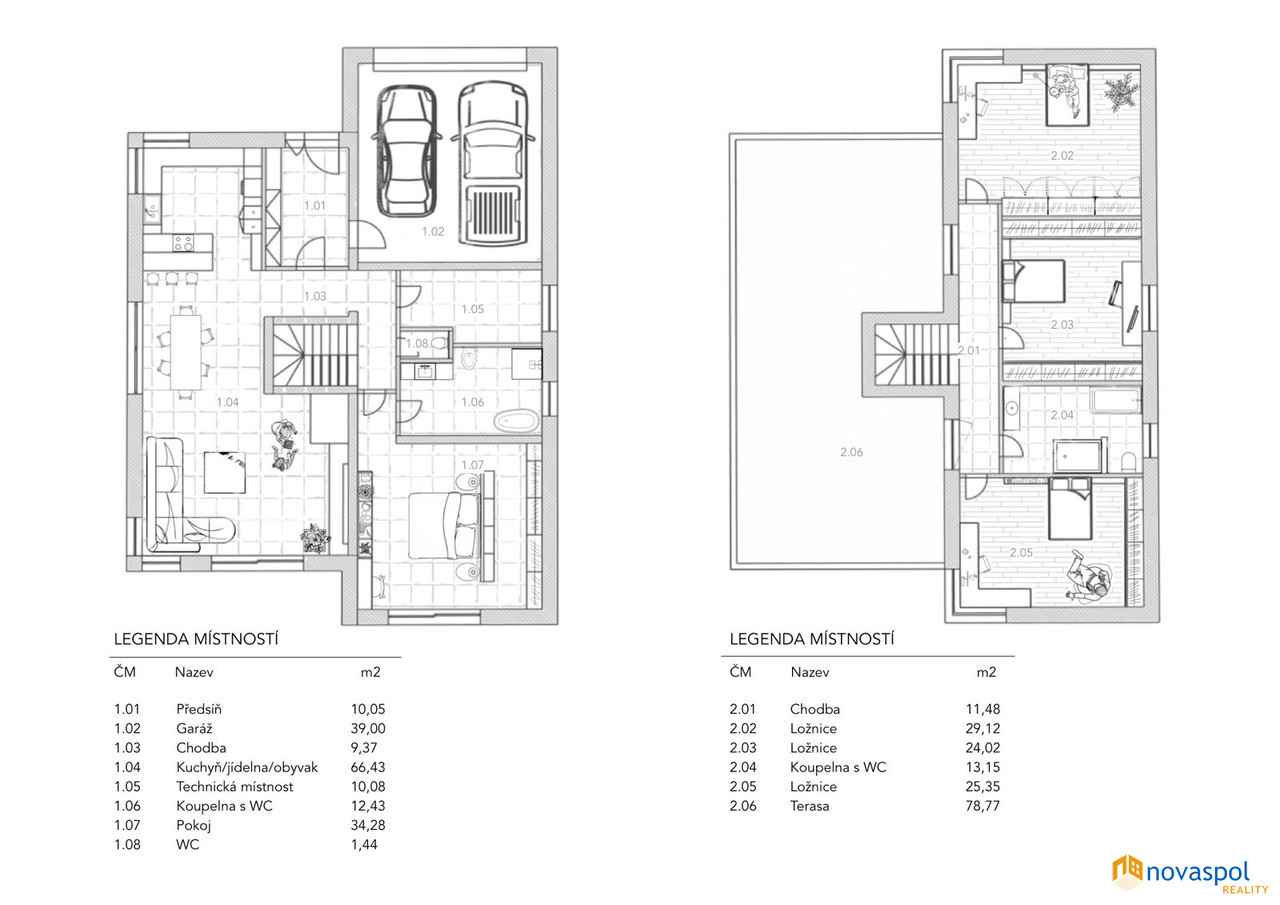
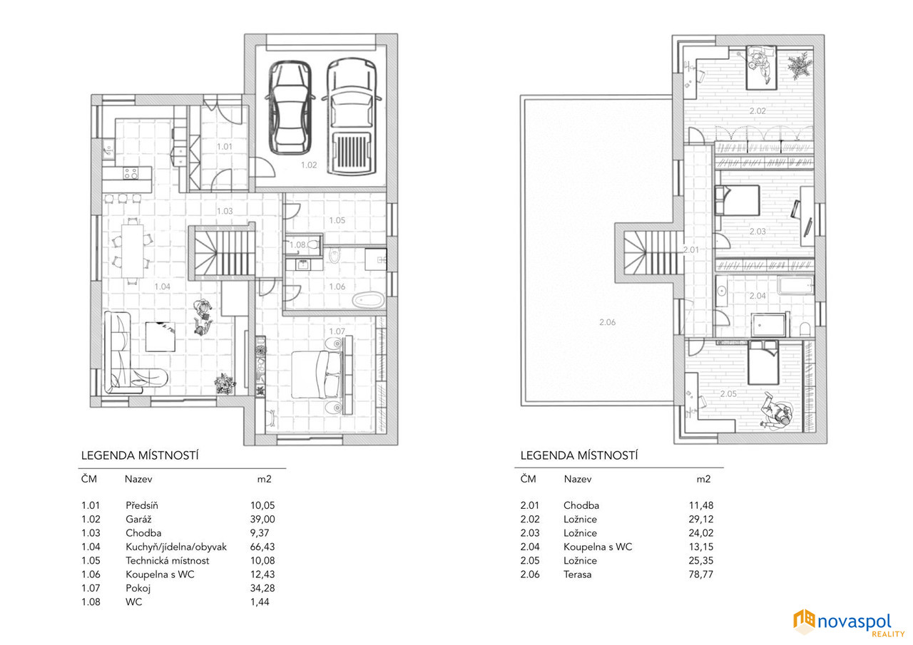
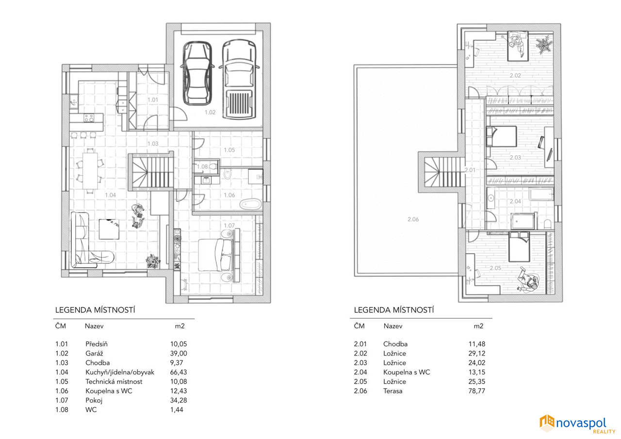
NOVÁ CENA ! Prodej RD 286 m2 + 79 m2 terasa, pozemek 1173 m2, Sulice-Hlubočinka, Praha východ. Jedná se o novostavbu o dispozici 5+kk s užitnou plochou 247 m2 + 39 m2 garáž pro 2 auta + terasa 79 m2. RD je nabízen ve stavu white walls, umožňujícím finální dokončení dle vlastních představ.Novostavba je postavena ve vysokém standardu:Dům je nízkoenergetický, PENB A. ✅ podlahové topení v celém domě✅ v přízemí mramorové podlahy, mramorové obklady ve 2 prostorných koupelnách✅ garáž pro dvě auta✅ tepelné čerpadlo se zásobníkem na teplou vodu✅ prostorná terasa ✅ trojitá skla v oknechPřízemí: garáž pro 2 vozidla, technická místnost s tepelným čerpadlem a zásobníkem na vodu, velký obývací pokoj s prostorem pro jídelnu a s přípravou na kuchyni se vstupem na zahradu, pokoj, koupelna s WC, 1 x WC samostatně Patro: chodba s 2 vstupy na terasu, koupelna s WC a 3 pokoje✅ 5 min pěšky Adventure school, soukromá základní škola a mateřská škola s rozšířenou výukou jazyků✅ V obci také státní školka a škola✅ Sportovní centrum Hlubočinka s wellness a finskou saunou✅ 4 min autem supermarket Lidl✅ Vynikající poloha v těsné blízkosti lesa✅ Dopravní dostupnost do Prahy městskými autobusy na metro C Budějovická✅ V Jesenici Sunny Canadian International School, která provozuje mateřskou školku,základní školu a gymnázium
Pomocí naší hypoteční kalkulačky si můžete udělat orientační představu o výši měsíčních splátek hypotéky. O vše ostatní se pak postaráme my ve spolupráci s našimi obchodními partnery.
87 048 Kč
* Odhadovaná měsíční splátka vychází z výše úvěru Kč s pevnou úrokovou sazbou % po celou dobu trvání úvěru.
Uživatel serveru RealityMIX.cz (dále jen „Server“) dostupného na internetové adrese (URL) https://www.realitymix.cz, který provozuje společnost DALTEN media s.r.o., se sídlem Na Harfě 916/9a, Praha 9, 190 00, IČO: 271 35 306 (dále jen „Správce“) jako provozovateli tohoto Serveru uděluje svůj výslovný souhlas v souladu s ustanovením § 5 zákona č. 101/2000 Sb. O ochraně osobních údajů a o změně některých zákonů, v platném znění (dále jen „zákon o ochraně osobních údajů“), se zpracováním uživatelem poskytnutých osobních údajů a dalších dat.
Uživatel poskytuje Správci osobní údaje v rozsahu: jméno, příjmení, e-mailová adresa, telefonický kontakt a další data, a to z důvodu projeveného zájmu o nemovitost, kde prostřednictvím služby Serveru Správce osloví Uživatel inzerenta uvedeného v detailu
nemovitosti - Novaspol, s.r.o. (IČ 27450180) se zájmem o jeho služby.
Uživatel tyto osobní údaje poskytuje dobrovolně a bere na vědomí, že součástí služeb Správce, které Správce Uživateli poskytuje, je vyhledání všech Uživateli vyhovujících (dle parametrů - cena, typ nemovitosti, lokalita atd.) nemovitostí. Správce za tímto účelem provozuje aplikace Hlídací pes a newsletter. Tyto služby je možné z každého zaslaného emailu odhlásit. Souhlas se zpracováním osobních údajů Uživatel poskytuje Správci na dobu neurčitou s tím, že svůj udělený souhlas může Uživatel kdykoliv na drese správce info@realitymix.cz odvolat. Správce garantuje Uživateli i další práva uvedené v ustanovení §11 a §21 zákoba č. 101/200 Sb. Ve znění pozdějších předpisů.
Více informací o zpracování údajů získáte zde (realitymix.cz/zasady-ochrany-osobnich-udaju)