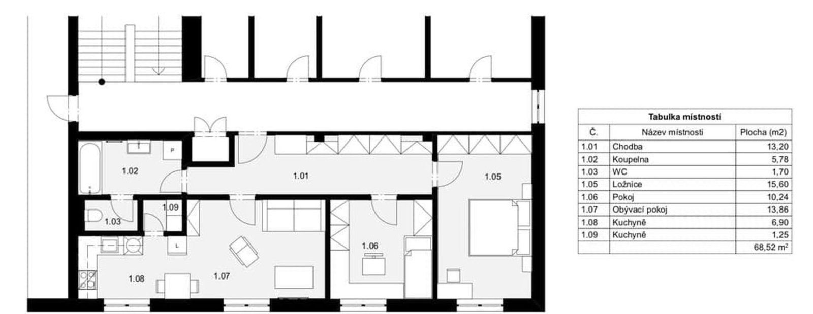
Nabízíme k pronájmu zděný, modernizovaný byt 3+kk (rekonstrukce v roce 2019) v klidném zděném domě na okraji města Sušice. Byt o celkové ploše 68,5 m² se nachází ve 3. NP a jeho největší předností je výborné dispoziční řešení se všemi pokoji neprůchozími, což zajišťuje maximální soukromí pro všechny členy domácnosti.
Vnitřní dispozice: prostorná obývací kuchyně ( 20.76 m²) s moderní linkou a elektrickým sporákem propojená s obývacím prostorem, spíž 1,25m2. Dvě samostatné ložnice (15,6 m² a 10,2 m²). Koupelna 5,79m2 s vanou, umyvadlem, topným žebříkem, připojením k pračce a samostatné WC. K bytu dále náleží komora/sklep v přízemí domu.
Byt se pronajímá nezařízený, připravený k vybavení podle vašeho vkusu.
Vytápění je řešeno centrálně (ústředním topením kotlem na tuhá paliva). El. energie s odečtovými měřiči. Parkování je bezproblémové přímo u domu.
Měsíční platby spojené s užíváním bytu: 10.000,-Kč + zálohy na energie (elektřina (odečtová), vodné, stočné, teplo cca 5.000,-Kč/2os.), internet jako pevná složka. Vratná kauce 20.000,-Kč.
Dům má strategickou polohu – jen 150 m od řeky, ideální na procházky, koupání s nově vybudovaným kempem s občerstvením v letní sezoně a 200 m od nádraží i autobusových spojů. Veškerá občanská vybavenost je v centru Sušice.
PENB ve třídě G. Volné od 1.5.2026.
Cena:
10 000 Kč / (za měsíc)
Poznámka:
+ zálohy na energie (elektřina (odečtová), vodné, stočné, teplo cca 5.000,-Kč/2os.), internet jako pevná složka. Vratná kauce 20.000,-Kč. Provize za služby 9.000,-Kč.
Uživatel serveru RealityMIX.cz (dále jen „Server“) dostupného na internetové adrese (URL) https://www.realitymix.cz, který provozuje společnost DALTEN media s.r.o., se sídlem Na Harfě 916/9a, Praha 9, 190 00, IČO: 271 35 306 (dále jen „Správce“) jako provozovateli tohoto Serveru uděluje svůj výslovný souhlas v souladu s ustanovením § 5 zákona č. 101/2000 Sb. O ochraně osobních údajů a o změně některých zákonů, v platném znění (dále jen „zákon o ochraně osobních údajů“), se zpracováním uživatelem poskytnutých osobních údajů a dalších dat.
Uživatel poskytuje Správci osobní údaje v rozsahu: jméno, příjmení, e-mailová adresa, telefonický kontakt a další data, a to z důvodu projeveného zájmu o nemovitost, kde prostřednictvím služby Serveru Správce osloví Uživatel inzerenta uvedeného v detailu
nemovitosti - EL-WEST REALITY - Staněk (IČ 48350788) se zájmem o jeho služby.
Uživatel tyto osobní údaje poskytuje dobrovolně a bere na vědomí, že součástí služeb Správce, které Správce Uživateli poskytuje, je vyhledání všech Uživateli vyhovujících (dle parametrů - cena, typ nemovitosti, lokalita atd.) nemovitostí. Správce za tímto účelem provozuje aplikace Hlídací pes a newsletter. Tyto služby je možné z každého zaslaného emailu odhlásit. Souhlas se zpracováním osobních údajů Uživatel poskytuje Správci na dobu neurčitou s tím, že svůj udělený souhlas může Uživatel kdykoliv na drese správce info@realitymix.cz odvolat. Správce garantuje Uživateli i další práva uvedené v ustanovení §11 a §21 zákoba č. 101/200 Sb. Ve znění pozdějších předpisů.
Více informací o zpracování údajů získáte zde (realitymix.cz/zasady-ochrany-osobnich-udaju)